Y Bluen Goch, Dwygyfylchi
By Fletcher & Poole
£ 440,000
Reviews
3 out of 5 stars
Fletcher & Poole says ..
Introducing Y Bluen Goch, an exclusive development offering a stunning collection of homes set within a desirable parkland and meadow setting. This is a true village within a village, where flourishing wildlife and breathtaking natural surroundings come together in harmony. With woodland, meadows...
Property Oracle says ..
The property is located in Dwygyfylchi, Conwy, a coastal village in North Wales. The area benefits from scenic views and proximity to the sea. There are a number of schools within a reasonable distance, including Ysgol Capelulo (0.97km), Ysgol Pencae (2.28km), and others further afield. Several train stations are also within reach, offering links to other parts of North Wales. The property itself is a new build, appearing modern and well-finished in the provided images. While the plot size is not specified, the images suggest a small garden or patio area. The list price of £440,000 is higher than the average price for the area (£274,497), but comparable to other new-build properties in the development. The average price per square foot in the area is £261, suggesting the property may be slightly overpriced, but this is offset by the new build status and potential for higher quality finishes.
Therefore, we give this property 6 / 10. *Disclaimer: This is our option and does constitute a recommendation or financial advice. Do your own research. *
- Price
- 6
- Condition
- 9
- Location
- 8
- Land
- 4
- Bedrooms
- 3
- Bathrooms
- 2
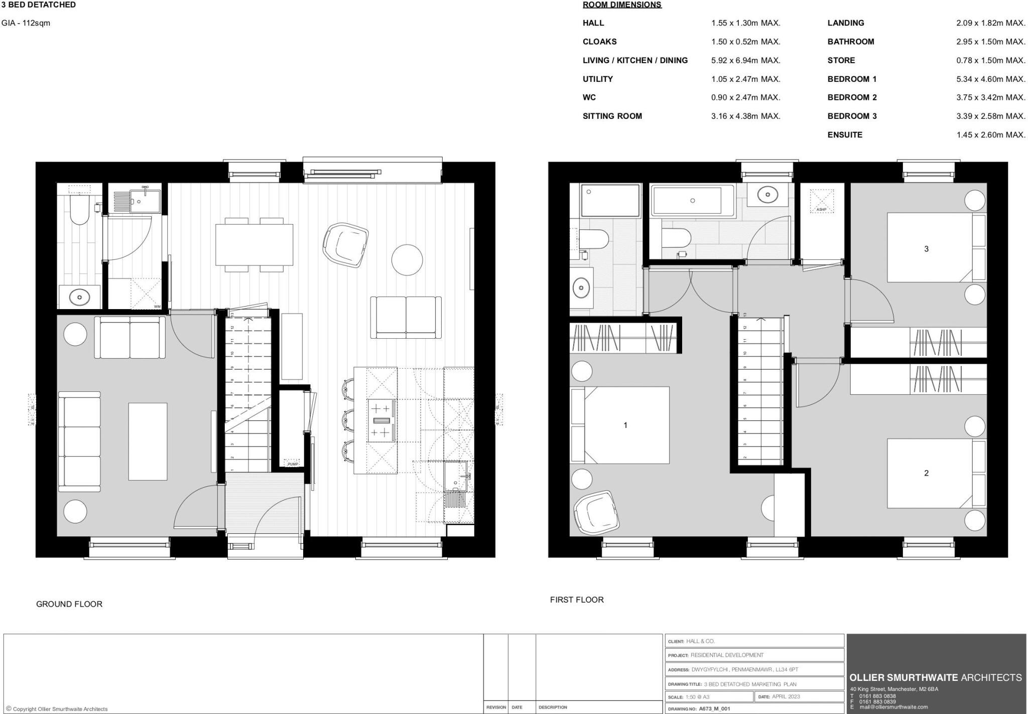
- Sqft (est)
- 1,205.56
The heatmap indicates the level of crime in the area. The color of the heatmap indicates the crime severity and recency.
Metrics Year-on-Year
- Average area value
- 401,278.00 £Increased by 42.31 %
- Est sale value
- 597,957.76 £Increased by 69.28 %
- Average area rental value
- 1,053.00 £/moDecreased by 6.32 %
- Est letting value
- 1,205.56 £/moUnchanged by 0.00 %
- Est rental Yield
- 3.15 %Decreased by 34.10 %
- Crime Rate
- 30.00 %Unchanged by 0.00 %
Agent Activity
Fletcher & Poole created the listing.
Nearby Schools
| Name | Type | Ofsted | Distance |
|---|---|---|---|
| Ysgol Capelulo | Welsh Establishment | 0.97 KM | |
| Ysgol Pencae | Welsh Establishment | 2.28 KM | |
| Ysgol Llangelynnin | Welsh Establishment | 6.10 KM | |
| Ysgol Aberconwy | Welsh Establishment | 6.54 KM | |
| Ysgol Porth Y Felin | Welsh Establishment | 6.96 KM |
Images
Nearby Streets
| Name | Average Price | Average Sqft | Distance |
|---|---|---|---|
| Golygfa Sychnant | £ 0 | 0 | 0.00 KM |
| Groesffordd Lane | £ 0 | 0 | 0.00 KM |
| Maes Y Lan | £ 0 | 0 | 0.00 KM |
Nearby Transport
| Name | NLC | TLC | Distance |
|---|---|---|---|
| Penmaenmawr | 2494 | PMW | 3.17 KM |
| Deganwy | 2480 | DGY | 7.16 KM |
| Conwy | 2486 | CNW | 7.25 KM |
| Llandudno | 2484 | LLD | 8.96 KM |
| Llandudno Junction | 2485 | LLJ | 9.63 KM |
Nearby Listings
| Address | Price | Type | Score | Distance |
|---|---|---|---|---|
| Y Bluen Goch, Glanyrafon Road, Dwygyfylchi | £ 345,000 | BUY | 7 / 10 | 0.00 KM |
| Y Bluen Goch, Glanyrafon Road, Dwygyfylchi | £ 525,000 | BUY | 7 / 10 | 0.00 KM |
| Y Bluen Goch, Dwygyfylchi | £ 450,000 | BUY | 6 / 10 | 0.00 KM |
| The Ash Y Bluen Goch, Dwygyfylchi | £ 345,000 | BUY | 7 / 10 | 0.00 KM |
| Y Bluen Goch, Dwygyfylchi | £ 345,000 | BUY | Unknown | 0.00 KM |
Nearby Properties
| Address | Price | Distance |
|---|---|---|
| Ty Gwynin Sant | £ 217,000 | 0.01 KM |
| School Cottage | £ 121,000 | 0.01 KM |
| Warborough | £ 112,000 | 0.01 KM |
| Hillside | £ 181,000 | 0.01 KM |
| Glyn Garth | £ 249,950 | 0.02 KM |