Eggleston Lane, Romaldkirk, Barnard Castle
By GSC Grays
£ 150,000
Reviews
2 out of 5 stars
GSC Grays says ..
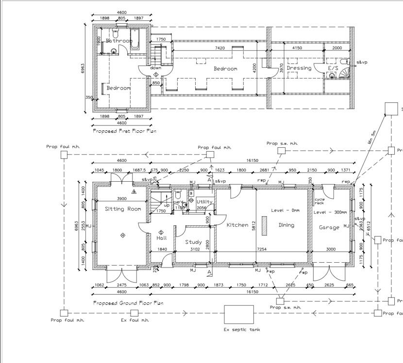
Planning permission has been granted for the construction of a generous sized two bedroom property, situated in the highly sought after village of Romaldkirk. The property briefly comprises an entrance hall, study, utility room, sitting room, dining room, breakfast kitchen, master bedroom with en...
Property Oracle says ..
This listing presents a building plot for sale in Romaldkirk, a village near Barnard Castle in County Durham. The plot comes with planning permission for a two-bedroom house, featuring a study, utility room, sitting room, dining room, breakfast kitchen, and master bedroom with en-suite. The provided images show a sizable plot of land, largely unimproved, within a rural setting. Aerial views suggest the area is comprised of a mix of residential properties and greenery. The plot’s appeal rests largely on the opportunity to build a custom home in a desirable rural location. The nearby schools show that there are a number of Ofsted rated schools nearby. However, there is a lack of data for property pricing per sqft, making a direct comparison with similar plots challenging. The closest comparable properties, though different in style and size, sell at considerably higher prices, suggesting a potential under-pricing, but the nature of the property is so different it is not a direct comparable. This suggests that buyers should perform detailed due diligence to understand all associated build costs to determine if the overall purchase cost, including build costs, is financially sensible. The lack of detailed information regarding infrastructure (sewer, water, etc) that will impact build cost should also be considered. This is an opportunity to build in a lovely village environment, but prospective buyers should thoroughly investigate the complete costs of acquisition and build before making a final decision.
Therefore, we give this property 5 / 10. *Disclaimer: This is our option and does constitute a recommendation or financial advice. Do your own research. *
- Price
- 7
- Condition
- 1
- Location
- 7
- Land
- 5
- Bedrooms
- 2
- Bathrooms
- 2
- Sqft (est)
- 2,491.20
The heatmap indicates the level of crime in the area. The color of the heatmap indicates the crime severity and recency.
Metrics Year-on-Year
- Average area value
- 484,999.00 £Increased by 46.03 %
- Est sale value
- 859,464.00 £Increased by 58.99 %
- Average area rental value
- 775.00 £/moIncreased by 4.59 %
- Est letting value
- 0.00 £/mo
- Est rental Yield
- 1.92 %Decreased by 28.36 %
- Crime Rate
- 50.00 %Unchanged by 0.00 %
Agent Activity
GSC Grays created the listing.
Nearby Schools
| Name | Type | Ofsted | Distance |
|---|---|---|---|
| Cotherstone Primary School | Community School | Outstanding | 4.14 KM |
| Middleton-In-Teesdale Nursery And Primary School | Community School | Good | 7.99 KM |
| Bowes Hutchinson'S Cofe (Aided) School | Voluntary Aided School | Outstanding | 8.72 KM |
Images
Nearby Streets
| Name | Average Price | Average Sqft | Distance |
|---|---|---|---|
| Eggleston Lane | £ 150,000 | 0 | 0.00 KM |
| Water Gap | £ 0 | 0 | 0.00 KM |
| High Green | £ 0 | 0 | 0.00 KM |
Nearby Listings
| Address | Price | Type | Score | Distance |
|---|---|---|---|---|
| Eggleston Lane, Romaldkirk, Barnard Castle | £ 150,000 | BUY | 5 / 10 | 0.00 KM |
| Beech beck, Romaldkirk | £ 550,000 | BUY | 7 / 10 | 0.26 KM |
| Romaldkirk, Barnard Castle, County Durham, DL12 | £ 180,000 | BUY | 7 / 10 | 0.27 KM |
| Hollincroft, Romaldkirk, Barnard Castle | £ 560,000 | BUY | 7 / 10 | 0.53 KM |
| Hollin Crescent, Romaldkirk, County Durham, DL12 | £ 175,000 | BUY | 4 / 10 | 0.61 KM |
Nearby Properties
| Address | Price | Distance |
|---|---|---|
| Redwood House | £ 240,000 | 1.40 KM |
| Woodsike | £ 365,000 | 1.40 KM |
| Westerley House | £ 295,000 | 1.65 KM |
| Marland Lodge | £ 420,000 | 1.65 KM |
| Brookside | £ 195,000 | 1.65 KM |