Hunters says ..
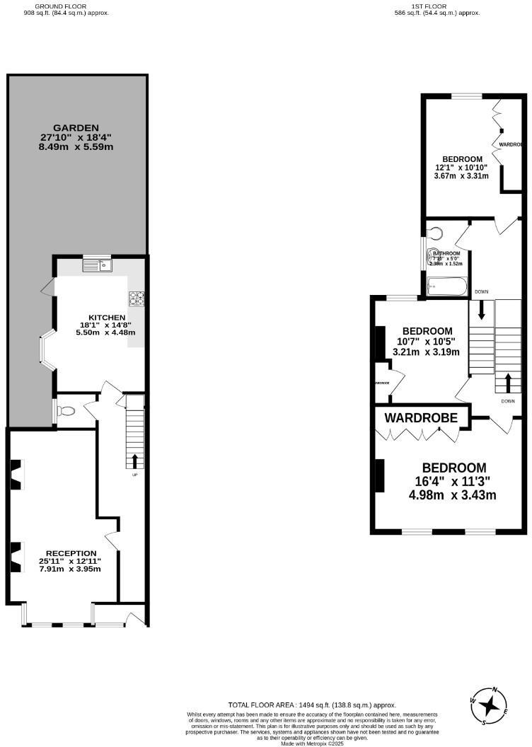
Available chain free, this three bedroom Victorian house is perfectly located on one of Stoke Newington's most sought-after roads with a fantastic rear garden. Available to view by appointment only the property comprises, double reception room, kitchen/dining room leading to private rear...
Property Oracle says ..
Therefore, we give this property 6 / 10. *Disclaimer: This is our option and does constitute a recommendation or financial advice. Do your own research. *
- Price
- 6
- Condition
- 6
- Location
- 8
- Land
- 7
- Bedrooms
- 3
- Bathrooms
- 1
- Sqft (est)
- 1,524.00
The heatmap indicates the level of crime in the area. The color of the heatmap indicates the crime severity and recency.
Metrics Year-on-Year
- Average area value
- 996,818.00 £Increased by 20.60 %
- Est sale value
- 1,306,068.00 £Increased by 149.85 %
- Average area rental value
- 2,571.00 £/moIncreased by 1.70 %
- Est letting value
- 3,048.00 £/moIncreased by 100.00 %
- Est rental Yield
- 3.10 %Decreased by 15.53 %
- Crime Rate
- 1.00 %Unchanged by 0.00 %
from 826,544.00 £
from 522,732.00 £
from 2,528.00 £/mo
from 1,524.00 £/mo
from 3.67 %
from 1.00 %
Agent Activity
Hunters created the listing.
Nearby Schools
| Name | Type | Ofsted | Distance |
|---|---|---|---|
| William Patten Primary School | Community School | Outstanding | 0.27 KM |
| St Mary'S Church Of England Primary School, Stoke Newington | Voluntary Aided School | Good | 0.63 KM |
| The Garden School | Community Special School | Outstanding | 0.70 KM |
| Tawhid Boys School, Tawhid Educational Trust | Other Independent School | Good | 0.73 KM |
| Linden Children'S Centre | Children's Centre | 0.79 KM |
Images
Nearby Streets
| Name | Average Price | Average Sqft | Distance |
|---|---|---|---|
| Scholars' Place | £ 825,000 | 0 | 0.00 KM |
| Sanford Lane | £ 0 | 0 | 0.00 KM |
| Sandford Walk | £ 0 | 0 | 0.00 KM |
| Station Approach | £ 0 | 0 | 0.00 KM |
| Wordsworth Road | £ 0 | 0 | 0.00 KM |
Nearby Transport
| Name | NLC | TLC | Distance |
|---|---|---|---|
| Stoke Newington | 6934 | SKW | 0.71 KM |
| Rectory Road | 6967 | REC | 0.91 KM |
| Dalston Kingsland | 1429 | DLK | 1.30 KM |
| Dalston Junction | 1443 | DLJ | 1.53 KM |
| Stamford Hill | 6968 | SMH | 1.63 KM |
Nearby Listings
| Address | Price | Type | Score | Distance |
|---|---|---|---|---|
| Lavers Road, London, N16 | £ 1,250,000 | BUY | 6 / 10 | 0.00 KM |
| Kynaston Road, London, N16 | £ 1,400,000 | BUY | 7 / 10 | 0.06 KM |
| Kynaston Road, London, N16 | £ 1,800,000 | BUY | 7 / 10 | 0.09 KM |
| Dynevor Road, Stoke Newington | £ 1,450,000 | BUY | 6 / 10 | 0.10 KM |
| Dynevor Road, London | £ 1,500,000 | BUY | Unknown | 0.10 KM |
Nearby Properties
| Address | Price | Distance |
|---|---|---|
| 30 Lavers Road | £ 836,000 | 0.02 KM |
| 28 Lavers Road | £ 450,000 | 0.02 KM |
| 24 Lavers Road | £ 541,000 | 0.02 KM |
| 18 Lavers Road | £ 1,400,000 | 0.02 KM |
| 32a Lavers Road | £ 640,000 | 0.02 KM |