Sowerbys says ..
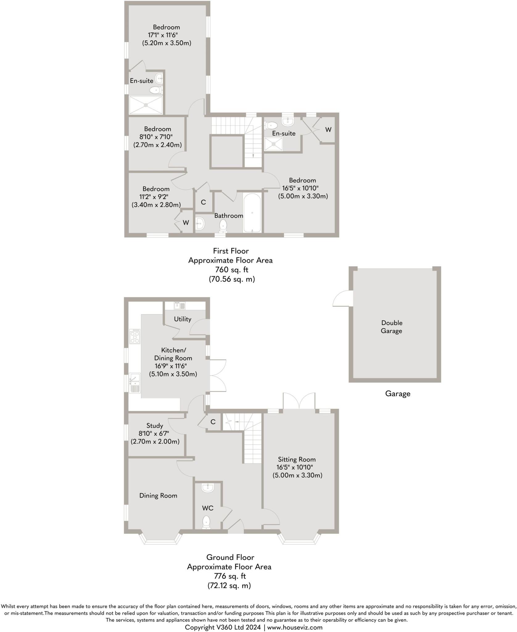
*** Guide Price £575,000 - £600,000 *** A wonderful four-bedroom detached home with a well-landscaped garden and double garage.
Property Oracle says ..
Therefore, we give this property 7 / 10. *Disclaimer: This is our option and does constitute a recommendation or financial advice. Do your own research. *
- Price
- 6
- Condition
- 8
- Location
- 7
- Land
- 7
- Bedrooms
- 4
- Bathrooms
- 3
- Sqft (est)
- 975.42
The heatmap indicates the level of crime in the area. The color of the heatmap indicates the crime severity and recency.
Metrics Year-on-Year
- Average area value
- 262,778.00 £Increased by 18.64 %
- Est sale value
- 286,773.48 £Increased by 7.69 %
- Average area rental value
- 1,094.00 £/moDecreased by 18.24 %
- Est letting value
- 975.42 £/moUnchanged by 0.00 %
- Est rental Yield
- 5.00 %Decreased by 31.03 %
- Crime Rate
- 5.00 %Unchanged by 0.00 %
from 221,500.00 £
from 266,289.66 £
from 1,338.00 £/mo
from 975.42 £/mo
from 7.25 %
from 5.00 %
Agent Activity
Sowerbys created the listing.
Nearby Schools
| Name | Type | Ofsted | Distance |
|---|---|---|---|
| Include School Norfolk | Other Independent School | Requires improvement | 0.50 KM |
| Garrick Green Infant School | Academy Converter | Good | 0.67 KM |
| Hall School | Foundation Special School | Good | 0.73 KM |
| Lodge Lane Infant School | Academy Converter | Good | 1.09 KM |
| Old Catton Cofe Vc Junior School | Voluntary Controlled School | Good | 1.18 KM |
Images
Nearby Streets
| Name | Average Price | Average Sqft | Distance |
|---|---|---|---|
| Lancaster Close | £ 400,000 | 0 | 0.00 KM |
| Chase Close | £ 0 | 0 | 0.00 KM |
| Burrows Close | £ 0 | 0 | 0.00 KM |
| Coller Road | £ 0 | 0 | 0.00 KM |
| Juby Court | £ 113,750 | 0 | 0.00 KM |
Nearby Transport
| Name | NLC | TLC | Distance |
|---|---|---|---|
| Norwich | 7309 | NRW | 4.67 KM |
Nearby Listings
| Address | Price | Type | Score | Distance |
|---|---|---|---|---|
| Taylors Lane, Catton | £ 525,000 | BUY | Unknown | 0.00 KM |
| Taylors Lane, Norwich, NR6 | £ 575,000 | BUY | 7 / 10 | 0.00 KM |
| Taylors Lane, Norwich | £ 550,000 | BUY | Unknown | 0.00 KM |
| Taylors Lane, Norwich | £ 730,000 | BUY | 7 / 10 | 0.09 KM |
| Taylors Lane, Old Catton | £ 625,000 | BUY | 7 / 10 | 0.09 KM |
Nearby Properties
| Address | Price | Distance |
|---|---|---|
| 22 Taylors Lane | £ 415,000 | 0.04 KM |
| 34 Taylors Lane | £ 450,000 | 0.04 KM |
| 37 Taylors Lane | £ 360,000 | 0.04 KM |
| 3 Embry Crescent | £ 400,000 | 0.12 KM |
| 1 Embry Crescent | £ 320,000 | 0.12 KM |