Northumberland Place, Teignmouth, TQ14
By Dart & Partners
£ 145,000
Reviews
3 out of 5 stars
Dart & Partners says ..
Opportunity to purchase a recently refurbished apartment situated just a few steps away from Teignmouth’s river beach, with easy access to all local amenities.
Property Oracle says ..
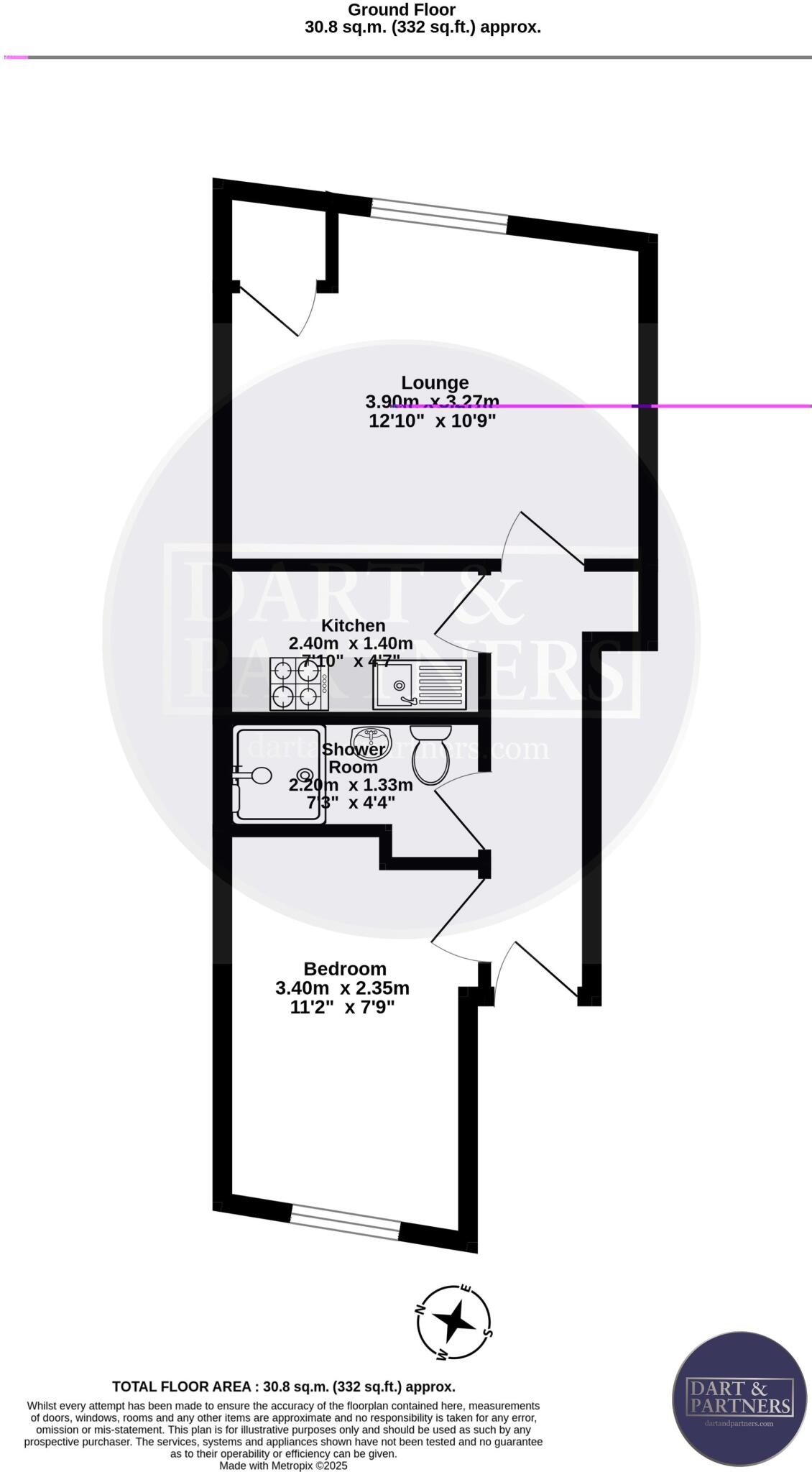
This is a one-bedroom flat in Teignmouth East. The flat is in generally good condition, with a modern kitchen and bathroom. It is located close to local amenities and the sea, and the train station is within walking distance. The property has very little land. The listing price seems reasonable for the area.
Therefore, we give this property 6 / 10. *Disclaimer: This is our option and does constitute a recommendation or financial advice. Do your own research. *
- Price
- 8
- Condition
- 7
- Location
- 7
- Land
- 3
- Bedrooms
- 1
- Bathrooms
- 1
The heatmap indicates the level of crime in the area. The color of the heatmap indicates the crime severity and recency.
Metrics Year-on-Year
- Average area value
- 199,417.00 £Decreased by 57.59 %
- Average area rental value
- 1,250.00 £/moIncreased by 20.66 %
- Est rental Yield
- 7.52 %Increased by 184.85 %
- Crime Rate
- 40.00 %Unchanged by 0.00 %
Agent Activity
Dart & Partners created the listing.
Nearby Schools
| Name | Type | Ofsted | Distance |
|---|---|---|---|
| Teignmouth Community School, Exeter Road | Academy Converter | Requires improvement | 0.97 KM |
| Shaldon Primary School | Academy Converter | 1.30 KM | |
| Trinity School | Other Independent School | 1.34 KM | |
| Dawlish Children'S Centre | Children's Centre | 1.50 KM | |
| Teignmouth Children'S Centre | Children's Centre | 1.50 KM |
Images
Nearby Streets
| Name | Average Price | Average Sqft | Distance |
|---|---|---|---|
| Bank Street | £ 0 | 0 | 0.00 KM |
| Powderham Terrace | £ 0 | 0 | 0.00 KM |
| Wellington Street | £ 0 | 0 | 0.00 KM |
| Den Road | £ 0 | 0 | 0.00 KM |
| Bilton Park Road | £ 230,000 | 0 | 0.00 KM |
Nearby Transport
| Name | NLC | TLC | Distance |
|---|---|---|---|
| Teignmouth | 3430 | TGM | 0.53 KM |
| Dawlish | 3408 | DWL | 5.45 KM |
| Dawlish Warren | 3409 | DWW | 8.50 KM |
| Torre | 3432 | TRR | 9.58 KM |
Nearby Listings
| Address | Price | Type | Score | Distance |
|---|---|---|---|---|
| Northumberland Place, Teignmouth, TQ14 | £ 145,000 | BUY | 6 / 10 | 0.00 KM |
| Northumberland Place, Teignmouth, TQ14 | £ 157,500 | BUY | 6 / 10 | 0.00 KM |
| Northumberland Place, Teignmouth | £ 425,000 | BUY | 6 / 10 | 0.03 KM |
| Northumberland Place, Teignmouth, TQ14 8BZ | £ 400,000 | BUY | Unknown | 0.03 KM |
| Northumberland Place, Teignmouth, TQ14 | £ 145,000 | BUY | Unknown | 0.04 KM |
Nearby Properties
| Address | Price | Distance |
|---|---|---|
| 22 Northumberland Place | £ 290,000 | 0.03 KM |
| 20 Northumberland Place | £ 250,000 | 0.03 KM |
| 15 Northumberland Place | £ 187,500 | 0.03 KM |
| 26 Northumberland Place | £ 170,000 | 0.04 KM |
| 29 Northumberland Place | £ 514,000 | 0.04 KM |