RE
Lacey Green, Wilmslow, Cheshire, SK9
By Reeds Rains
£ 499,950
Reviews
4 out of 5 stars
Reeds Rains says ..
*BUILD YOUR OWN HOME!!* An amazing opportunity to purchase this building plot with Planning Permission Granted. Occupying a private and secluded position, tucked away and located just off Lacey Green Road. Accessed via it's own private gated driveway. Full planning granted to bui...
Property Oracle says ..
Therefore, we give this property 8 / 10. *Disclaimer: This is our option and does constitute a recommendation or financial advice. Do your own research. *
- Price
- 9
- Condition
- 9
- Location
- 8
- Land
- 9
- Bedrooms
- 6
- Bathrooms
- 3
- Sqft (est)
- 2,382.46
The heatmap indicates the level of crime in the area. The color of the heatmap indicates the crime severity and recency.
Metrics Year-on-Year
- Average area value
- 674,983.00 £Increased by 4.16 %
- Est sale value
- 1,579,570.98 £Increased by 78.71 %
- Average area rental value
- 2,332.00 £/moIncreased by 16.72 %
- Est letting value
- 4,764.92 £/moIncreased by 100.00 %
- Est rental Yield
- 4.15 %Increased by 12.16 %
- Crime Rate
- 7.00 %Unchanged by 0.00 %
from 648,050.00 £
from 883,892.66 £
from 1,998.00 £/mo
from 2,382.46 £/mo
from 3.70 %
from 7.00 %
Agent Activity
Reeds Rains created the listing.
Nearby Schools
| Name | Type | Ofsted | Distance |
|---|---|---|---|
| Lacey Green Primary Academy | Academy Converter | 0.64 KM | |
| Wilmslow Preparatory School | Other Independent School | 1.21 KM | |
| Wilmslow High School | Community School | Good | 1.60 KM |
| Oakenclough & Poynyon Children'S Centre | Children's Centre | 1.78 KM | |
| Handforth Grange Primary School | Academy Converter | 1.97 KM |
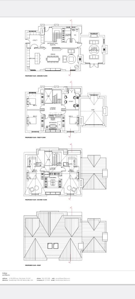
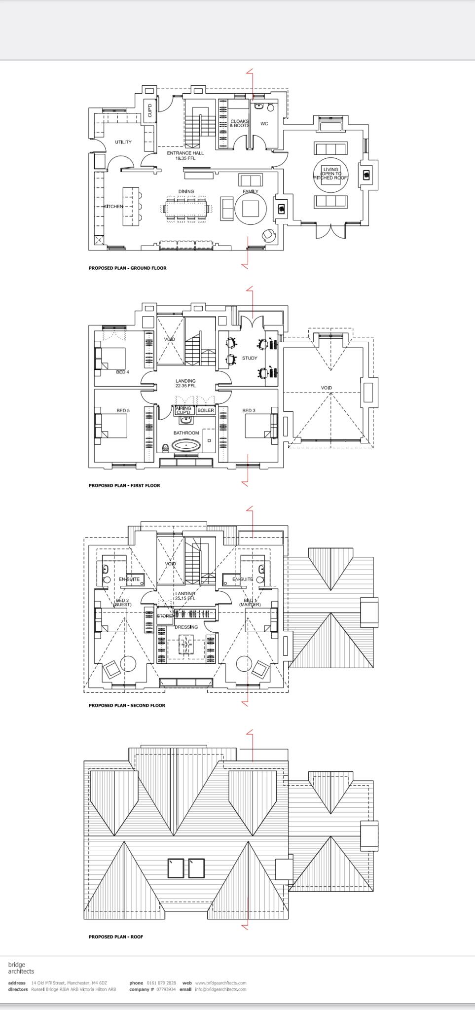
Images
Nearby Streets
| Name | Average Price | Average Sqft | Distance |
|---|---|---|---|
| Prescott Road | £ 325,000 | 0 | 0.00 KM |
| Orchid Close | £ 0 | 0 | 0.00 KM |
| Honeysuckle Close | £ 0 | 0 | 0.00 KM |
| Poppy Road | £ 704,983 | 0 | 0.00 KM |
| Bollin Link | £ 0 | 0 | 0.00 KM |
Nearby Transport
| Name | NLC | TLC | Distance |
|---|---|---|---|
| Wilmslow | 2774 | WML | 1.10 KM |
| Styal | 2868 | SYA | 1.85 KM |
| Handforth | 2767 | HTH | 2.01 KM |
| Alderley Edge | 2760 | ALD | 3.74 KM |
| Heald Green | 2860 | HDG | 3.77 KM |
Nearby Listings
| Address | Price | Type | Score | Distance |
|---|---|---|---|---|
| Lacey Green, Wilmslow, Cheshire, SK9 | £ 499,950 | BUY | 8 / 10 | 0.00 KM |
| Lacey Green, Wilmslow | £ 769,950 | BUY | 8 / 10 | 0.06 KM |
| Lacey Green, Wilmslow | £ 235,000 | BUY | 6 / 10 | 0.10 KM |
| Lacey Court, Wilmslow | £ 190,000 | BUY | Unknown | 0.12 KM |
| Barlow Road, Wilmslow | £ 425,000 | BUY | 7 / 10 | 0.15 KM |
Nearby Properties
| Address | Price | Distance |
|---|---|---|
| 90 Lacey Green | £ 710,000 | 0.10 KM |
| 44 Lacey Green | £ 107,500 | 0.10 KM |
| 67 Lacey Green | £ 235,000 | 0.10 KM |
| 75 Lacey Green | £ 243,000 | 0.10 KM |
| 80 Lacey Green | £ 219,000 | 0.10 KM |