Wythburn Road, Frome, Somerset, BA11
By McAllisters
£ 350,000
Reviews
3 out of 5 stars
McAllisters says ..
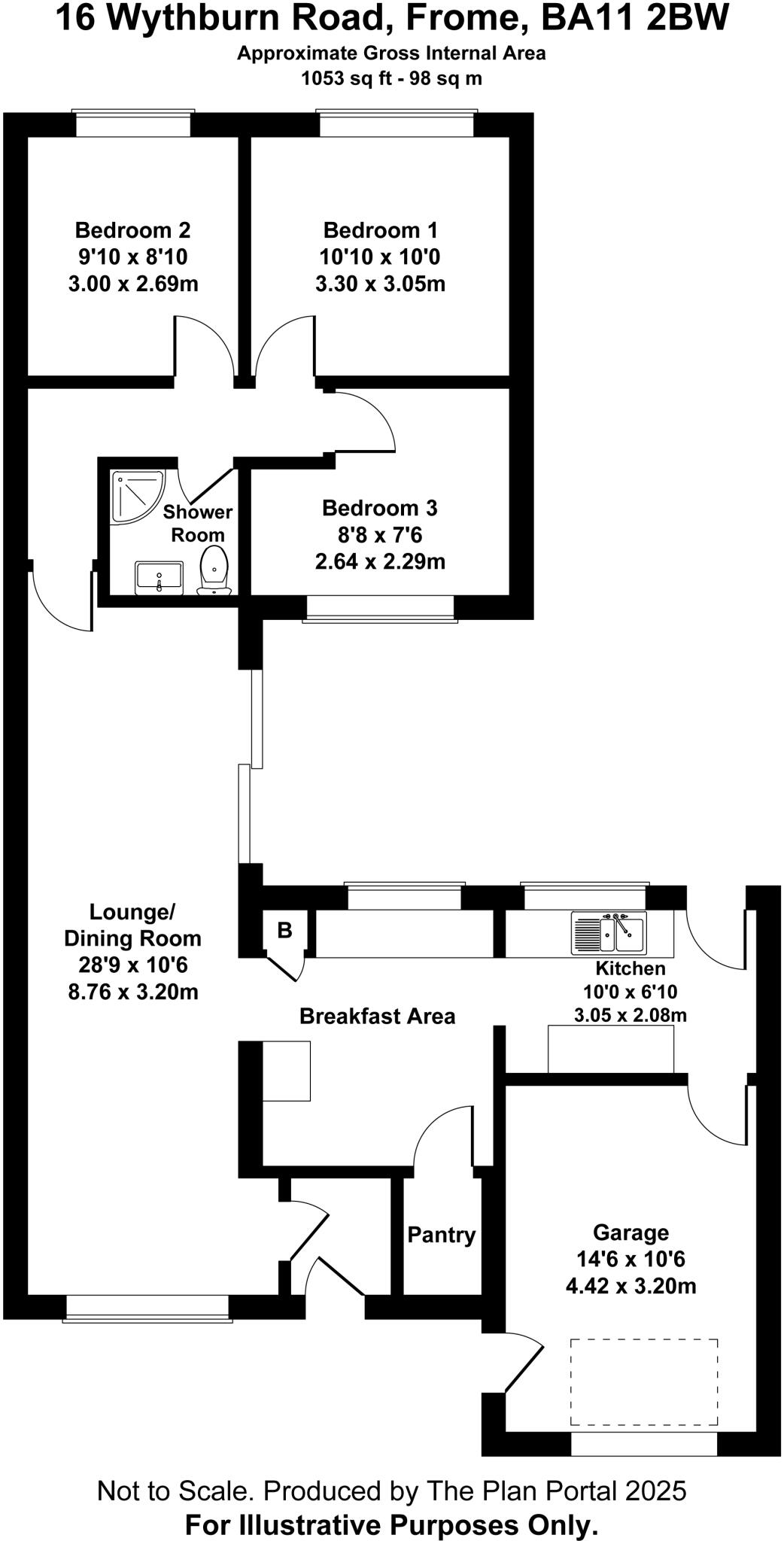
*A three bedroom linked-detached bungalow requiring general updating*Large dual aspect lounge/dining room with an open fireplace*Off road parking in addition to a single garage*Enclosed rear garden and no onward chain.
Property Oracle says ..
The property is a three-bedroom bungalow listed at £350,000. It has a total area of 580.17 sqft and a plot size of 1,053 sqft. The photos reveal a property that appears to be in generally fair condition, although some updating may be needed. The kitchen and bathroom appear dated, and some cosmetic improvements would likely enhance the overall aesthetic appeal. The property benefits from off-street parking and a single garage, which are valuable features. The presence of an enclosed rear garden is a positive aspect, offering outdoor space. The location in Frome, Somerset, appears reasonably convenient. The proximity to Hayesdown First School (0.17 km) and Selwood Academy (0.69 km) could be attractive to families. The distance to Frome railway station (1.28 km) provides access to public transportation. However, without more detailed information on local amenities and the overall character of the neighborhood, a definitive assessment of the location’s desirability is difficult. Considering the average house price in the area is £448,389 and the average price per sqft is £320, the listed price of £350,000 for this 580.17 sqft property seems relatively reasonable, especially given its smaller size and the need for some updating. However, the lack of sqft data for comparable properties makes a precise price comparison challenging. The presence of a garden and garage adds to its value. The property’s condition is fair. While habitable, some modernisation would improve its overall appeal and value. The garden is a positive feature, providing outdoor space. The price, while below the average for the area, seems justifiable considering the property’s size and condition.
Therefore, we give this property 6 / 10. *Disclaimer: This is our option and does constitute a recommendation or financial advice. Do your own research. *
- Price
- 7
- Condition
- 6
- Location
- 7
- Land
- 7
- Bedrooms
- 3
- Bathrooms
- 1
- Sqft (est)
- 580.17
- Lot (est)
- 1,053.00
The heatmap indicates the level of crime in the area. The color of the heatmap indicates the crime severity and recency.
Metrics Year-on-Year
- Average area value
- 428,865.00 £Increased by 22.96 %
- Est sale value
- 157,806.24 £Decreased by 24.65 %
- Average area rental value
- 1,195.00 £/moDecreased by 8.99 %
- Est letting value
- 0.00 £/moDecreased by 100.00 %
- Est rental Yield
- 3.34 %Decreased by 26.11 %
- Crime Rate
- 6.00 %Unchanged by 0.00 %
Agent Activity
McAllisters created the listing.
Nearby Schools
| Name | Type | Ofsted | Distance |
|---|---|---|---|
| Hayesdown First School | Academy Sponsor Led | Good | 0.17 KM |
| Frome North | Children's Centre | 0.17 KM | |
| Selwood Academy | Academy Converter | Good | 0.69 KM |
| Frome Community College | Community School | Good | 1.60 KM |
| North Hill House | Other Independent Special School | Inadequate | 1.78 KM |
Images
Nearby Streets
| Name | Average Price | Average Sqft | Distance |
|---|---|---|---|
| Dean Close | £ 0 | 0 | 0.00 KM |
| Clover Close | £ 260,000 | 0 | 0.00 KM |
| Beech Court | £ 0 | 0 | 0.00 KM |
| Burdock Road | £ 300,000 | 0 | 0.00 KM |
| Station Approach | £ 475,000 | 0 | 0.00 KM |
Nearby Transport
| Name | NLC | TLC | Distance |
|---|---|---|---|
| Frome | 5707 | FRO | 1.28 KM |
Nearby Listings
| Address | Price | Type | Score | Distance |
|---|---|---|---|---|
| Wythburn Road, Frome, Somerset, BA11 | £ 350,000 | BUY | 6 / 10 | 0.00 KM |
| Wythburn Road, Frome, Somerset, BA11 | £ 400,000 | BUY | 6 / 10 | 0.05 KM |
| Wyville Road, Frome | £ 375,000 | BUY | 7 / 10 | 0.09 KM |
| Wythburn Road, Frome | £ 350,000 | BUY | 6 / 10 | 0.11 KM |
| Linsvale Drive, Frome, Frome, BA11 | £ 385,000 | BUY | 7 / 10 | 0.12 KM |
Nearby Properties
| Address | Price | Distance |
|---|---|---|
| 12 Wythburn Road | £ 238,000 | 0.06 KM |
| 10 Wythburn Road | £ 185,000 | 0.06 KM |
| 16 Wythburn Road | £ 240,000 | 0.06 KM |
| 6 Wythburn Road | £ 332,500 | 0.06 KM |
| 17 Wythburn Road | £ 163,000 | 0.06 KM |