Town Centre, Convenient for Reading Station, RG1
By Chancellors
£ 285,000
Reviews
3 out of 5 stars
Chancellors says ..
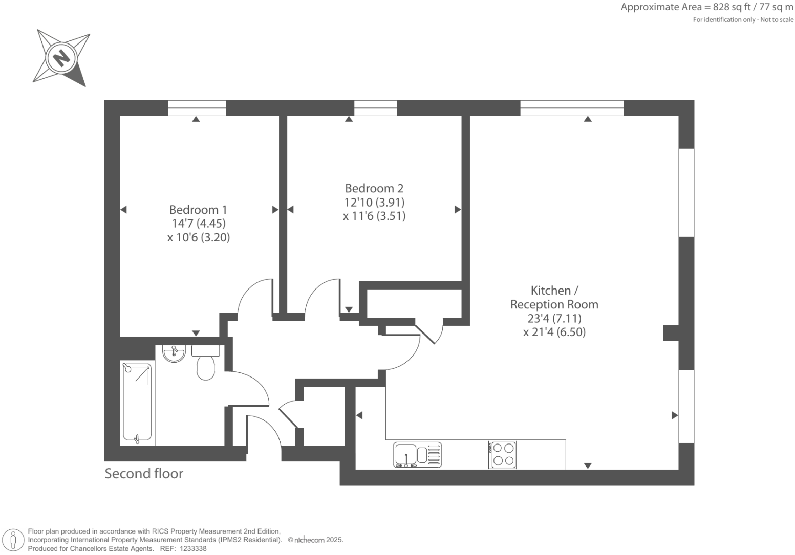
Set in this popular development of Reading town centre, convenient to Reading train station, is this 2 double bedroom apartment being sold with no chain.
Property Oracle says ..
The property is a two-bedroom apartment located in Reading, Berkshire. It is within walking distance of Reading train station and the town centre, offering convenient access to shops, restaurants, and the River Thames. The apartment itself appears to be in good condition based on the provided photos. The kitchen and bathroom are modern and well-maintained. The living area is spacious and benefits from plenty of natural light. There is no mention of a garden or outdoor space.
Given the property’s central location, proximity to amenities and transport links, and its seemingly good condition, the list price of £285,000 appears reasonable, although further analysis of the average price per square foot for similar properties in the area would be beneficial to confirm this. The lack of plot size data makes it difficult to fully assess the value of the property.
Therefore, we give this property 6 / 10. *Disclaimer: This is our option and does constitute a recommendation or financial advice. Do your own research. *
- Price
- 7
- Condition
- 8
- Location
- 9
- Land
- 1
- Bedrooms
- 2
- Bathrooms
- 0
- Sqft (est)
- 448.10
The heatmap indicates the level of crime in the area. The color of the heatmap indicates the crime severity and recency.
Metrics Year-on-Year
- Average area value
- 350,323.00 £Decreased by 1.18 %
- Est sale value
- 193,131.10 £Increased by 20.73 %
- Average area rental value
- 1,334.00 £/moDecreased by 2.49 %
- Est letting value
- 448.10 £/moUnchanged by 0.00 %
- Est rental Yield
- 4.57 %Decreased by 1.30 %
- Crime Rate
- 15.00 %Unchanged by 0.00 %
Agent Activity
Chancellors created the listing.
Nearby Schools
| Name | Type | Ofsted | Distance |
|---|---|---|---|
| Civitas Academy | Academy Sponsor Led | Good | 0.36 KM |
| Coley Primary School | Community School | Good | 0.58 KM |
| E P Collier Primary School | Community School | Good | 0.82 KM |
| Oxford Road Community School | Community School | Good | 0.88 KM |
| Katesgrove Primary School | Community School | Good | 0.96 KM |
Images
Nearby Streets
| Name | Average Price | Average Sqft | Distance |
|---|---|---|---|
| Alfred Street | £ 243,333 | 0 | 0.00 KM |
| Windrush Roundabout | £ 0 | 0 | 0.00 KM |
| Phoenix Place | £ 165,000 | 0 | 0.00 KM |
| Marshall Close | £ 0 | 0 | 0.00 KM |
| Castle Street | £ 195,000 | 0 | 0.00 KM |
Nearby Transport
| Name | NLC | TLC | Distance |
|---|---|---|---|
| Reading | 3149 | RDG | 0.90 KM |
| Reading West | 3160 | RDW | 1.23 KM |
| Tilehurst | 3154 | TLH | 5.91 KM |
| Earley | 5694 | EAR | 6.92 KM |
| Winnersh Triangle | 5698 | WTI | 9.90 KM |
Nearby Listings
| Address | Price | Type | Score | Distance |
|---|---|---|---|---|
| Central Reading, Berkshire, RG1 | £ 280,000 | BUY | 5 / 10 | 0.00 KM |
| Town Centre, Convenient for Reading Station, RG1 | £ 285,000 | BUY | 6 / 10 | 0.00 KM |
| Central Reading, Berkshire, RG1 | £ 310,000 | BUY | Unknown | 0.00 KM |
| Douglas Bader Court, RG5 | £ 140,000 | BUY | 5 / 10 | 0.03 KM |
| Bridge Park, Twyford, Reading, Berkshire, RG10 | £ 615,000 | BUY | 6 / 10 | 0.03 KM |
Nearby Properties
| Address | Price | Distance |
|---|---|---|
| 100 Oxford Road | £ 214,000 | 0.09 KM |
| 109 Oxford Road | £ 435,000 | 0.11 KM |
| 12 Howard Street | £ 249,999 | 0.12 KM |
| 30 Howard Street | £ 324,000 | 0.12 KM |
| 16 Howard Street | £ 400,000 | 0.12 KM |