Wright & Co says ..
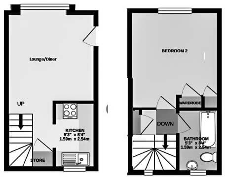
***FOR THE ATTENTION OF FIRST TIME BUYERS AND INVESTORS*** A one bedroom freehold mews style cottage which is part of a period Maltings conversion, tucked away in a pretty courtyard location. The property benefits from a fitted kitchen, open plan living room to the ground floor and ...
Property Oracle says ..
Therefore, we give this property 5 / 10. *Disclaimer: This is our option and does constitute a recommendation or financial advice. Do your own research. *
- Price
- 7
- Condition
- 6
- Location
- 8
- Land
- 1
- Bedrooms
- 1
- Bathrooms
- 1
- Sqft (est)
- 86.94
The heatmap indicates the level of crime in the area. The color of the heatmap indicates the crime severity and recency.
Metrics Year-on-Year
- Average area value
- 500,533.00 £Decreased by 0.06 %
- Est sale value
- 64,422.54 £Increased by 61.09 %
- Average area rental value
- 1,684.00 £/moDecreased by 0.88 %
- Est letting value
- 173.88 £/moIncreased by 100.00 %
- Est rental Yield
- 4.04 %Decreased by 0.74 %
- Crime Rate
- 16.00 %Unchanged by 0.00 %
from 500,831.00 £
from 39,992.40 £
from 1,699.00 £/mo
from 86.94 £/mo
from 4.07 %
from 16.00 %
Agent Activity
Wright & Co created the listing.
Nearby Schools
| Name | Type | Ofsted | Distance |
|---|---|---|---|
| Hockerill Anglo-European College | Academy Converter | 0.69 KM | |
| The Hertfordshire & Essex High School And Science College | Academy Converter | 0.71 KM | |
| White Trees Independent School | Other Independent Special School | Requires improvement | 0.87 KM |
| Eh5 Little Squirrels Family Centre | Children's Centre | 1.05 KM | |
| Eh4 Windhill Family Centre | Children's Centre | 1.05 KM |
Images
Nearby Streets
| Name | Average Price | Average Sqft | Distance |
|---|---|---|---|
| A1250 | £ 280,000 | 0 | 0.00 KM |
| Harrington Close | £ 5,200,000 | 0 | 0.00 KM |
| Sextons Road | £ 0 | 0 | 0.00 KM |
| Morton Peto Road | £ 240,000 | 0 | 0.00 KM |
| All Saints Close | £ 0 | 0 | 0.00 KM |
Nearby Transport
| Name | NLC | TLC | Distance |
|---|---|---|---|
| Bishops Stortford | 6800 | BIS | 0.36 KM |
| Stansted Mountfitchet | 6833 | SST | 5.20 KM |
| Sawbridgeworth | 6806 | SAW | 6.21 KM |
| Elsenham (Essex) | 6832 | ESM | 8.96 KM |
| Harlow Mill | 6804 | HWM | 9.57 KM |
Nearby Listings
| Address | Price | Type | Score | Distance |
|---|---|---|---|---|
| Bishop's Stortford , CM23 | £ 250,000 | BUY | 5 / 10 | 0.00 KM |
| Bakers Court, Hockerill Street, Bishop's Stortford, Hertfordshire | £ 375,000 | BUY | 6 / 10 | 0.03 KM |
| Castle View, Bishop's Stortford | £ 139,995 | BUY | 5 / 10 | 0.03 KM |
| Hockerill Street, Bishop's Stortford, Hertfordshire, CM23 | £ 149,995 | BUY | 6 / 10 | 0.03 KM |
| Hockerill Street, Bishop's Stortford, Hertfordshire, CM23 | £ 265,000 | BUY | 6 / 10 | 0.04 KM |
Nearby Properties
| Address | Price | Distance |
|---|---|---|
| 50a Hockerill Street | £ 120,000 | 0.03 KM |
| 22a Hockerill Street | £ 122,640 | 0.03 KM |
| 40b Hockerill Street | £ 140,000 | 0.03 KM |
| 42b Hockerill Street | £ 218,500 | 0.03 KM |
| 46a Hockerill Street | £ 120,000 | 0.03 KM |