Brookfields, West Wellow, Romsey, Hampshire
By Michael Rhodes
£ 490,000
Reviews
3 out of 5 stars
Michael Rhodes says ..
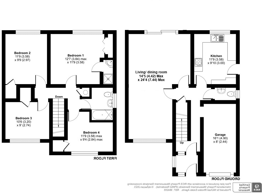
Located on a popular road this four bedroom detached property in West Wellow includes a garage, private garden and off street parking.
Property Oracle says ..
This four-bedroom property in West Wellow, Hampshire, is situated on Brookfields, offering a potentially appealing combination of village life and accessibility. The property shows a modest sized garden in the provided photos. The interior photos showcase a traditional style, with finishes that appear to be in functional order but may benefit from some modernisation to meet current tastes. While the property is not newly built, the photos suggest that it is habitable. Four bedrooms provide ample space for a family, and the existing layout and potential for extension offer buyers options for personalising the property. The close proximity to schools in the surrounding area adds to the property’s family-friendly appeal. The lack of information regarding the exact plot size, and the average property prices of the nearby streets being largely unusable limits the scope of this property report.
Therefore, we give this property 6 / 10. *Disclaimer: This is our option and does constitute a recommendation or financial advice. Do your own research. *
- Price
- 7
- Condition
- 6
- Location
- 7
- Land
- 6
- Bedrooms
- 4
- Bathrooms
- 1
- Sqft (est)
- 1,430.20
The heatmap indicates the level of crime in the area. The color of the heatmap indicates the crime severity and recency.
Metrics Year-on-Year
- Average area value
- 988,059.00 £Increased by 15.43 %
- Est sale value
- 549,196.80 £Increased by 0.79 %
- Average area rental value
- 2,205.00 £/moIncreased by 56.05 %
- Est letting value
- 0.00 £/mo
- Est rental Yield
- 2.68 %Increased by 35.35 %
- Crime Rate
- 94.00 %Unchanged by 0.00 %
Agent Activity
Michael Rhodes created the listing.
Nearby Schools
| Name | Type | Ofsted | Distance |
|---|---|---|---|
| Wellow Primary School | Academy Converter | 3.52 KM | |
| St Edward'S School | Other Independent Special School | Good | 3.91 KM |
| Copythorne Cofe Infant School | Voluntary Controlled School | Good | 5.59 KM |
| Embley | Other Independent School | 5.79 KM | |
| The New Forest Church Of England Primary School | Academy Converter | 5.86 KM |
Images
Nearby Streets
| Name | Average Price | Average Sqft | Distance |
|---|---|---|---|
| Stour Close | £ 0 | 0 | 0.00 KM |
| Bourne Close | £ 0 | 0 | 0.00 KM |
| The Beeches | £ 0 | 0 | 0.00 KM |
| Purley Way | £ 0 | 0 | 0.00 KM |
| Plantation Road | £ 0 | 0 | 0.00 KM |
Nearby Transport
| Name | NLC | TLC | Distance |
|---|---|---|---|
| Mottisfont And Dunbridge | 5944 | DBG | 8.50 KM |
| Dean (Wilts) | 5942 | DEN | 9.07 KM |
Nearby Listings
| Address | Price | Type | Score | Distance |
|---|---|---|---|---|
| Brookfields, West Wellow, Romsey, Hampshire | £ 490,000 | BUY | 6 / 10 | 0.00 KM |
| Stour Close, West Wellow, Romsey, Hampshire, SO51 | £ 610,000 | BUY | 7 / 10 | 0.09 KM |
| Arun Way, West Wellow, Romsey, Hampshire, SO51 | £ 625,000 | BUY | 7 / 10 | 0.10 KM |
| Maurys Lane, West Wellow, Romsey, Hampshire, SO51 | £ 785,000 | BUY | Unknown | 0.13 KM |
| Maurys Lane, West Wellow, Romsey | £ 825,000 | BUY | 8 / 10 | 0.15 KM |
Nearby Properties
| Address | Price | Distance |
|---|---|---|
| 16 Brookfields | £ 370,000 | 0.00 KM |
| 43 Brookfields | £ 415,000 | 0.00 KM |
| 35 Brookfields | £ 300,000 | 0.00 KM |
| 20 Brookfields | £ 320,000 | 0.00 KM |
| 12 Brookfields | £ 490,000 | 0.00 KM |