Acorn Road, Cowdenbeath, KY4
By Delmor Estate & Lettings Agents
£ 319,950
Reviews
3 out of 5 stars
Delmor Estate & Lettings Agents says ..
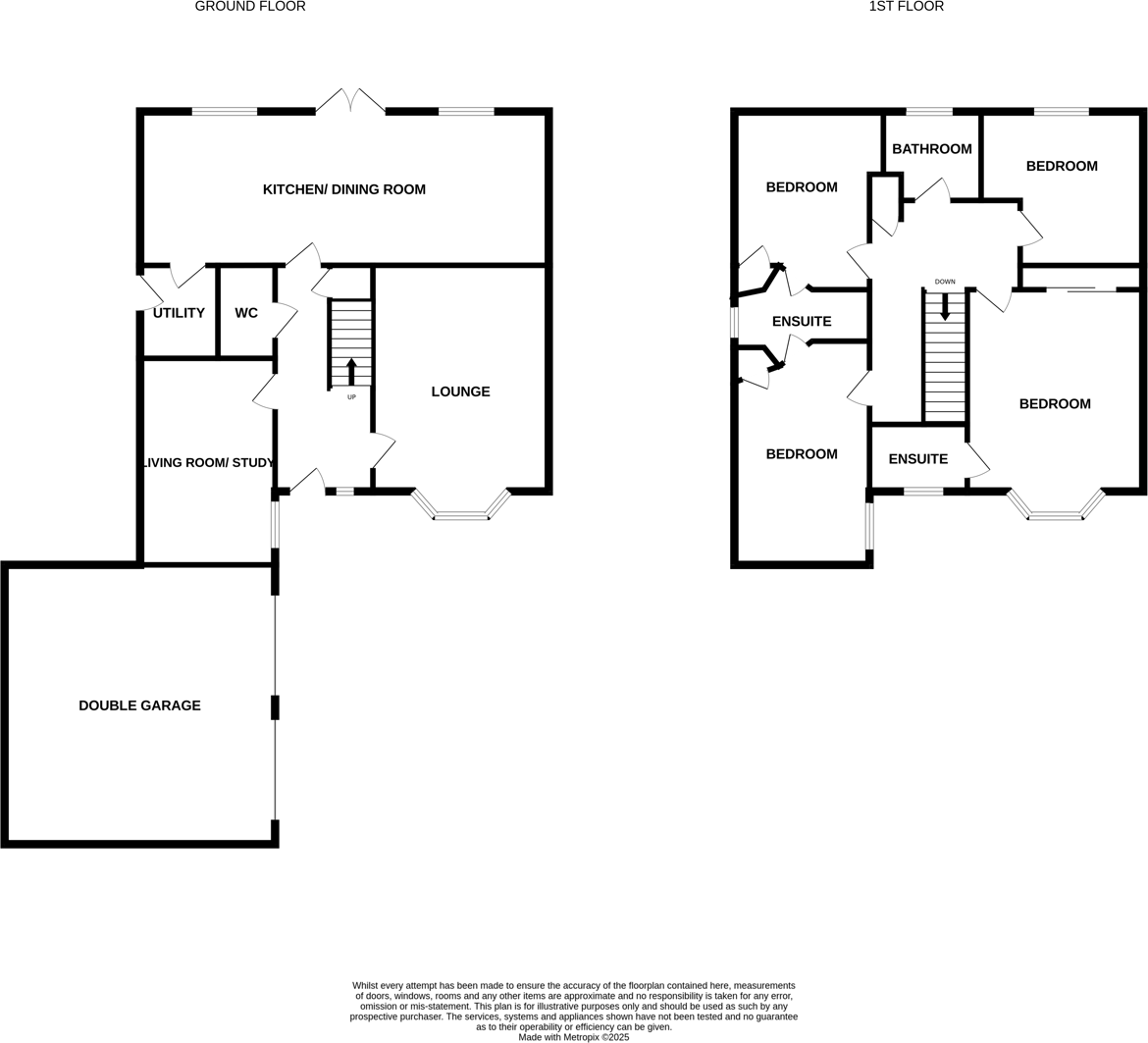
Spacious Detached Villa set on a large corner plot with 5 bedrooms, ensuite, Jack & Jill ensuite and double garage.
Property Oracle says ..
This detached villa is located on Acorn Road in Cowdenbeath, Fife. The property boasts 5 bedrooms and 3 bathrooms, with a total square footage of 1,684. From the images, the property appears to be in good condition, with modern interior design and well-maintained fixtures. The kitchen is modern and includes integrated appliances. The bathrooms appear clean and well-maintained. The property includes a well-sized garden with a patio area, offering outdoor space for relaxation and entertainment. The average price per square foot in the area is £594. The property is listed at £319,950, working out at £189 per square foot, which seems like good value. The average property price in the area is £546,663.
Therefore, we give this property 7 / 10. *Disclaimer: This is our option and does constitute a recommendation or financial advice. Do your own research. *
- Price
- 9
- Condition
- 8
- Location
- 7
- Land
- 7
- Bedrooms
- 5
- Bathrooms
- 3
- Sqft (est)
- 1,684.00
The heatmap indicates the level of crime in the area. The color of the heatmap indicates the crime severity and recency.
Metrics Year-on-Year
- Average area value
- 546,663.00 £Increased by 20.32 %
- Est sale value
- 1,000,296.00 £Increased by 55.50 %
- Average area rental value
- 2,315.00 £/moIncreased by 58.13 %
- Est letting value
- 3,368.00 £/moIncreased by 100.00 %
- Est rental Yield
- 5.08 %Increased by 31.27 %
- Crime Rate
- 0.00 %
Agent Activity
Delmor Estate & Lettings Agents created the listing.
Images
Nearby Streets
| Name | Average Price | Average Sqft | Distance |
|---|---|---|---|
| Southfield | £ 139,950 | 0 | 0.00 KM |
| Northfield | £ 239,950 | 0 | 0.00 KM |
| Downfield | £ 0 | 0 | 0.00 KM |
| Leuchatsbeath Drive | £ 0 | 0 | 0.00 KM |
| White Threshes Road | £ 0 | 0 | 0.00 KM |
Nearby Transport
| Name | NLC | TLC | Distance |
|---|---|---|---|
| Cowdenbeath | 9185 | COW | 1.32 KM |
| Lochgelly | 9156 | LCG | 4.75 KM |
| Dalgety Bay | 9135 | DAG | 8.73 KM |
| Dunfermline Queen Margaret | 9186 | DFL | 8.73 KM |
| Aberdour | 9090 | AUR | 9.21 KM |
Nearby Listings
| Address | Price | Type | Score | Distance |
|---|---|---|---|---|
| Acorn Road, Cowdenbeath, KY4 | £ 319,950 | BUY | 7 / 10 | 0.00 KM |
| Acorn Road, Cowdenbeath, KY4 | £ 285,000 | BUY | Unknown | 0.00 KM |
| Netherton Road, Cowdenbeath, KY4 | £ 245,000 | BUY | 7 / 10 | 0.09 KM |
| 11 Netherton Road, Cowdenbeath, KY4 9BF | £ 299,950 | BUY | Unknown | 0.21 KM |
| 34 Southfield, Cowdenbeath, KY4 9JH | £ 170,000 | BUY | 7 / 10 | 0.22 KM |