Bourne Close, West End, Woking, Surrey, GU24
By Seymours Estate Agents
£ 153,000
Reviews
3 out of 5 stars
Seymours Estate Agents says ..
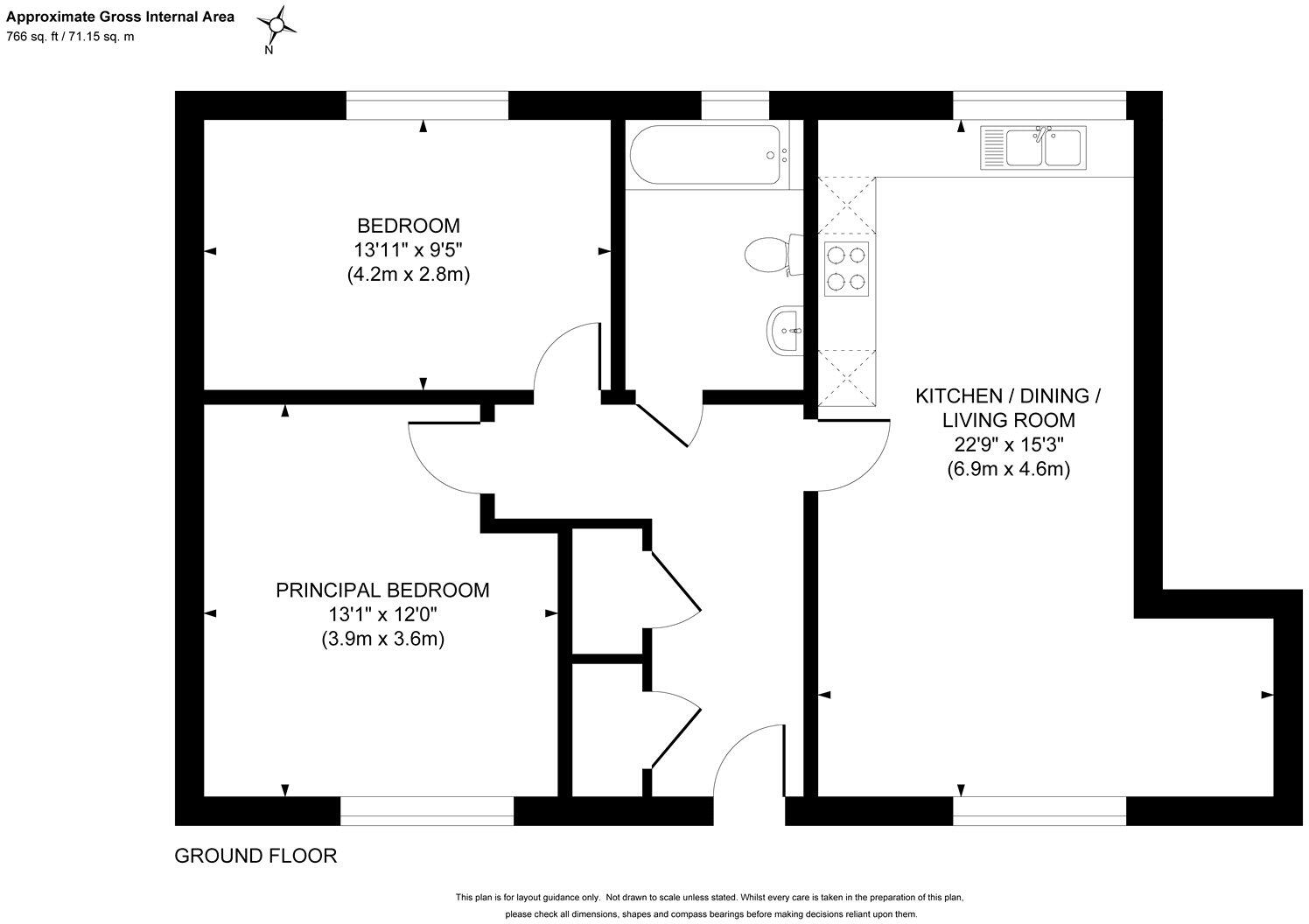
Opportunity to acquire a 45% share of this spacious two bedroom ground floor maisonette with parking. Situated on a recently built development in West End, this spacious ground floor maisonette offers well proportioned accommodation throughout, perfect for first time buyers, downsizers, or i...
Property Oracle says ..
This two-bedroom maisonette in West End, Woking, presents a promising opportunity. The property is in good condition, featuring modern interiors and well-maintained fixtures. While it lacks a private garden, its location offers convenient access to local schools and transportation links, making it suitable for small families or commuters. The listing price of £153,000 is notably lower than the area’s average, suggesting excellent value for money. Overall, this property combines affordability with a desirable location and modern living, making it an attractive option for potential buyers.
Therefore, we give this property 6 / 10. *Disclaimer: This is our option and does constitute a recommendation or financial advice. Do your own research. *
- Price
- 9
- Condition
- 8
- Location
- 7
- Land
- 3
- Bedrooms
- 2
- Bathrooms
- 0
- Sqft (est)
- 905.39
The heatmap indicates the level of crime in the area. The color of the heatmap indicates the crime severity and recency.
Metrics Year-on-Year
- Average area value
- 644,188.00 £Increased by 3.54 %
- Est sale value
- 383,885.36 £Decreased by 26.64 %
- Average area rental value
- 2,466.00 £/moDecreased by 21.84 %
- Est letting value
- 905.39 £/moDecreased by 50.00 %
- Est rental Yield
- 4.59 %Decreased by 24.63 %
- Crime Rate
- 8.00 %Unchanged by 0.00 %
Agent Activity
Seymours Estate Agents created the listing.
Nearby Schools
| Name | Type | Ofsted | Distance |
|---|---|---|---|
| Holy Trinity Cofe Primary School | Academy Converter | 0.89 KM | |
| Bisley Cofe Primary School | Voluntary Aided School | Good | 1.02 KM |
| Gordon'S School | Academy Converter | Outstanding | 1.53 KM |
| Knaphill School | Academy Converter | 2.40 KM | |
| The Knaphill Lower School | Academy Converter | 2.45 KM |
Images
Nearby Streets
| Name | Average Price | Average Sqft | Distance |
|---|---|---|---|
| Iris Drive | £ 0 | 0 | 0.00 KM |
| Queens Place | £ 0 | 0 | 0.00 KM |
| Strawberry Fields | £ 925,000 | 0 | 0.00 KM |
| Sarsen Court | £ 625,000 | 0 | 0.00 KM |
Nearby Transport
| Name | NLC | TLC | Distance |
|---|---|---|---|
| Brookwood | 5687 | BKO | 3.31 KM |
| Sunningdale | 5671 | SNG | 6.53 KM |
| Bagshot | 5681 | BAG | 6.65 KM |
| Longcross | 5674 | LNG | 7.44 KM |
| Worplesdon | 5686 | WPL | 7.81 KM |
Nearby Listings
| Address | Price | Type | Score | Distance |
|---|---|---|---|---|
| Bourne Close, West End, Woking, Surrey, GU24 | £ 340,000 | BUY | 6 / 10 | 0.00 KM |
| Bourne Close, West End, Woking, Surrey, GU24 | £ 153,000 | BUY | 6 / 10 | 0.00 KM |
| Bourne Close, West End, Woking, Surrey | £ 153,000 | BUY | 6 / 10 | 0.00 KM |
| Kings Road, West End | £ 675,000 | BUY | 7 / 10 | 0.14 KM |
| Guildford Road, West End, GU24 | £ 1,050,000 | BUY | 7 / 10 | 0.16 KM |
Nearby Properties
| Address | Price | Distance |
|---|---|---|
| 8 Kings Road | £ 590,000 | 0.18 KM |
| 10 Kings Road | £ 415,000 | 0.18 KM |
| 2 Kings Road | £ 370,000 | 0.18 KM |
| 6a Kings Road | £ 540,000 | 0.18 KM |
| 24 Kings Road | £ 295,000 | 0.18 KM |