Lewis King says ..
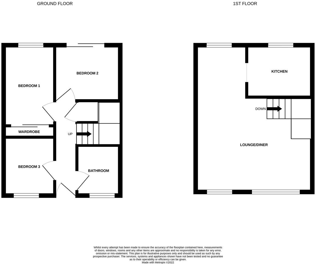
A stylish and modern three bedroom semi-detached home located in a quiet cul-de-sac location with countryside views over the River Bollin to the rear. The property briefly comprises; an Entrance Hall, three good-sized Bedrooms and a modern three-piece suite Bathroom. The Master Bedroom h...
Property Oracle says ..
This property is a 3-bedroom semi-detached house located in Macclesfield, Cheshire. The property benefits from being close to several schools including Tytherington School (rated Good by Ofsted) and Beech Hall School, as well as having good transport links to Macclesfield train station. The house itself appears to be in good condition, well maintained and presented. There is a small garden to the rear. While the average price per square foot in the area is £132, this property is listed at a lower price point. This could be due to the smaller plot size compared to the average in the area. However, the property itself seems to offer good value for money given its condition and location.
Therefore, we give this property 6 / 10. *Disclaimer: This is our option and does constitute a recommendation or financial advice. Do your own research. *
- Price
- 7
- Condition
- 8
- Location
- 8
- Land
- 4
- Bedrooms
- 3
- Bathrooms
- 1
- Sqft (est)
- 845.00
The heatmap indicates the level of crime in the area. The color of the heatmap indicates the crime severity and recency.
Metrics Year-on-Year
- Average area value
- 439,983.00 £Increased by 15.50 %
- Est sale value
- 439,400.00 £Increased by 73.91 %
- Average area rental value
- 1,823.00 £/moIncreased by 46.54 %
- Est letting value
- 1,690.00 £/mo
- Est rental Yield
- 4.97 %Increased by 26.79 %
- Crime Rate
- 0.00 %
Agent Activity
Lewis King created the listing.
Nearby Schools
| Name | Type | Ofsted | Distance |
|---|---|---|---|
| Tytherington School | Academy Converter | Good | 0.30 KM |
| Beech Hall School | Other Independent School | 0.64 KM | |
| Marlborough Primary School | Academy Converter | Good | 1.03 KM |
| Bollinbrook Cofe (A) Primary School | Voluntary Aided School | Requires improvement | 1.30 KM |
| Parkroyal Community School | Academy Converter | Good | 1.39 KM |
Images
Nearby Streets
| Name | Average Price | Average Sqft | Distance |
|---|---|---|---|
| The Silk Road | £ 950,000 | 0 | 0.00 KM |
| Beech Bank | £ 795,000 | 0 | 0.00 KM |
| Black Lane | £ 170,000 | 0 | 0.00 KM |
| Meadow Way | £ 0 | 0 | 0.00 KM |
| Grosvenor Square | £ 0 | 0 | 0.00 KM |
Nearby Transport
| Name | NLC | TLC | Distance |
|---|---|---|---|
| Macclesfield | 2871 | MAC | 0.98 KM |
| Prestbury | 2875 | PRB | 3.64 KM |
| Adlington (Cheshire) | 2939 | ADC | 5.87 KM |
| Poynton | 2874 | PYT | 9.28 KM |
Nearby Listings
| Address | Price | Type | Score | Distance |
|---|---|---|---|---|
| Beech Farm Drive, Macclesfield | £ 240,000 | BUY | 6 / 10 | 0.00 KM |
| Beech Farm Drive, Macclesfield, Cheshire | £ 219,950 | BUY | 6 / 10 | 0.03 KM |
| Beech Farm Drive, Tytherington, Macclesfield | £ 274,950 | BUY | 8 / 10 | 0.08 KM |
| Lower Beech Cottages, Manchester Road, Macclesfield | £ 425,000 | BUY | 6 / 10 | 0.11 KM |
| Summerlea Close, Macclesfield, Cheshire, SK10 | £ 130,000 | BUY | 6 / 10 | 0.15 KM |
Nearby Properties
| Address | Price | Distance |
|---|---|---|
| 135 Beech Farm Drive | £ 42,100 | 0.05 KM |
| 137 Beech Farm Drive | £ 107,250 | 0.05 KM |
| 113 Beech Farm Drive | £ 124,000 | 0.05 KM |
| 119 Beech Farm Drive | £ 95,000 | 0.05 KM |
| 129 Beech Farm Drive | £ 97,500 | 0.05 KM |