BidX1 says ..
N/A
Property Oracle says ..
Therefore, we give this property 6 / 10. *Disclaimer: This is our option and does constitute a recommendation or financial advice. Do your own research. *
- Price
- 8
- Condition
- 8
- Location
- 7
- Land
- 3
- Bedrooms
- 0
- Bathrooms
- 1
The heatmap indicates the level of crime in the area. The color of the heatmap indicates the crime severity and recency.
Metrics Year-on-Year
- Average area value
- 382,143.00 £Decreased by 11.13 %
- Average area rental value
- 1,503.00 £/moDecreased by 10.75 %
- Est rental Yield
- 4.72 %Increased by 0.43 %
- Crime Rate
- 18.00 %Unchanged by 0.00 %
from 430,015.00 £
from 1,684.00 £/mo
from 4.70 %
from 18.00 %
Agent Activity
BidX1 created the listing.
Nearby Schools
| Name | Type | Ofsted | Distance |
|---|---|---|---|
| South Norwood Primary | Academy Sponsor Led | 0.31 KM | |
| Harris Professional Skills Sixth Form | Free Schools 16 To 19 | 0.32 KM | |
| Harris Aspire Academy | Free Schools Alternative Provision | Good | 0.32 KM |
| Harris Academy South Norwood | Academy Sponsor Led | Outstanding | 0.47 KM |
| Beckmead College | Academy Special Converter | 0.53 KM |
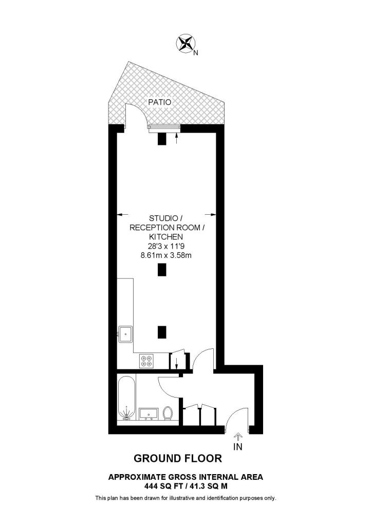
Images
Nearby Streets
| Name | Average Price | Average Sqft | Distance |
|---|---|---|---|
| Cargreen Place | £ 0 | 0 | 0.00 KM |
| Foot path 660 | £ 0 | 0 | 0.00 KM |
| Merton Road | £ 365,000 | 0 | 0.00 KM |
| Crowther Road | £ 0 | 0 | 0.00 KM |
| Goat House Bridge | £ 0 | 0 | 0.00 KM |
Nearby Transport
| Name | NLC | TLC | Distance |
|---|---|---|---|
| Norwood Junction | 5376 | NWD | 0.10 KM |
| Selhurst | 5434 | SRS | 1.45 KM |
| Anerley | 5397 | ANZ | 2.07 KM |
| Birkbeck | 5401 | BIK | 2.39 KM |
| Crystal Palace | 5356 | CYP | 2.43 KM |
Nearby Listings
| Address | Price | Type | Score | Distance |
|---|---|---|---|---|
| Cargreen Road, London, SE25 | £ 180,000 | BUY | 6 / 10 | 0.00 KM |
| Cargreen Road, South Norwood, London, SE25 | £ 400,000 | BUY | Unknown | 0.00 KM |
| Cargreen Road, South Norwood | £ 300,000 | BUY | 6 / 10 | 0.00 KM |
| 9 Cargreen Road, London, SE25 | £ 350,000 | BUY | Unknown | 0.00 KM |
| Cargreen Road, London, SE25 | £ 300,000 | BUY | 7 / 10 | 0.02 KM |
Nearby Properties
| Address | Price | Distance |
|---|---|---|
| 37 Cargreen Road | £ 69,000 | 0.04 KM |
| 27 Cargreen Road | £ 275,000 | 0.04 KM |
| 21 Cargreen Road | £ 290,000 | 0.04 KM |
| 25 Cargreen Road | £ 124,000 | 0.04 KM |
| 49 Cargreen Road | £ 136,500 | 0.04 KM |