Masons says ..
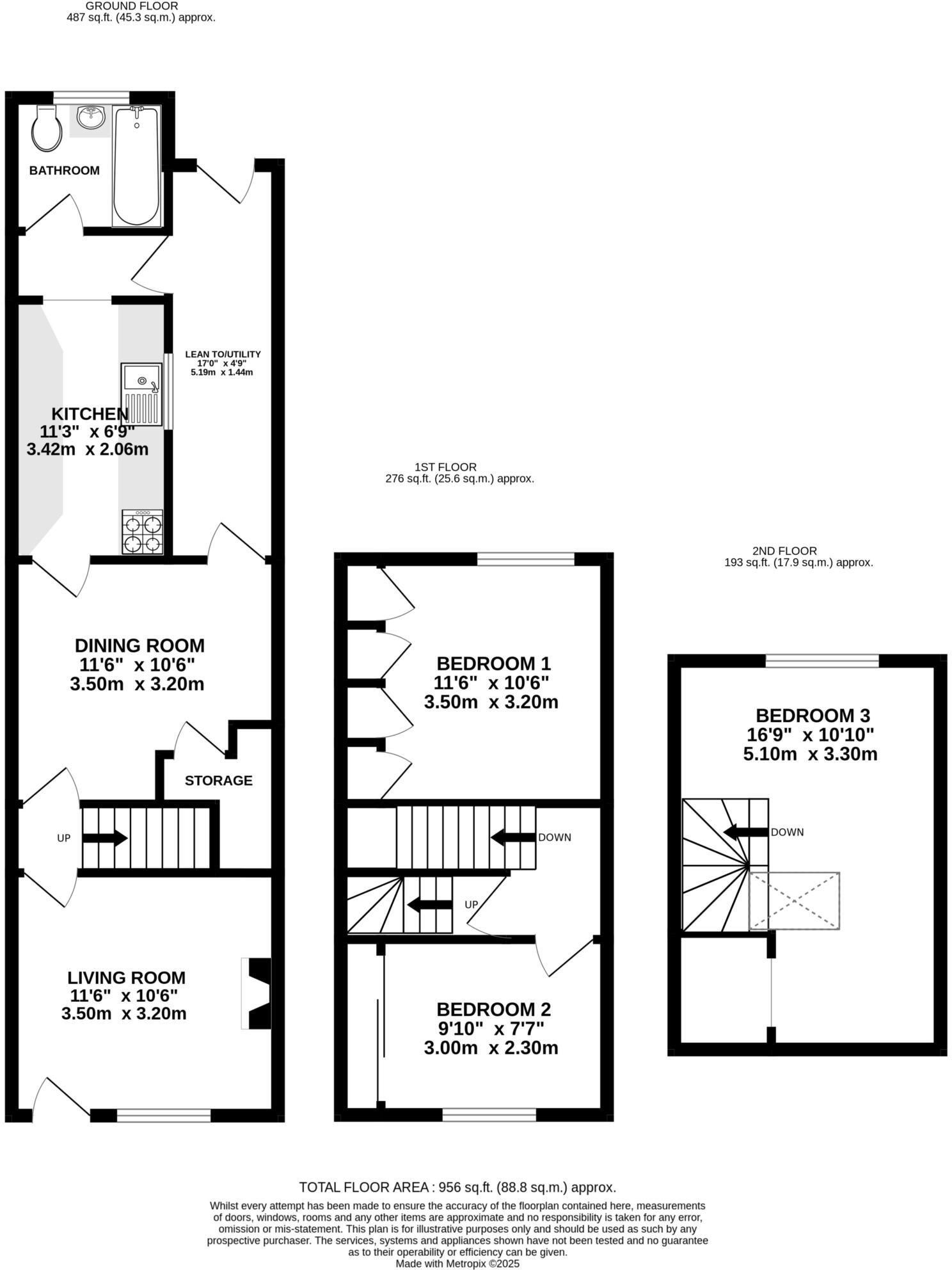
Masons are proud to offer to the market this 3 bedroom Victorian terraced family home situated close to a plethora of local amenities, within walking distance of Reading Town Centre and mainline station. The accommodation is arranged over three floors comprising of an 11ft living room, an 11ft dinin
Property Oracle says ..
Therefore, we give this property 7 / 10. *Disclaimer: This is our option and does constitute a recommendation or financial advice. Do your own research. *
- Price
- 8
- Condition
- 6
- Location
- 7
- Land
- 7
- Bedrooms
- 3
- Bathrooms
- 1
- Sqft (est)
- 956.00
The heatmap indicates the level of crime in the area. The color of the heatmap indicates the crime severity and recency.
Metrics Year-on-Year
- Average area value
- 327,000.00 £Increased by 3.23 %
- Est sale value
- 505,724.00 £Increased by 39.21 %
- Average area rental value
- 1,287.00 £/moDecreased by 3.31 %
- Est letting value
- 1,912.00 £/moIncreased by 100.00 %
- Est rental Yield
- 4.72 %Decreased by 6.35 %
- Crime Rate
- 4.00 %Unchanged by 0.00 %
from 316,782.00 £
from 363,280.00 £
from 1,331.00 £/mo
from 956.00 £/mo
from 5.04 %
from 4.00 %
Agent Activity
Masons created the listing.
Nearby Schools
| Name | Type | Ofsted | Distance |
|---|---|---|---|
| The Abbey School Reading | Other Independent School | 0.40 KM | |
| Trinity Christian School | Other Independent School | 0.47 KM | |
| Kendrick School | Academy Converter | 0.48 KM | |
| New Christ Church Church Of England Primary School | Academy Converter | 0.49 KM | |
| The Deenway Montessori School | Other Independent School | Good | 0.64 KM |
Images
Nearby Streets
| Name | Average Price | Average Sqft | Distance |
|---|---|---|---|
| Highgrove Terrace | £ 0 | 0 | 0.00 KM |
| Mount Street | £ 0 | 0 | 0.00 KM |
| London Road | £ 0 | 0 | 0.00 KM |
| Queens Road | £ 368,000 | 0 | 0.00 KM |
| Lynden Mews | £ 165,000 | 0 | 0.00 KM |
Nearby Transport
| Name | NLC | TLC | Distance |
|---|---|---|---|
| Reading | 3149 | RDG | 1.49 KM |
| Reading West | 3160 | RDW | 2.88 KM |
| Earley | 5694 | EAR | 5.30 KM |
| Tilehurst | 3154 | TLH | 7.62 KM |
| Winnersh Triangle | 5698 | WTI | 8.28 KM |
Nearby Listings
| Address | Price | Type | Score | Distance |
|---|---|---|---|---|
| Highgrove Terrace, Reading | £ 325,000 | BUY | 7 / 10 | 0.00 KM |
| Highgrove Terrace, Reading, Berkshire | £ 290,000 | BUY | 5 / 10 | 0.00 KM |
| 75 Mount Pleasant, Reading, Berkshire, RG1 2TF | £ 415,000 | BUY | 5 / 10 | 0.03 KM |
| 75 Mount Pleasant, Reading, Berkshire, RG1 2TF | £ 370,000 | BUY | 5 / 10 | 0.03 KM |
| Reading, Berkshire, RG1 | £ 350,000 | BUY | 6 / 10 | 0.07 KM |
Nearby Properties
| Address | Price | Distance |
|---|---|---|
| 14 Highgrove Terrace | £ 168,542 | 0.01 KM |
| 6 Highgrove Terrace | £ 185,000 | 0.01 KM |
| 10 Highgrove Terrace | £ 110,000 | 0.01 KM |
| 4 Highgrove Terrace | £ 145,000 | 0.01 KM |
| 18 Highgrove Terrace | £ 178,500 | 0.01 KM |