North Lane, Portslade
SI

North Lane, Portslade

By Sinnott Green

£ 315,000

Reviews

3 out of 5 stars

Sinnott Green says ..

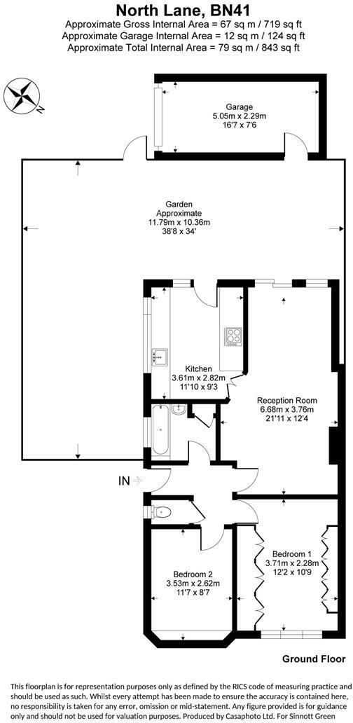
This attractive semi detached BUNGALOW has been very well maintained and is offered for sale in good decorative order. TWO DOUBLE BEDROOMS, lounge, dining room, fitted kitchen with appliances, bathroom, separate wc, well kept corner plot gardens, GARAGE AND PRIVATE DRIVE, chain free

Property Oracle says ..

This two-bedroom semi-detached bungalow in North Portslade presents a comfortable living space with a manageable garden. Its location is favourable, benefiting from proximity to good schools and transport links. Whilst the property is presented well and appears clean, some interior features, notably the kitchen and bathroom, show their age and may require modernisation to enhance the overall appeal. The garden is a notable asset, but its size is modest. The list price of £315,000 aligns with prices of comparable properties in the area, positioning it as a reasonably priced option for potential buyers seeking a property requiring some modernisation in a convenient location. The lack of precise square footage data for comparable properties makes a precise price per square foot analysis challenging. Further investigation into the precise plot size would be beneficial for a more comprehensive evaluation of the property’s value.

Therefore, we give this property 6 / 10. *Disclaimer: This is our option and does constitute a recommendation or financial advice. Do your own research. *

Price
7
Condition
6
Location
7
Land
4
Bedrooms
2
Bathrooms
1
Sqft (est)
843.00

The heatmap indicates the level of crime in the area. The color of the heatmap indicates the crime severity and recency.

Metrics Year-on-Year

Average area value
653,333.00 £
Increased by 3.57 %
from 630,800.00 £
Est sale value
506,643.00 £
Increased by 8.29 %
from 467,865.00 £
Average area rental value
1,250.00 £/mo
Decreased by 27.20 %
from 1,717.00 £/mo
Est letting value
843.00 £/mo
Unchanged by 0.00 %
from 843.00 £/mo
Est rental Yield
2.30 %
Decreased by 29.66 %
from 3.27 %
Crime Rate
2.00 %
Unchanged by 0.00 %
from 2.00 %

Agent Activity

  • Sinnott Green created the listing.

Nearby Schools

NameTypeOfstedDistance
Hill Park SchoolCommunity Special SchoolOutstanding0.50 KM
Peter Gladwin Primary SchoolCommunity SchoolGood0.53 KM
Portslade Aldridge Community AcademyAcademy Sponsor LedGood0.68 KM
North Portslade Children'S CentreChildren's Centre0.92 KM
Mile Oak Primary SchoolCommunity SchoolRequires improvement0.99 KM

Images

North Lane (10).jpg North Lane (17).jpg North Lane (13).jpg North Lane (16).jpg North Lane (12).jpg North Lane (14).jpg North Lane (15).jpg North Lane (19).jpg North Lane (20).jpg North Lane (21).jpg North Lane (18).jpg North Lane (5).jpg North Lane (4).jpg North Lane (2).jpg North Lane (3).jpg

Nearby Streets

NameAverage PriceAverage SqftDistance
Harebell Drive £ 400,00000.00 KM
Croft Drive £ 000.00 KM
Ridgeway Close £ 600,00000.00 KM
Beech Close £ 500,00000.00 KM
Beaconsfield Road £ 365,00000.00 KM

Nearby Transport

NameNLCTLCDistance
Fishersgate5284FSG1.65 KM
Portslade5276PLD2.19 KM
Southwick5286SWK2.56 KM
Aldrington5280AGT4.22 KM
Hove5273HOV5.65 KM

Nearby Listings

AddressPriceTypeScoreDistance
North Lane, Portslade £ 325,000BUYUnknown0.00 KM
North Lane, Portslade, Brighton £ 400,000BUY7 / 100.10 KM
North Lane, Portslade £ 375,000BUYUnknown0.10 KM
Farm Close, BN41 £ 450,000BUYUnknown0.11 KM
North Lane, Portslade, BN41 £ 375,000BUY7 / 100.11 KM

Nearby Properties

AddressPriceDistance
1 Farm Close £ 198,0000.07 KM
14 Farm Close £ 420,0000.07 KM
25 Farm Close £ 245,0000.07 KM
9 Farm Close £ 219,9500.07 KM
22 Farm Close £ 315,0000.07 KM