Acorn says ..
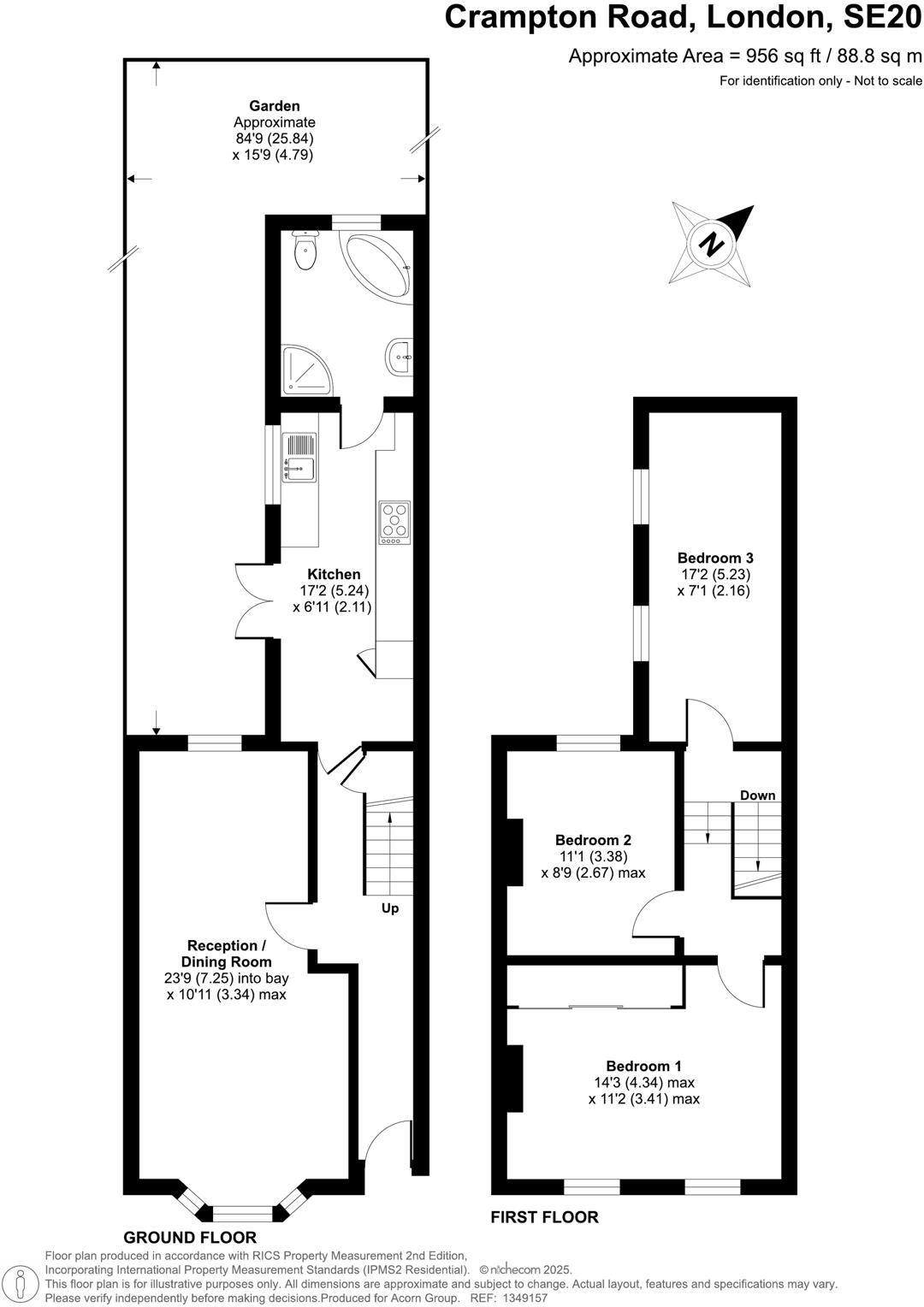
Measuring approximately 950 sq. ft., this well-proportioned three-bedroom family home offers a fantastic opportunity for buyers seeking space, convenience, and scope to add value. On the ground floor, the property features a spacious reception and dining area, a separate fitted kitchen...
Property Oracle says ..
This terraced house on Crampton Road, London, presents a solid opportunity for potential buyers. Its location in Penge offers convenient access to transportation, schools, and local amenities. The property features a modern kitchen and bathroom, suggesting recent updates. While the house is in good condition overall, some minor cosmetic improvements could further enhance its appeal. The inclusion of a garden is a significant advantage, providing valuable outdoor space. Considering the property’s features and the local market, the asking price of £700,000 appears to be within a reasonable range, although slightly on the higher side compared to some nearby properties. Overall, this property is a well-maintained and desirable home in a convenient location.
Therefore, we give this property 6 / 10. *Disclaimer: This is our option and does constitute a recommendation or financial advice. Do your own research. *
- Price
- 6
- Condition
- 7
- Location
- 7
- Land
- 7
- Bedrooms
- 3
- Bathrooms
- 1
- Sqft (est)
- 840.27
The heatmap indicates the level of crime in the area. The color of the heatmap indicates the crime severity and recency.
Metrics Year-on-Year
- Average area value
- 470,278.00 £Decreased by 9.27 %
- Est sale value
- 460,467.96 £Increased by 64.07 %
- Average area rental value
- 1,755.00 £/moDecreased by 20.59 %
- Est letting value
- 1,680.54 £/moIncreased by 100.00 %
- Est rental Yield
- 4.48 %Decreased by 12.50 %
- Crime Rate
- 3.00 %Unchanged by 0.00 %
Agent Activity
Acorn created the listing.
Nearby Schools
| Name | Type | Ofsted | Distance |
|---|---|---|---|
| Harris Primary Academy Crystal Palace | Academy Sponsor Led | Good | 0.27 KM |
| St John'S Church Of England Primary School | Academy Sponsor Led | Good | 0.54 KM |
| Community Vision Children And Family Centre | Children's Centre | 0.60 KM | |
| St Anthony'S Roman Catholic Primary School | Academy Converter | Good | 1.00 KM |
| Sydenham High School Gdst | Other Independent School | 1.06 KM |
Images
Nearby Streets
| Name | Average Price | Average Sqft | Distance |
|---|---|---|---|
| London Bridge to Windmill Bridge Junction | £ 0 | 0 | 0.00 KM |
| Meaford Way | £ 285,000 | 0 | 0.00 KM |
| Evergreen Close | £ 0 | 0 | 0.00 KM |
| High Street | £ 0 | 0 | 0.00 KM |
| Hawthorn Grove | £ 0 | 0 | 0.00 KM |
Nearby Transport
| Name | NLC | TLC | Distance |
|---|---|---|---|
| Penge West | 5378 | PNW | 0.28 KM |
| Penge East | 5072 | PNE | 0.48 KM |
| Sydenham | 5437 | SYD | 1.06 KM |
| Anerley | 5397 | ANZ | 1.09 KM |
| Crystal Palace | 5356 | CYP | 1.55 KM |
Nearby Listings
| Address | Price | Type | Score | Distance |
|---|---|---|---|---|
| Crampton Road, London | £ 700,000 | BUY | 6 / 10 | 0.00 KM |
| Aspen Mews, Penge, London, SE20 | £ 525,000 | BUY | 6 / 10 | 0.09 KM |
| Kingswood Road, London, SE20 | £ 1,100,000 | BUY | 7 / 10 | 0.11 KM |
| Kingswood Road, Penge, London, SE20 | £ 1,100,000 | BUY | 7 / 10 | 0.11 KM |
| Kingswood Road, London | £ 1,050,000 | BUY | Unknown | 0.13 KM |
Nearby Properties
| Address | Price | Distance |
|---|---|---|
| 34 Crampton Road | £ 490,000 | 0.04 KM |
| 27 Crampton Road | £ 240,000 | 0.04 KM |
| 25 Crampton Road | £ 235,000 | 0.04 KM |
| 21 Crampton Road | £ 325,000 | 0.04 KM |
| 35 Crampton Road | £ 540,000 | 0.04 KM |