Hunters says ..
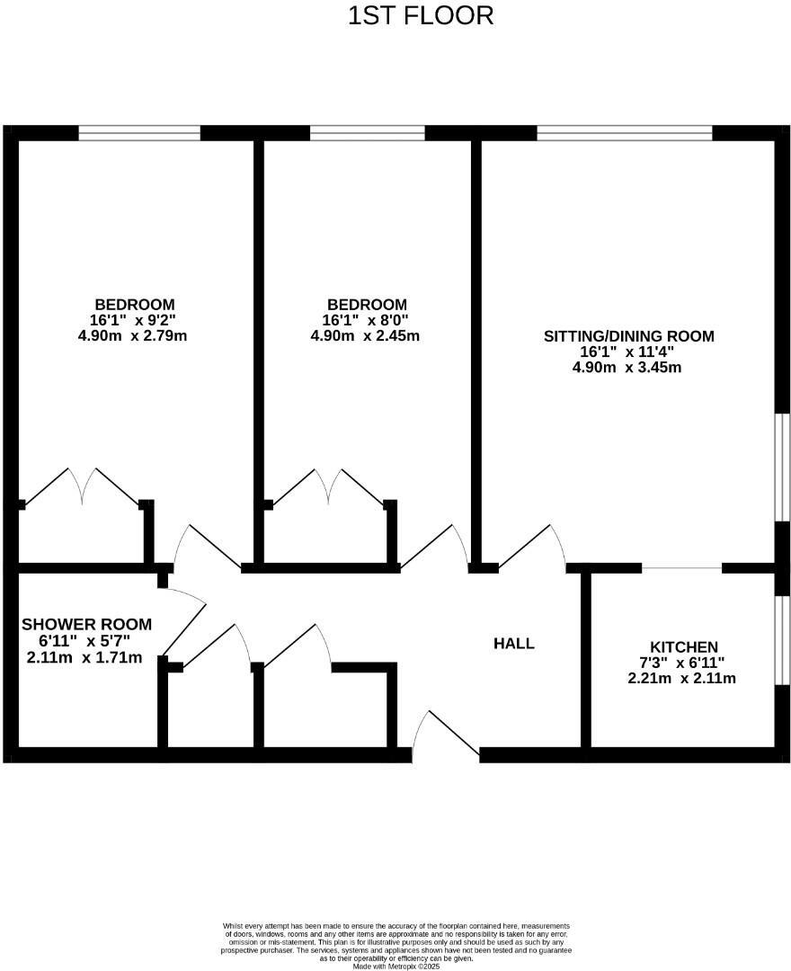
NO ONWARD CHAIN - A fantastic two-bedroom retirement apartment situated just a stone’s throw from the High Street in a peaceful setting yet conveniently located for enjoying everything that Tenterden has to offer. This spacious second floor apartment benefits from an entrance hall leadin...
Property Oracle says ..
This is a two-bedroom flat in Tenterden, Kent. The property is located in a retirement complex. The flat has a modern kitchen and bathroom, but some of the interior design is dated. The property is close to local schools and amenities. The flat has communal gardens. The property is listed at £275,000, which is slightly above the average price per square foot for the area.
Therefore, we give this property 5 / 10. *Disclaimer: This is our option and does constitute a recommendation or financial advice. Do your own research. *
- Price
- 6
- Condition
- 7
- Location
- 7
- Land
- 3
- Bedrooms
- 2
- Bathrooms
- 1
- Sqft (est)
- 547.34
The heatmap indicates the level of crime in the area. The color of the heatmap indicates the crime severity and recency.
Metrics Year-on-Year
- Average area value
- 257,097.00 £Decreased by 8.25 %
- Est sale value
- 180,622.20 £Increased by 14.98 %
- Average area rental value
- 956.00 £/moIncreased by 1.92 %
- Est letting value
- 547.34 £/mo
- Est rental Yield
- 4.46 %Increased by 10.95 %
- Crime Rate
- 53.00 %Unchanged by 0.00 %
Agent Activity
Hunters created the listing.
Nearby Schools
| Name | Type | Ofsted | Distance |
|---|---|---|---|
| Little Explorers Children'S Centre | Children's Centre | 0.68 KM | |
| Tenterden Church Of England Junior School | Academy Converter | Good | 0.68 KM |
| Tenterden Infant School | Academy Converter | Good | 0.73 KM |
| Homewood School And Sixth Form Centre | Academy Converter | Requires improvement | 1.62 KM |
| St Michael'S Church Of England Primary School | Academy Converter | Good | 2.50 KM |
Images
Nearby Streets
| Name | Average Price | Average Sqft | Distance |
|---|---|---|---|
| Recreation Ground Road | £ 0 | 0 | 0.00 KM |
| Oaks Road | £ 450,000 | 0 | 0.00 KM |
| Elmfield Place | £ 425,000 | 0 | 0.00 KM |
| Briar Court | £ 600,000 | 0 | 0.00 KM |
| Acorn Road | £ 0 | 0 | 0.00 KM |
Nearby Listings
| Address | Price | Type | Score | Distance |
|---|---|---|---|---|
| TENTERDEN | £ 275,000 | BUY | 5 / 10 | 0.00 KM |
| Central Tenterden, Kent, TN30 | £ 179,950 | BUY | Unknown | 0.02 KM |
| TENTERDEN | £ 275,000 | BUY | 5 / 10 | 0.03 KM |
| TENTERDEN | £ 400,000 | BUY | Unknown | 0.04 KM |
| Woodbury Lane, Tenterden, TN30 | £ 400,000 | BUY | 5 / 10 | 0.04 KM |
Nearby Properties
| Address | Price | Distance |
|---|---|---|
| Sandhouse | £ 1,360,000 | 0.02 KM |
| Nutfield | £ 465,000 | 0.08 KM |
| The Camellias | £ 353,000 | 0.08 KM |
| Lauras Cottage | £ 295,000 | 0.08 KM |
| Seletar | £ 505,000 | 0.08 KM |