St. Bartholomews Terrace, Rochester
By Greenleaf Property Services Ltd
£ 295,000
Reviews
3 out of 5 stars
Greenleaf Property Services Ltd says ..
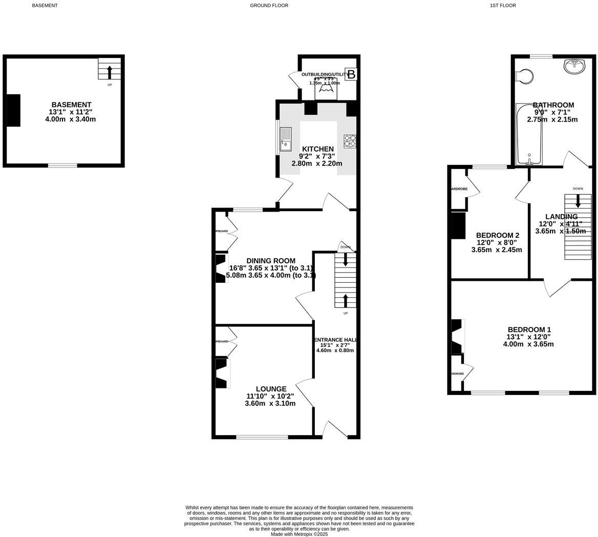
GREENLEAF PROPERTY SERVICES are delighted to introduce this beautifully presented period cottage, peacefully located in a cul de sac position, yet within walking distance of the historic Rochester High Street and all local amenities. Boasting two double bedrooms, an upstairs bathroom, a low maint...
Property Oracle says ..
This is a 2-bedroom terraced house located in Rochester, Kent. The property is listed with Greenleaf Property Services Ltd. The house retains many of its original period features, including fireplaces and wooden flooring, giving it a traditional charm. While generally well-maintained, some areas, such as the kitchen, could benefit from modernization. The property includes a rear garden, although it is relatively small and requires some attention. The location is convenient, with proximity to Rochester train station and several schools. Considering the location, condition, and features, the asking price of £295,000 appears reasonable compared to the average property prices in the area.
Therefore, we give this property 6 / 10. *Disclaimer: This is our option and does constitute a recommendation or financial advice. Do your own research. *
- Price
- 7
- Condition
- 7
- Location
- 7
- Land
- 6
- Bedrooms
- 2
- Bathrooms
- 1
The heatmap indicates the level of crime in the area. The color of the heatmap indicates the crime severity and recency.
Metrics Year-on-Year
- Average area value
- 348,276.00 £Increased by 7.74 %
- Average area rental value
- 1,393.00 £/moDecreased by 3.26 %
- Est rental Yield
- 4.80 %Decreased by 10.28 %
- Crime Rate
- 8.00 %Unchanged by 0.00 %
Agent Activity
Greenleaf Property Services Ltd created the listing.
Nearby Schools
| Name | Type | Ofsted | Distance |
|---|---|---|---|
| Fort Pitt Grammar School | Academy Converter | 0.30 KM | |
| Trinity School And College | Other Independent Special School | Good | 0.50 KM |
| St John Fisher Catholic Comprehensive School | Voluntary Aided School | Good | 0.65 KM |
| Rochester Independent College | Other Independent School | 0.70 KM | |
| St John'S Church Of England Infant School | Academy Converter | Good | 0.74 KM |
Images
Nearby Streets
| Name | Average Price | Average Sqft | Distance |
|---|---|---|---|
| New Road | £ 190,000 | 0 | 0.00 KM |
| A2 | £ 0 | 0 | 0.00 KM |
| Glenway Road | £ 0 | 0 | 0.00 KM |
| New Cut | £ 115,000 | 0 | 0.00 KM |
| The Cut | £ 462,500 | 0 | 0.00 KM |
Nearby Transport
| Name | NLC | TLC | Distance |
|---|---|---|---|
| Rochester | 5203 | RTR | 0.57 KM |
| Chatham | 5199 | CTM | 0.76 KM |
| Strood (Kent) | 5191 | SOO | 2.21 KM |
| Gillingham (Kent) | 5169 | GLM | 3.90 KM |
| Cuxton | 5201 | CUX | 5.96 KM |
Nearby Listings
| Address | Price | Type | Score | Distance |
|---|---|---|---|---|
| St. Bartholomews Terrace, Rochester | £ 295,000 | BUY | 6 / 10 | 0.00 KM |
| St. Bartholomews Terrace, Rochester, Kent, ME1 | £ 340,000 | BUY | Unknown | 0.04 KM |
| New Road, Rochester | £ 205,000 | BUY | 6 / 10 | 0.08 KM |
| St Bartholomews Place, Rochester, Kent. ME1 | £ 285,000 | BUY | 7 / 10 | 0.08 KM |
| St.Bartholomews Place, ROCHESTER, Kent, ME1 | £ 270,000 | BUY | 6 / 10 | 0.08 KM |
Nearby Properties
| Address | Price | Distance |
|---|---|---|
| 6 St Bartholomews Terrace | £ 225,000 | 0.04 KM |
| 7 St Bartholomews Terrace | £ 116,000 | 0.04 KM |
| 21 St Bartholomews Terrace | £ 230,000 | 0.04 KM |
| 12 St Bartholomews Terrace | £ 190,000 | 0.04 KM |
| 22 St Bartholomews Terrace | £ 143,000 | 0.04 KM |