Park Avenue, Wortley, Sheffield, S35 7DR
By Fine & Country
£ 800,000
Reviews
3 out of 5 stars
Fine & Country says ..
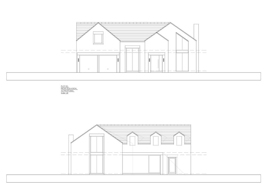
A LUXURY DEVELOPMENT OPPORTUNITY of 2 bespoke homes each providing SPACIOUS 5 BEDROOM accommodation boasting generous gardens, a STUNNING RURAL BACKDROP and an EXCEPTIONAL VILLAGE LOCATION. The site measures 1/3 of an acre and currently is home to a 3/4 bedroom detached house.
Property Oracle says ..
Located on Park Avenue in Wortley, Sheffield, this plot offers a blend of traditional charm and potential. The property features five bedrooms and three bathrooms, making it suitable for families. While the interior requires renovation, the well-maintained garden and generous plot size are significant assets. The property’s location provides access to nearby schools and transportation, enhancing its appeal. The price reflects the property’s size and location but may require negotiation given the need for modernization.
Therefore, we give this property 6 / 10. *Disclaimer: This is our option and does constitute a recommendation or financial advice. Do your own research. *
- Price
- 6
- Condition
- 5
- Location
- 7
- Land
- 8
- Bedrooms
- 5
- Bathrooms
- 3
- Sqft (est)
- 1,062.18
The heatmap indicates the level of crime in the area. The color of the heatmap indicates the crime severity and recency.
Metrics Year-on-Year
- Average area value
- 395,165.00 £Decreased by 21.84 %
- Est sale value
- 587,385.54 £Increased by 88.74 %
- Average area rental value
- 1,100.00 £/moDecreased by 5.42 %
- Est letting value
- 1,062.18 £/mo
- Est rental Yield
- 3.34 %Increased by 21.01 %
- Crime Rate
- 243.00 %Unchanged by 0.00 %
Agent Activity
Fine & Country created the listing.
Nearby Schools
| Name | Type | Ofsted | Distance |
|---|---|---|---|
| Thurgoland Church Of England (Voluntary Controlled) Primary School | Voluntary Controlled School | Outstanding | 4.14 KM |
| Northern College For Residential Adult Education Limited | Further Education | Outstanding | 4.19 KM |
| Angram Bank Children'S Centre | Children's Centre Linked Site | 4.67 KM | |
| Angram Bank Primary School | Community School | Good | 4.80 KM |
| Wharncliffe Side Primary School | Academy Converter | 5.00 KM |
Images
Nearby Streets
| Name | Average Price | Average Sqft | Distance |
|---|---|---|---|
| The Flats | £ 0 | 0 | 0.00 KM |
| Home Farm Court | £ 475,000 | 0 | 0.00 KM |
Nearby Transport
| Name | NLC | TLC | Distance |
|---|---|---|---|
| Silkstone Common | 6782 | SLK | 5.90 KM |
| Dodworth | 6781 | DOD | 6.06 KM |
| Chapeltown (South Yorkshire) | 6664 | CLN | 8.21 KM |
| Barnsley | 6774 | BNY | 9.60 KM |
Nearby Listings
| Address | Price | Type | Score | Distance |
|---|---|---|---|---|
| Park Avenue, Wortley, Sheffield, S35 7DR | £ 800,000 | BUY | 6 / 10 | 0.00 KM |
| Park Avenue, Wortley, Sheffield, S35 7DR | £ 450,000 | BUY | 6 / 10 | 0.10 KM |
| Plot 2, Park Avenue, Wortley, Sheffield, S35 7DR | £ 325,000 | BUY | 7 / 10 | 0.13 KM |
| Home Farm Court, Wortley, S35 7DT | £ 475,000 | BUY | 6 / 10 | 0.38 KM |
| Woodhead Road, Wortley, Sheffield, S35 7DA | £ 695,000 | BUY | 7 / 10 | 1.61 KM |
Nearby Properties
| Address | Price | Distance |
|---|---|---|
| The Barn | £ 375,000 | 0.29 KM |
| Chimney Cottage | £ 20,000 | 0.29 KM |
| Foulds Cottage | £ 255,000 | 0.29 KM |
| Avenue Cottage | £ 525,050 | 0.29 KM |
| Anvil Cottage | £ 330,000 | 0.29 KM |