Salisbury Street, Blandford Forum, Dorset, DT11
By Vivien Horder
£ 180,000
Reviews
3 out of 5 stars
Vivien Horder says ..
A recently refurbished well-presented Two Bedroom First Floor apartment retaining a wealth of character situated in the very heart of Blandford Forum overlooking The Market Place.
Property Oracle says ..
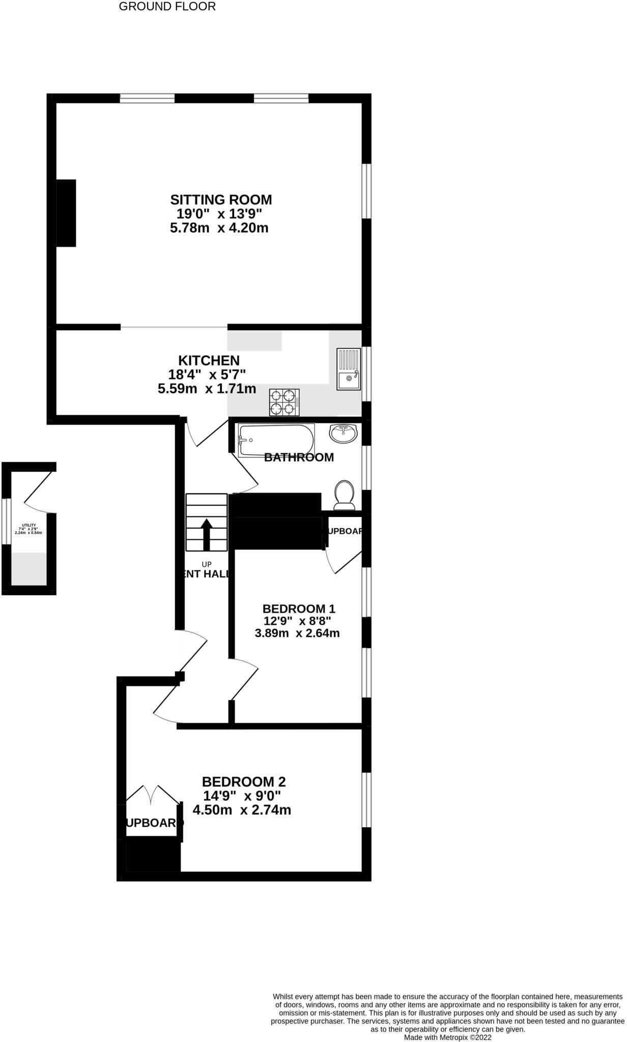
The property is a 2-bedroom apartment located on Salisbury Street in Blandford Forum, Dorset. The list price is £180,000, and the property has 624.99 sqft of living space. The apartment appears to be in good condition based on the provided images. The interior is modern and well-maintained, with a recently updated kitchen and bathroom. There is no evidence of significant wear and tear or the need for renovation. The location is central within Blandford Forum, placing it within easy walking distance of local shops and amenities. The nearby schools, including The Forum Centre and Blandford St Mary Church of England Primary School, are rated as “Good” by Ofsted, suggesting a positive family-friendly environment. The property lacks a garden, which is a common characteristic of apartments. The average price per square foot in the area is £326. Considering the apartment’s size (624.99 sqft), a comparable property might be expected to cost around £203,500 (£326 x 624.99). Therefore, the list price of £180,000 is significantly lower than the estimated value based on the average price per sqft. However, this needs to be considered in context with the lack of plot size and the fact that nearby comparable properties are also priced lower. Several nearby flats are listed at prices ranging from £89,000 to £139,000, indicating that the list price might be towards the higher end of the market for similar properties in this location.
Therefore, we give this property 6 / 10. *Disclaimer: This is our option and does constitute a recommendation or financial advice. Do your own research. *
- Price
- 7
- Condition
- 9
- Location
- 8
- Land
- 1
- Bedrooms
- 2
- Bathrooms
- 1
- Sqft (est)
- 624.99
The heatmap indicates the level of crime in the area. The color of the heatmap indicates the crime severity and recency.
Metrics Year-on-Year
- Average area value
- 256,000.00 £Decreased by 29.74 %
- Est sale value
- 329,994.72 £Increased by 86.57 %
- Average area rental value
- 1,198.00 £/moIncreased by 31.50 %
- Est letting value
- 1,249.98 £/mo
- Est rental Yield
- 5.62 %Increased by 87.33 %
- Crime Rate
- 80.00 %Unchanged by 0.00 %
Agent Activity
Vivien Horder marked this listing as sold.
Vivien Horder created the listing.
Nearby Schools
| Name | Type | Ofsted | Distance |
|---|---|---|---|
| The Forum Centre | Pupil Referral Unit | Good | 0.46 KM |
| The Blandford School | Voluntary Controlled School | Requires improvement | 0.81 KM |
| Blandford St Mary Church Of England Primary School | Academy Converter | Good | 0.82 KM |
| Milldown Cofe Academy | Academy Converter | 1.11 KM | |
| Blandford | Children's Centre | 1.29 KM |
Images
Nearby Streets
| Name | Average Price | Average Sqft | Distance |
|---|---|---|---|
| River Walk | £ 0 | 0 | 0.00 KM |
| Woodhouse Mews | £ 0 | 0 | 0.00 KM |
| Barley Place | £ 0 | 0 | 0.00 KM |
| Brewery Court | £ 246,667 | 0 | 0.00 KM |
| Marsh's Court | £ 0 | 0 | 0.00 KM |
Nearby Listings
| Address | Price | Type | Score | Distance |
|---|---|---|---|---|
| Salisbury Street, Blandford Forum, Dorset, DT11 | £ 180,000 | BUY | 6 / 10 | 0.00 KM |
| Salisbury Street, Blandford Forum | £ 170,000 | BUY | 5 / 10 | 0.01 KM |
| Blandford Town Centre | £ 310,000 | BUY | 6 / 10 | 0.04 KM |
| Market Place, Blandford Forum | £ 100,000 | BUY | Unknown | 0.05 KM |
| Market Place, Blandford Forum | £ 120,000 | BUY | 5 / 10 | 0.05 KM |
Nearby Properties
| Address | Price | Distance |
|---|---|---|
| Old Red Lion | £ 365,000 | 0.05 KM |
| 24a Market Place | £ 139,000 | 0.05 KM |
| 18d Salisbury Street | £ 89,000 | 0.07 KM |
| 18c Salisbury Street | £ 124,950 | 0.07 KM |
| Fern Cottage | £ 247,500 | 0.08 KM |