MO
Tudor House, 13-15 Chester Street
By Molyneux
£ 17,500
Molyneux says ..
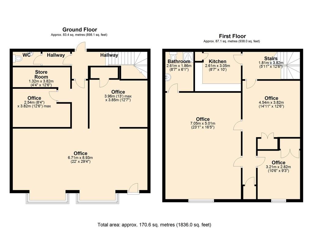
Town centre , two storey sales office. Ground Floor approx 82m² Internal area. First floor approx 82m² internal area. Rateable value £9500 per year. Rent £17.500 per annum exclusive.
- Bedrooms
- 0
- Bathrooms
- 0
The heatmap indicates the level of crime in the area. The color of the heatmap indicates the crime severity and recency.
Metrics Year-on-Year
- Average area value
- 267,500.00 £Decreased by 0.99 %
- Average area rental value
- 1,107.00 £/moDecreased by 6.11 %
- Est rental Yield
- 4.97 %Decreased by 5.15 %
- Crime Rate
- 52.00 %Unchanged by 0.00 %
from 270,182.00 £
from 1,179.00 £/mo
from 5.24 %
from 52.00 %
Agent Activity
Molyneux created the listing.
Nearby Schools
| Name | Type | Ofsted | Distance |
|---|---|---|---|
| Ysgol Bryn Coch C.P. | Welsh Establishment | 0.16 KM | |
| Ysgol Glanrafon | Welsh Establishment | 0.32 KM | |
| Ysgol Maes Garmon | Welsh Establishment | 0.55 KM | |
| St David'S R.C. School | Welsh Establishment | 0.64 KM | |
| Mold Alun School | Welsh Establishment | 0.68 KM |
Images
Nearby Streets
| Name | Average Price | Average Sqft | Distance |
|---|---|---|---|
| Chester Street | £ 0 | 0 | 0.00 KM |
| Daniel Owen Precinct | £ 132,500 | 0 | 0.00 KM |
| Gas Lane | £ 0 | 0 | 0.00 KM |
| Alun Bank | £ 0 | 0 | 0.00 KM |
| Victoria Terrace | £ 0 | 0 | 0.00 KM |
Nearby Transport
| Name | NLC | TLC | Distance |
|---|---|---|---|
| Flint | 2513 | FLN | 9.20 KM |
| Buckley | 2422 | BCK | 9.34 KM |
| Penyffordd | 2433 | PNF | 9.81 KM |
Nearby Listings
| Address | Price | Type | Score | Distance |
|---|---|---|---|---|
| Tudor House, 13-15 Chester Street | £ 17,500 | RENT | Unknown | 0.00 KM |
| Chester Street, Mold, Flintshire, Clwyd, CH7 | £ 750 | RENT | Unknown | 0.00 KM |
| Chester Street, Mold, CH7 | £ 875 | RENT | Unknown | 0.14 KM |
| Llys Yr Efail, Mold | £ 795 | RENT | Unknown | 0.19 KM |
| New Street, Mold, Flintshire, Clwyd, CH7 | £ 500 | RENT | Unknown | 0.29 KM |
Nearby Properties
| Address | Price | Distance |
|---|---|---|
| 16 - 18 Chester Street | £ 45,000 | 0.02 KM |
| 14 Grosvenor Street | £ 190,000 | 0.08 KM |
| 6 Grosvenor Street | £ 95,000 | 0.13 KM |
| 12 Llys Yr Efail | £ 98,250 | 0.19 KM |
| 20 Llys Yr Efail | £ 117,000 | 0.19 KM |