Chancellors says ..
A well presented two bedroom duplex apartment which benefits from an en-suite to the main bedroom, open plan lounge/kitchen area and outdoor decking area. Sold with no onward chain.
Property Oracle says ..
This two-bedroom, two-bathroom apartment located in Witney, Oxfordshire, presents a modern and well-maintained living space. The property benefits from a central location within Witney, offering convenient access to local amenities such as shops and schools. The apartment’s interior is stylishly presented, featuring a contemporary kitchen and bathrooms. While the exact square footage isn’t detailed, the available images showcase a comfortable living area and bedrooms. The lack of a private garden or substantial outdoor space is a notable drawback. A communal courtyard is visible, but lacks the privacy of a dedicated garden. However, the location, coupled with the seemingly good condition and relatively reasonable list price compared to other apartments in Witney (based on the limited data provided), make this property a potentially attractive option for first-time buyers or investors. More detailed information on property sizes for comparable listings would allow for a more precise assessment of the value of the property, as current data is limited for square foot calculations.
Therefore, we give this property 5 / 10. *Disclaimer: This is our option and does constitute a recommendation or financial advice. Do your own research. *
- Price
- 7
- Condition
- 8
- Location
- 7
- Land
- 1
- Bedrooms
- 2
- Bathrooms
- 2
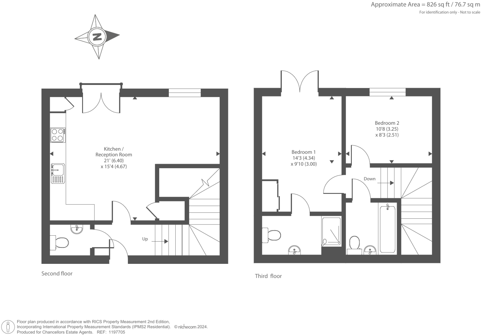
- Sqft (est)
- 826.00
The heatmap indicates the level of crime in the area. The color of the heatmap indicates the crime severity and recency.
Metrics Year-on-Year
- Average area value
- 270,000.00 £Increased by 41.58 %
- Est sale value
- 299,838.00 £Increased by 61.33 %
- Average area rental value
- 936.00 £/moDecreased by 3.51 %
- Est letting value
- 826.00 £/moUnchanged by 0.00 %
- Est rental Yield
- 4.16 %Decreased by 31.80 %
- Crime Rate
- 44.00 %Unchanged by 0.00 %
Agent Activity
Chancellors created the listing.
Nearby Schools
| Name | Type | Ofsted | Distance |
|---|---|---|---|
| The Batt Church Of England Primary School | Academy Converter | 0.38 KM | |
| Witney Children And Family Centre | Children's Centre | 0.59 KM | |
| St Mary'S Church Of England Controlled Infant School | Academy Converter | Good | 0.60 KM |
| The Henry Box School | Academy Converter | Good | 0.72 KM |
| Tower Hill Community Primary School | Academy Converter | Requires improvement | 0.90 KM |
Images
Nearby Streets
| Name | Average Price | Average Sqft | Distance |
|---|---|---|---|
| Meadow Court | £ 0 | 0 | 0.00 KM |
| High Street | £ 185,000 | 0 | 0.00 KM |
| Puck Lane Diversion | £ 0 | 0 | 0.00 KM |
| Langdale Court | £ 0 | 0 | 0.00 KM |
| Bridge Street | £ 427,500 | 0 | 0.00 KM |
Nearby Transport
| Name | NLC | TLC | Distance |
|---|---|---|---|
| Finstock | 3012 | FIN | 7.49 KM |
| Charlbury | 3004 | CBY | 9.46 KM |
Nearby Listings
| Address | Price | Type | Score | Distance |
|---|---|---|---|---|
| Witney, Oxfordshire, OX28 | £ 250,000 | BUY | 5 / 10 | 0.00 KM |
| Marriotts Walk, Witney, Oxfordshire, OX28 | £ 200,000 | BUY | Unknown | 0.08 KM |
| Marriotts Walk, Witney, OX28 | £ 195,000 | BUY | 6 / 10 | 0.08 KM |
| Marriotts Walk, Witney, OX28 | £ 200,000 | BUY | 5 / 10 | 0.09 KM |
| Marriotts Walk, Witney, OX28 | £ 205,000 | BUY | 6 / 10 | 0.09 KM |
Nearby Properties
| Address | Price | Distance |
|---|---|---|
| 68 Marriotts Walk | £ 194,200 | 0.08 KM |
| 26 Marriotts Walk | £ 190,000 | 0.08 KM |
| 31 Marriotts Walk | £ 144,000 | 0.08 KM |
| 47 Marriotts Walk | £ 188,000 | 0.08 KM |
| 34 Marriotts Walk | £ 109,050 | 0.08 KM |