Waterman House says ..
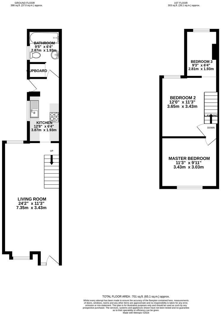
We are pleased to bring to the market this 2/3 BEDROOM TERRACED HOUSE. The ground floor comprises of a LARGE LIVING ROOM, kitchen and FAMILY BATHROOM. Upstairs there are 2 DOUBLE BEDROOMS and 1 single (Please note access to the 3rd bedroom is through the 2nd bedroom). To the rear of the property ...
Property Oracle says ..
This three-bedroom terraced house on Gordon Road, Northfleet, presents a mixed bag for potential buyers. The property’s location offers some advantages. Its proximity to Gravesend town centre provides access to amenities and transport links, including train services to London. Several nearby schools boast ‘Good’ or ‘Outstanding’ Ofsted ratings, making it potentially attractive to families. The house itself benefits from a small garden, a definite plus. However, the interior appears dated and in need of some modernisation, especially the kitchen and bathroom. While the current condition isn’t necessarily poor, potential buyers should factor in renovation costs. The asking price seems somewhat higher than some comparable properties, though still within the general market range for the area. Therefore, any prospective buyer must assess whether the cost of modernising outweighs the advantages of location and the garden. Overall, it presents a reasonably priced property, however, some improvements are needed.
Therefore, we give this property 5 / 10. *Disclaimer: This is our option and does constitute a recommendation or financial advice. Do your own research. *
- Price
- 7
- Condition
- 5
- Location
- 6
- Land
- 4
- Bedrooms
- 3
- Bathrooms
- 1
- Sqft (est)
- 701.00
The heatmap indicates the level of crime in the area. The color of the heatmap indicates the crime severity and recency.
Metrics Year-on-Year
- Average area value
- 420,333.00 £Increased by 19.71 %
- Est sale value
- 757,080.00 £Increased by 143.24 %
- Average area rental value
- 1,320.00 £/moDecreased by 3.51 %
- Est letting value
- 2,103.00 £/moIncreased by 200.00 %
- Est rental Yield
- 3.77 %Decreased by 19.44 %
- Crime Rate
- 13.00 %Unchanged by 0.00 %
Agent Activity
Waterman House marked this listing as sold.
Waterman House created the listing.
Nearby Schools
| Name | Type | Ofsted | Distance |
|---|---|---|---|
| Northfleet Nursery School | Local Authority Nursery School | Outstanding | 0.16 KM |
| Rosherville Church Of England Academy | Academy Sponsor Led | 0.59 KM | |
| Copperfield Academy | Academy Sponsor Led | Good | 0.60 KM |
| St Botolph'S Church Of England Primary School | Academy Converter | Good | 0.62 KM |
| Northfleet Technology College | Foundation School | Good | 1.09 KM |
Images
Nearby Streets
| Name | Average Price | Average Sqft | Distance |
|---|---|---|---|
| St Marks Road | £ 160,000 | 0 | 0.00 KM |
| Crete Hall Road | £ 339,739 | 0 | 0.00 KM |
| Geneive Road | £ 436,000 | 0 | 0.00 KM |
| Henley Approach | £ 96,000 | 0 | 0.00 KM |
| Berwick Square | £ 0 | 0 | 0.00 KM |
Nearby Transport
| Name | NLC | TLC | Distance |
|---|---|---|---|
| Gravesend | 5172 | GRV | 2.02 KM |
| Tilbury Town | 7462 | TIL | 2.40 KM |
| Northfleet | 5120 | NFL | 2.70 KM |
| Ebbsfleet International | 5566 | EBD | 3.04 KM |
| Swanscombe | 5156 | SWM | 4.37 KM |
Nearby Listings
| Address | Price | Type | Score | Distance |
|---|---|---|---|---|
| Gordon Road, Northfleet | £ 280,000 | BUY | 5 / 10 | 0.00 KM |
| Gordon Road, Northfleet, Gravesend, Kent, DA11 | £ 280,000 | BUY | 7 / 10 | 0.02 KM |
| Gordon Road, Northfleet, Gravesend | £ 260,000 | BUY | 5 / 10 | 0.03 KM |
| 67 Rural Vale, Northfleet, Gravesend, DA11 9JL | £ 120,000 | BUY | 5 / 10 | 0.09 KM |
| 67 Rural Vale, Northfleet, Gravesend, Kent, DA11 9JL | £ 140,000 | BUY | 5 / 10 | 0.09 KM |
Nearby Properties
| Address | Price | Distance |
|---|---|---|
| 46 London Road | £ 85,000 | 0.06 KM |
| 39 London Road | £ 179,995 | 0.07 KM |
| 37 London Road | £ 134,000 | 0.07 KM |
| 30 London Road | £ 134,500 | 0.07 KM |
| 28 London Road | £ 112,500 | 0.07 KM |