SA
The Garth, Kenton, Newcastle Upon Tyne
By Sanderson Young
£ 325,000
Reviews
3 out of 5 stars
Sanderson Young says ..
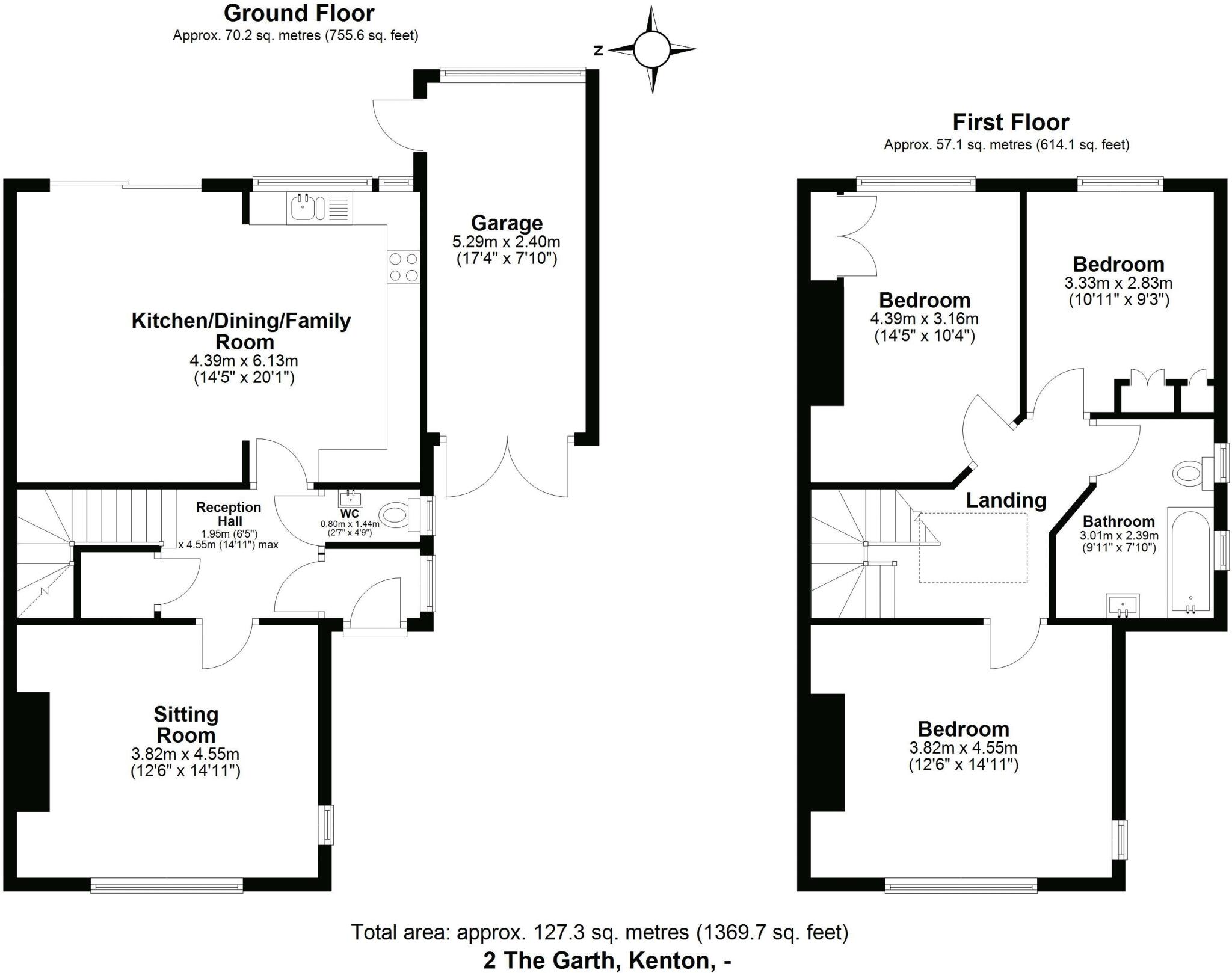
Beautifully Designed Semi Detached House Boasting Three Double Bedrooms, Modern Family Bathroom, Lounge, Open Plan Kitchen/Diner, Garage, Off Street Parking For At Least Two Vehicles, And A Well Maintained Rear Garden. This modern and well presented house is ideally situated within the highly ...
Property Oracle says ..
Therefore, we give this property 7 / 10. *Disclaimer: This is our option and does constitute a recommendation or financial advice. Do your own research. *
- Price
- 7
- Condition
- 8
- Location
- 8
- Land
- 7
- Bedrooms
- 3
- Bathrooms
- 1
- Sqft (est)
- 1,236.68
The heatmap indicates the level of crime in the area. The color of the heatmap indicates the crime severity and recency.
Metrics Year-on-Year
- Average area value
- 200,667.00 £Decreased by 60.33 %
- Est sale value
- 312,880.04 £Decreased by 29.53 %
- Average area rental value
- 1,454.00 £/moDecreased by 8.95 %
- Est letting value
- 1,236.68 £/moUnchanged by 0.00 %
- Est rental Yield
- 8.70 %Increased by 129.55 %
- Crime Rate
- 2.00 %Unchanged by 0.00 %
from 505,808.00 £
from 443,968.12 £
from 1,597.00 £/mo
from 1,236.68 £/mo
from 3.79 %
from 2.00 %
Agent Activity
Sanderson Young created the listing.
Nearby Schools
| Name | Type | Ofsted | Distance |
|---|---|---|---|
| Mountfield Primary School | Academy Converter | Good | 0.52 KM |
| Sure Start Gosforth & Parklands Children'S Centre | Children's Centre Linked Site | 0.65 KM | |
| Sure Start North Moor And Northern Villages Children'S Centre | Children's Centre Linked Site | 0.65 KM | |
| Wyndham Primary School | Academy Converter | Good | 0.82 KM |
| Newcastle Bridges School | Academy Alternative Provision Converter | 0.93 KM |
Images
Nearby Streets
| Name | Average Price | Average Sqft | Distance |
|---|---|---|---|
| The Garth | £ 0 | 0 | 0.00 KM |
| Mansell Place | £ 0 | 0 | 0.00 KM |
| Crantock Road | £ 0 | 0 | 0.00 KM |
| The Green | £ 190,000 | 0 | 0.00 KM |
| Sherringham Avenue | £ 0 | 0 | 0.00 KM |
Nearby Transport
| Name | NLC | TLC | Distance |
|---|---|---|---|
| Newcastle | 7728 | NCL | 5.09 KM |
| Metrocentre | 7725 | MCE | 5.22 KM |
| Manors | 7603 | MAS | 5.82 KM |
| Dunston | 7744 | DOT | 5.86 KM |
| Blaydon | 7503 | BLO | 8.21 KM |
Nearby Listings
| Address | Price | Type | Score | Distance |
|---|---|---|---|---|
| The Garth, Kenton, Newcastle Upon Tyne | £ 325,000 | BUY | 7 / 10 | 0.00 KM |
| The Ridgeway, Kenton, Newcastle upon Tyne | £ 270,000 | BUY | 6 / 10 | 0.08 KM |
| The Uplands, Kenton, NE3 | £ 325,000 | BUY | 8 / 10 | 0.09 KM |
| The Ridgeway, Kenton, Newcastle Upon Tyne | £ 175,000 | BUY | 7 / 10 | 0.13 KM |
| Drummond Road, Kenton, Newcastle Upon Tyne, NE3 | £ 190,000 | BUY | 7 / 10 | 0.16 KM |
Nearby Properties
| Address | Price | Distance |
|---|---|---|
| 6 The Garth | £ 250,000 | 0.01 KM |
| 14 The Garth | £ 236,550 | 0.01 KM |
| 1 The Garth | £ 221,000 | 0.01 KM |
| 12 The Garth | £ 142,500 | 0.01 KM |
| 10 The Garth | £ 210,000 | 0.01 KM |