Enfields says ..
***BARGAIN PRICE*** Rare opportunity to secure a unique and sizeable apartment in the heard of Branksome park at a great price. The property is a fantastic size and a set in a fantastic block named 'The Gables' situated on forest road.Location Highlights: Westbourne Village, 0.8 miles ...
Property Oracle says ..
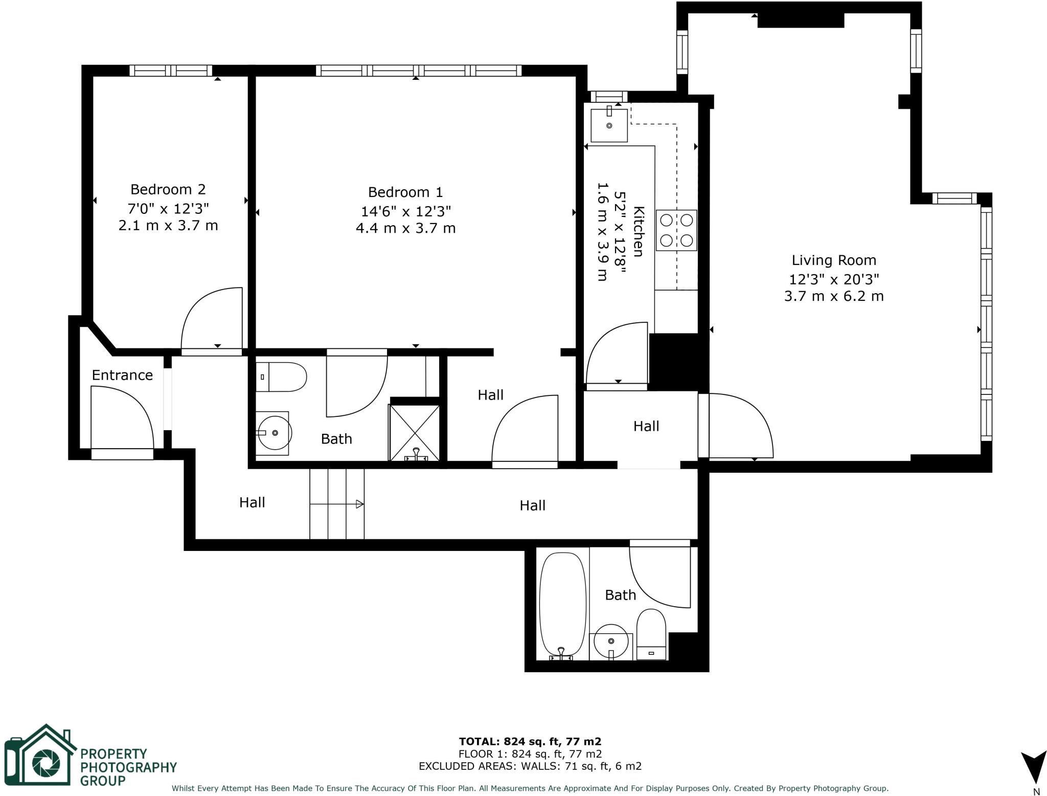
This is a two-bedroom apartment located on Forest Road, Canford Cliffs, Poole. The property is listed for £239,950 by Enfields. It offers 824 sqft of living space. The apartment is situated in a desirable location, close to local amenities and transportation links. However, the interior is dated and requires renovation. The property benefits from its location but lacks private outdoor space. The price appears reasonable given the location and the need for modernization.
Therefore, we give this property 5 / 10. *Disclaimer: This is our option and does constitute a recommendation or financial advice. Do your own research. *
- Price
- 7
- Condition
- 5
- Location
- 7
- Land
- 3
- Bedrooms
- 2
- Bathrooms
- 2
- Sqft (est)
- 824.00
The heatmap indicates the level of crime in the area. The color of the heatmap indicates the crime severity and recency.
Metrics Year-on-Year
- Average area value
- 1,052,667.00 £Increased by 0.59 %
- Est sale value
- 529,008.00 £Increased by 14.03 %
- Average area rental value
- 1,729.00 £/moDecreased by 16.47 %
- Est letting value
- 824.00 £/moUnchanged by 0.00 %
- Est rental Yield
- 1.97 %Decreased by 16.88 %
- Crime Rate
- 2.00 %Unchanged by 0.00 %
Agent Activity
Enfields created the listing.
Nearby Schools
| Name | Type | Ofsted | Distance |
|---|---|---|---|
| Branksome Children'S Centre | Children's Centre | 1.14 KM | |
| Victoria Education Centre | Non-maintained Special School | Good | 1.25 KM |
| Bishop Aldhelm'S Church Of England Primary School | Academy Converter | 1.98 KM | |
| Talbot Heath School | Other Independent School | 2.06 KM | |
| Heatherlands Primary School | Academy Converter | 2.43 KM |
Images
Nearby Streets
| Name | Average Price | Average Sqft | Distance |
|---|---|---|---|
| Lindsay Road (cycleway) | £ 0 | 0 | 0.00 KM |
| Westgate Park | £ 299,950 | 0 | 0.00 KM |
| Seamoor Road | £ 225,000 | 0 | 0.00 KM |
| County Gates Gyratory (cycleway) | £ 0 | 0 | 0.00 KM |
| Silver Birch Close | £ 0 | 0 | 0.00 KM |
Nearby Transport
| Name | NLC | TLC | Distance |
|---|---|---|---|
| Branksome | 5875 | BSM | 1.50 KM |
| Parkstone (Dorset) | 5882 | PKS | 4.10 KM |
| Bournemouth | 5876 | BMH | 5.34 KM |
| Poole | 5883 | POO | 7.95 KM |
| Pokesdown | 5885 | POK | 9.69 KM |
Nearby Listings
| Address | Price | Type | Score | Distance |
|---|---|---|---|---|
| Forest Road, Branksome Park, BH13 | £ 249,950 | BUY | 6 / 10 | 0.00 KM |
| Forest Road, Poole, BH13 | £ 239,950 | BUY | 5 / 10 | 0.00 KM |
| Forest Road, Poole, Dorset, BH13 | £ 150,000 | BUY | 7 / 10 | 0.01 KM |
| Forest Road, Poole, Dorset, BH13 | £ 160,000 | BUY | 7 / 10 | 0.01 KM |
| Forest Road, Canford Cliffs, Poole, BH13 | £ 899,500 | BUY | Unknown | 0.01 KM |
Nearby Properties
| Address | Price | Distance |
|---|---|---|
| 8 Forest Road | £ 1,147,500 | 0.12 KM |
| 32 Forest Road | £ 600,000 | 0.12 KM |
| 6 Forest Road | £ 563,000 | 0.16 KM |
| 26 Forest Road | £ 1,130,000 | 0.16 KM |
| 38 Forest Road | £ 318,500 | 0.16 KM |