Fletcher & Poole says ..
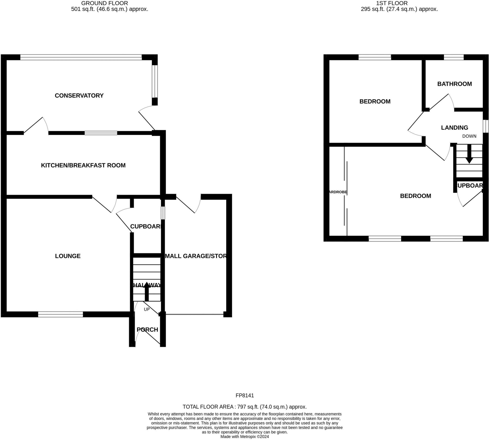
A well presented two bedroom semi detached home situated in the heart of the village enjoying mountain views. The accommodation comprises: Entrance porch, hallway, lounge with access into the understairs cupboard, modern kitchen/breakfast room with space for an electric oven, space and plumbing f...
Property Oracle says ..
This property is a 2 bedroom, 1 bathroom house located in Groesffordd, Dwygyfylchi, Conwy, LL34 6RN. It is situated in a quiet residential area with a small garden and is within reasonable proximity to local amenities and transport links. The property appears to be in good condition, with a recently updated kitchen and conservatory. The asking price of £230,000 seems reasonable considering the property’s location, condition, and size, however, further analysis of comparable properties in the area would be beneficial to confirm this.
Therefore, we give this property 7 / 10. *Disclaimer: This is our option and does constitute a recommendation or financial advice. Do your own research. *
- Price
- 7
- Condition
- 8
- Location
- 7
- Land
- 6
- Bedrooms
- 2
- Bathrooms
- 1
- Sqft (est)
- 987.00
- Lot (est)
- 797.00
The heatmap indicates the level of crime in the area. The color of the heatmap indicates the crime severity and recency.
Metrics Year-on-Year
- Average area value
- 401,278.00 £Increased by 42.31 %
- Est sale value
- 489,552.00 £Increased by 69.28 %
- Average area rental value
- 1,053.00 £/moDecreased by 6.32 %
- Est letting value
- 987.00 £/moUnchanged by 0.00 %
- Est rental Yield
- 3.15 %Decreased by 34.10 %
- Crime Rate
- 85.00 %Unchanged by 0.00 %
Agent Activity
Fletcher & Poole created the listing.
Nearby Schools
| Name | Type | Ofsted | Distance |
|---|---|---|---|
| Ysgol Capelulo | Welsh Establishment | 0.71 KM | |
| Ysgol Pencae | Welsh Establishment | 2.01 KM | |
| Ysgol Llangelynnin | Welsh Establishment | 6.32 KM | |
| Ysgol Aberconwy | Welsh Establishment | 6.82 KM | |
| Ysgol Porth Y Felin | Welsh Establishment | 7.23 KM |
Images
Nearby Streets
| Name | Average Price | Average Sqft | Distance |
|---|---|---|---|
| Groesffordd Lane | £ 0 | 0 | 0.00 KM |
| Golygfa Sychnant | £ 0 | 0 | 0.00 KM |
| Maes Y Lan | £ 0 | 0 | 0.00 KM |
Nearby Transport
| Name | NLC | TLC | Distance |
|---|---|---|---|
| Penmaenmawr | 2494 | PMW | 2.89 KM |
| Deganwy | 2480 | DGY | 7.43 KM |
| Conwy | 2486 | CNW | 7.52 KM |
| Llandudno | 2484 | LLD | 9.22 KM |
| Llanfairfechan | 2488 | LLF | 9.65 KM |
Nearby Listings
| Address | Price | Type | Score | Distance |
|---|---|---|---|---|
| Groesffordd, Dwygyfylchi | £ 230,000 | BUY | 7 / 10 | 0.00 KM |
| Groesffordd,Dwygyfylchi, LL34 | £ 260,000 | BUY | 7 / 10 | 0.00 KM |
| Cae Gwynan, Dwygyfylchi, Penmaenmawr | £ 255,000 | BUY | Unknown | 0.05 KM |
| Cae Gwynan, Dwygyfylchi | £ 270,000 | BUY | 6 / 10 | 0.12 KM |
| Gwel Y Mor, Dwygyfylchi, Penmaenmawr, Conwy, LL34 | £ 240,000 | BUY | Unknown | 0.13 KM |
Nearby Properties
| Address | Price | Distance |
|---|---|---|
| 61 Groesffordd | £ 115,000 | 0.01 KM |
| 73 Groesffordd | £ 133,000 | 0.01 KM |
| 57 Groesffordd | £ 145,000 | 0.01 KM |
| 63 Groesffordd | £ 124,000 | 0.01 KM |
| 79 Groesffordd | £ 125,000 | 0.01 KM |