Pennys says ..
A Truly Stunning Period Terrace House Tastefully Refurbished Keeping Much Inherent Character Of Its Era With Lovely Rear Garden, Off Road Parking And Architect Designed Workshop
Property Oracle says ..
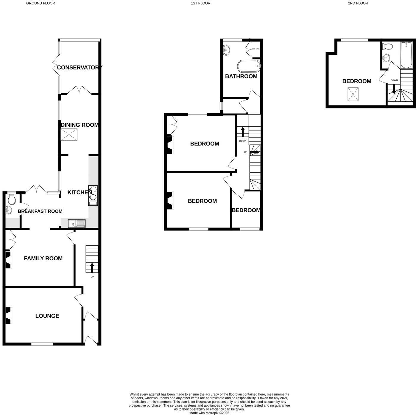
This property is a 4-bedroom, 2-bathroom terraced house located on Raleigh Road in Exmouth, East Devon. The list price is £585,000. The property has a relatively small plot size at 0.00 sqft.
The property appears to be in good condition. The images show a well-maintained interior with modern updates to the kitchen and bathrooms. There is evidence of traditional features such as fireplaces and period detailing, suggesting a blend of modern and traditional styles. The garden is well-maintained and includes raised beds and a shed.
The location in Exmouth Littleham offers proximity to several schools, including The Beacon Church of England Primary School (rated ‘Good’ by Ofsted) and Exeter Road Community Primary School (also rated ‘Good’). Exmouth train station is within a reasonable distance, providing access to the Great Western Railway network.
Considering the average house price in the area is £413,449 and the average price per sqft is £355, the asking price of £585,000 for this 1,500 sqft property seems high. However, the property’s condition, proximity to amenities, and the inclusion of a garden may justify a higher price compared to the average. Nearby comparable properties on Raleigh Road are listed at similar prices, which supports the list price to some extent. The lack of plot size information for comparable properties makes a complete price comparison difficult.
Therefore, we give this property 6 / 10. *Disclaimer: This is our option and does constitute a recommendation or financial advice. Do your own research. *
- Price
- 6
- Condition
- 8
- Location
- 7
- Land
- 6
- Bedrooms
- 4
- Bathrooms
- 2
- Sqft (est)
- 1,500.00
The heatmap indicates the level of crime in the area. The color of the heatmap indicates the crime severity and recency.
Metrics Year-on-Year
- Average area value
- 385,000.00 £Decreased by 11.33 %
- Est sale value
- 999,000.00 £Increased by 93.60 %
- Average area rental value
- 1,650.00 £/moIncreased by 37.04 %
- Est letting value
- 3,000.00 £/mo
- Est rental Yield
- 5.14 %Increased by 54.35 %
- Crime Rate
- 32.00 %Unchanged by 0.00 %
Agent Activity
Pennys created the listing.
Nearby Schools
| Name | Type | Ofsted | Distance |
|---|---|---|---|
| The Beacon Church Of England (Va) Primary School | Voluntary Aided School | Good | 0.40 KM |
| Exeter Royal Academy For Deaf Education | Non-maintained Special School | Requires improvement | 0.46 KM |
| Exeter Road Community Primary School | Foundation School | Good | 0.52 KM |
| St Joseph'S Catholic Primary School, Exmouth | Academy Converter | Good | 0.64 KM |
| Exmouth Community College | Academy Converter | Requires improvement | 1.06 KM |
Images
Nearby Streets
| Name | Average Price | Average Sqft | Distance |
|---|---|---|---|
| South Street | £ 0 | 0 | 0.00 KM |
| Admirals Court | £ 119,488 | 0 | 0.00 KM |
| Bicton Villas | £ 0 | 0 | 0.00 KM |
| Albion Terrace | £ 200,000 | 0 | 0.00 KM |
| Beacon Hill | £ 0 | 0 | 0.00 KM |
Nearby Transport
| Name | NLC | TLC | Distance |
|---|---|---|---|
| Exmouth | 5756 | EXM | 0.74 KM |
| Lympstone Village | 5761 | LYM | 4.12 KM |
| Dawlish Warren | 3409 | DWW | 4.36 KM |
| Starcross | 3413 | SCS | 4.38 KM |
| Lympstone Commando | 5762 | LYC | 6.01 KM |
Nearby Listings
| Address | Price | Type | Score | Distance |
|---|---|---|---|---|
| Raleigh Road, Exmouth, EX8 2RX | £ 585,000 | BUY | 6 / 10 | 0.00 KM |
| Raleigh Road, Exmouth, EX8 2RX | £ 195,000 | BUY | 6 / 10 | 0.00 KM |
| Bicton Street, Exmouth | £ 299,950 | BUY | 6 / 10 | 0.05 KM |
| Bicton Street, Exmouth, EX8 | £ 419,000 | BUY | Unknown | 0.06 KM |
| Bicton Street, Exmouth | £ 279,950 | BUY | 6 / 10 | 0.06 KM |
Nearby Properties
| Address | Price | Distance |
|---|---|---|
| 41 Raleigh Road | £ 342,500 | 0.01 KM |
| 7 Raleigh Road | £ 64,000 | 0.01 KM |
| 39a Raleigh Road | £ 130,000 | 0.01 KM |
| 53 Raleigh Road | £ 285,000 | 0.01 KM |
| 7a Raleigh Road | £ 153,500 | 0.01 KM |