Marina Road, Formby, Liverpool
AB

Marina Road, Formby, Liverpool

By Abode

£ 275,000

Reviews

3 out of 5 stars

Abode says ..

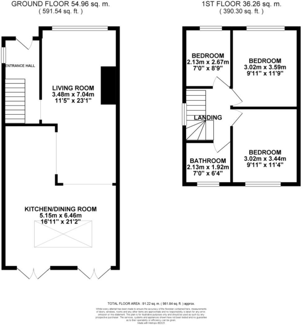
Welcome to this stunning three-bedroom, extended semi-detached home, perfectly situated on the sought-after Marina Road, Formby. This beautifully presented property is ideal for a variety of buyers, offering both style and convenience in an unbeatable location. The property benefits from...

Property Oracle says ..

This three-bedroom semi-detached house located on Marina Road, Formby, presents a compelling proposition for potential buyers. Formby’s reputation as a sought-after residential area, with its excellent schools and coastal proximity, significantly enhances the property’s appeal. The property itself benefits from a recently completed extension which appears to have created a modern, open-plan kitchen and dining area. The images showcase a contemporary style, with updated fixtures and fittings that give the property a modern feel. While the provided photographs offer a glimpse into the home’s interior and exterior, a physical viewing is crucial for a thorough assessment of its condition. The garden, though present, seems relatively small. The proximity to excellent schools, including Redgate Community Primary School and Our Lady of Compassion Catholic Primary School, adds significant value, particularly for families. The convenience of nearby transport links, such as Formby train station, increases accessibility. While the list price sits in line with other properties in the area, obtaining a full structural survey is advisable prior to purchase. Overall, this property offers a blend of modern amenities, desirable location, and good potential; however, further investigation is warranted before making any decisions. The lack of precise plot size for the subject property and nearby listings is a shortcoming in providing an even more thorough analysis.

Therefore, we give this property 6 / 10. *Disclaimer: This is our option and does constitute a recommendation or financial advice. Do your own research. *

Price
7
Condition
7
Location
8
Land
4
Bedrooms
3
Bathrooms
1
Sqft (est)
981.88

The heatmap indicates the level of crime in the area. The color of the heatmap indicates the crime severity and recency.

Metrics Year-on-Year

Average area value
191,154.00 £
Decreased by 45.17 %
from 348,637.00 £
Est sale value
183,611.56 £
Decreased by 36.39 %
from 288,672.72 £
Average area rental value
1,267.00 £/mo
Increased by 0.48 %
from 1,261.00 £/mo
Est letting value
981.88 £/mo
Unchanged by 0.00 %
from 981.88 £/mo
Est rental Yield
7.95 %
Increased by 83.18 %
from 4.34 %
Crime Rate
4.00 %
Unchanged by 0.00 %
from 4.00 %

Agent Activity

  • Abode created the listing.

Nearby Schools

NameTypeOfstedDistance
Redgate Community Primary SchoolCommunity SchoolGood0.78 KM
Our Lady Of Compassion Catholic Primary SchoolVoluntary Aided SchoolGood1.20 KM
Freshfield Children'S CentreChildren's Centre1.63 KM
Formby High SchoolAcademy Converter1.84 KM
Freshfield Primary SchoolCommunity SchoolOutstanding1.86 KM

Images

DSC00037_HDR.jpg DSC00007_HDR.jpg DSC00002_HDR.jpg DSC00012_HDR.jpg DSC09981_HDR.jpg DSC09991_HDR.jpg DSC09976_HDR.jpg DSC09966_HDR.jpg DSC09956_HDR.jpg DSC09971_HDR.jpg DSC09886_HDR.jpg DSC09891_HDR.jpg DSC09901_HDR.jpg DSC09986_HDR.jpg DSC09996_HDR.jpg DSC09951_HDR.jpg DSC09866_HDR.jpg DSC09911_HDR.jpg DSC09876_HDR.jpg DSC09916_HDR.jpg DSC09931_HDR.jpg DSC09946_HDR.jpg DSC00017_HDR.jpg DSC00027_HDR.jpg DSC00032_HDR.jpg

Nearby Streets

NameAverage PriceAverage SqftDistance
Bill's Lane £ 650,00000.00 KM
Basswood Avenue £ 000.00 KM
Conifer Court £ 250,00000.00 KM
Mohave Drive £ 425,83300.00 KM
Osborne Road £ 275,00000.00 KM

Nearby Transport

NameNLCTLCDistance
Formby2354FBY1.57 KM
Hightown2356HTO2.52 KM
Freshfield2355FRE2.55 KM
Hall Road2229HLR5.66 KM
Ainsdale2350ANS6.27 KM

Nearby Listings

AddressPriceTypeScoreDistance
Marina Road, Formby, Liverpool £ 275,000BUY6 / 100.00 KM
Marina Road, Formby, Liverpool £ 240,000BUY7 / 100.04 KM
Marina Road, Formby, Liverpool, Merseyside, L37 £ 230,000BUY6 / 100.07 KM
Kent Road, Formby, Liverpool £ 255,000BUY7 / 100.12 KM
Altcar Lane, Formby, L37 6AU £ 514,750BUYUnknown0.15 KM

Nearby Properties

AddressPriceDistance
66 Altcar Lane £ 135,0000.05 KM
44 Altcar Lane £ 197,5000.05 KM
52 Altcar Lane £ 175,0000.05 KM
64 Altcar Lane £ 168,0000.05 KM
42 Marina Road £ 160,0000.07 KM