East Causeway, Leeds, West Yorkshire
By Manning Stainton
£ 365,000
Reviews
4 out of 5 stars
Manning Stainton says ..
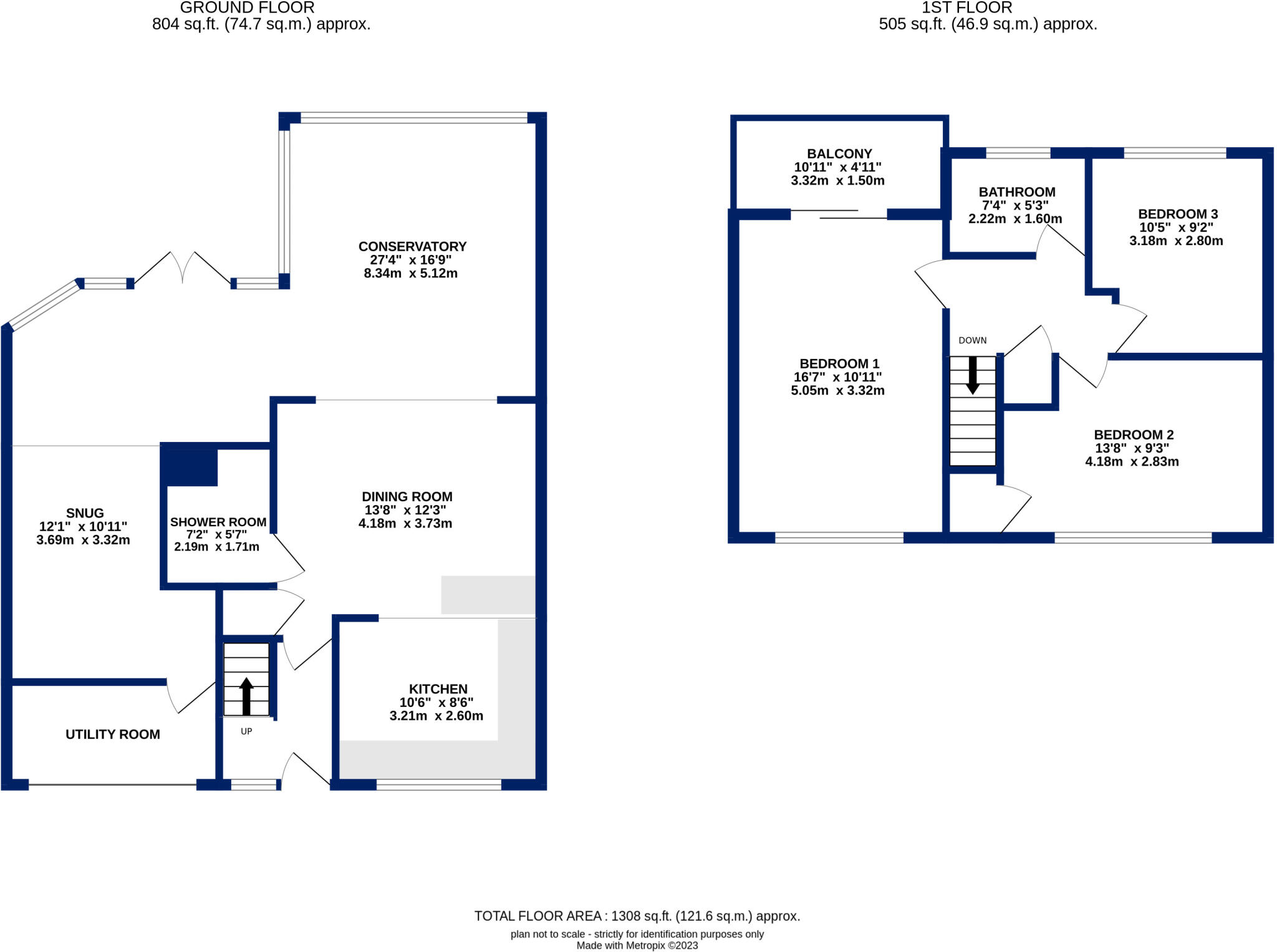
Three bed terrace with THREE RECEPTION ROOMS, GUEST WC and UTILITY ROOM!
Property Oracle says ..
The property is a 3-bedroom, 2-bathroom house located in Adel, Leeds, West Yorkshire. Adel is a sought-after village, and the property’s proximity to good schools like Adel St John The Baptist Church of England Primary School (0.56 KM) and Adel Primary School (0.65 KM), both rated ‘Good’ by Ofsted, is a significant positive. The presence of several other primary schools within a reasonable distance further enhances its family-friendly appeal. Train stations such as Headingley (4.59 KM) and Burley Park (4.81 KM) offer convenient transport links.
The property itself appears to be in good condition. The photos show a well-maintained interior with modern fixtures and fittings in the kitchen and bathrooms. There is evidence of recent renovations or updates. The presence of a conservatory and a garden adds to the property’s desirability. The garden, while not extensive, offers a private outdoor space.
Considering the list price of £365,000, the average price in the area (£489,948) and the average price per square foot (£390), the property seems reasonably priced, potentially even slightly below average for the area, especially given its apparent good condition and the inclusion of a garden. However, the lack of square footage data for the comparable properties makes a precise price comparison challenging. The nearby listings show a range of prices, with some properties exceeding the list price significantly, and others being lower. This suggests a degree of price variation within the immediate vicinity.
Therefore, we give this property 8 / 10. *Disclaimer: This is our option and does constitute a recommendation or financial advice. Do your own research. *
- Price
- 8
- Condition
- 8
- Location
- 9
- Land
- 7
- Bedrooms
- 3
- Bathrooms
- 2
- Sqft (est)
- 1,400.00
- Lot (est)
- 1,308.00
The heatmap indicates the level of crime in the area. The color of the heatmap indicates the crime severity and recency.
Metrics Year-on-Year
- Average area value
- 444,966.00 £Increased by 5.54 %
- Est sale value
- 630,000.00 £Increased by 32.35 %
- Average area rental value
- 1,480.00 £/moDecreased by 0.34 %
- Est letting value
- 1,400.00 £/moUnchanged by 0.00 %
- Est rental Yield
- 3.99 %Decreased by 5.67 %
- Crime Rate
- 8.00 %Unchanged by 0.00 %
Agent Activity
Manning Stainton marked this listing as sold.
Manning Stainton created the listing.
Nearby Schools
| Name | Type | Ofsted | Distance |
|---|---|---|---|
| Adel St John The Baptist Church Of England Primary School | Voluntary Aided School | Good | 0.56 KM |
| Adel Primary School | Community School | Good | 0.65 KM |
| Moorlands School | Other Independent School | 1.68 KM | |
| St Paul'S Catholic Primary School, A Voluntary Academy | Academy Converter | 2.15 KM | |
| Alwoodley Primary School | Community School | Outstanding | 2.33 KM |
Images
Nearby Streets
| Name | Average Price | Average Sqft | Distance |
|---|---|---|---|
| Eddison Close | £ 385,000 | 0 | 0.00 KM |
| East Moor Lane | £ 521,450 | 0 | 0.00 KM |
| Derwent Drive | £ 0 | 0 | 0.00 KM |
| Mulberry Avenue | £ 437,980 | 0 | 0.00 KM |
| Woodstock Close | £ 405,000 | 0 | 0.00 KM |
Nearby Transport
| Name | NLC | TLC | Distance |
|---|---|---|---|
| Headingley | 8498 | HDY | 4.59 KM |
| Burley Park | 8500 | BUY | 4.81 KM |
| Horsforth | 8499 | HRS | 6.00 KM |
| Kirkstall Forge | 6544 | KLF | 6.18 KM |
| Leeds | 8487 | LDS | 7.34 KM |
Nearby Listings
| Address | Price | Type | Score | Distance |
|---|---|---|---|---|
| East Causeway,Leeds,LS16 8JT | £ 350,000 | BUY | 7 / 10 | 0.08 KM |
| East Causeway Crescent, Leeds, West Yorkshire, LS16 | £ 350,000 | BUY | 7 / 10 | 0.08 KM |
| East Causeway Crescent, Leeds, West Yorkshire, LS16 | £ 475,000 | BUY | Unknown | 0.08 KM |
| East Causeway Crescent, Leeds, West Yorkshire, LS16 | £ 400,000 | BUY | 7 / 10 | 0.09 KM |
| Eddison Walk, Leeds, West Yorkshire | £ 475,000 | BUY | 7 / 10 | 0.12 KM |
Nearby Properties
| Address | Price | Distance |
|---|---|---|
| 8 East Causeway Close | £ 220,000 | 0.05 KM |
| 10 East Causeway Close | £ 450,000 | 0.05 KM |
| 6 East Causeway Close | £ 250,000 | 0.05 KM |
| 3 East Causeway Close | £ 360,000 | 0.05 KM |
| 1 East Causeway Close | £ 270,000 | 0.05 KM |