DI
Red Hill, Wateringbury, Maidstone, Kent, ME18
By Distinctive Homes
£ 750,000
Reviews
3 out of 5 stars
Distinctive Homes says ..
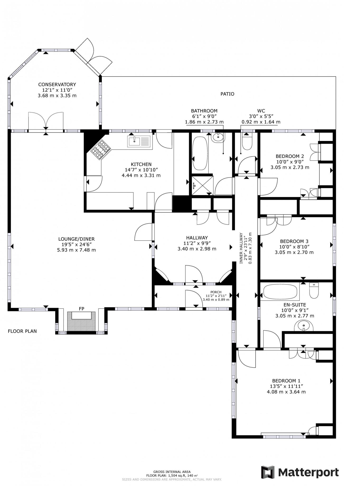
This charming THREE BEDROOM bungalow on Red Hill in Wateringbury is perfectly situated within walking distance of local amenities. It boasts a generously sized garden with ample parking. Interested? Contact us today!
Property Oracle says ..
Therefore, we give this property 6 / 10. *Disclaimer: This is our option and does constitute a recommendation or financial advice. Do your own research. *
- Price
- 6
- Condition
- 6
- Location
- 7
- Land
- 7
- Bedrooms
- 3
- Bathrooms
- 2
- Sqft (est)
- 1,474.66
The heatmap indicates the level of crime in the area. The color of the heatmap indicates the crime severity and recency.
Metrics Year-on-Year
- Average area value
- 259,821.00 £Increased by 8.05 %
- Est sale value
- 467,467.22 £Increased by 23.83 %
- Average area rental value
- 1,011.00 £/moIncreased by 5.53 %
- Est letting value
- 1,474.66 £/moUnchanged by 0.00 %
- Est rental Yield
- 4.67 %Decreased by 2.30 %
- Crime Rate
- 25.00 %Unchanged by 0.00 %
from 240,470.00 £
from 377,512.96 £
from 958.00 £/mo
from 1,474.66 £/mo
from 4.78 %
from 25.00 %
Agent Activity
Distinctive Homes created the listing.
Nearby Schools
| Name | Type | Ofsted | Distance |
|---|---|---|---|
| Wateringbury Church Of England Primary School | Voluntary Aided School | Good | 0.75 KM |
| The Discovery School | Community School | Outstanding | 1.84 KM |
| Kings Hill School Primary And Nursery | Community School | Good | 3.23 KM |
| Valley Invicta Primary School At Kings Hill | Academy Sponsor Led | Good | 3.48 KM |
| Yalding, St Peter And St Paul Church Of England Voluntary Controlled Primary School | Voluntary Controlled School | Good | 3.66 KM |
Images
Nearby Streets
| Name | Average Price | Average Sqft | Distance |
|---|---|---|---|
| Waterside Mews | £ 350,000 | 0 | 0.00 KM |
| Bow Hill | £ 0 | 0 | 0.00 KM |
| Victory Drive | £ 0 | 0 | 0.00 KM |
Nearby Transport
| Name | NLC | TLC | Distance |
|---|---|---|---|
| Wateringbury | 5241 | WTR | 0.75 KM |
| Yalding | 5232 | YAL | 3.55 KM |
| East Malling | 5134 | EML | 3.72 KM |
| West Malling | 5129 | WMA | 4.00 KM |
| Beltring | 5227 | BEG | 6.16 KM |
Nearby Listings
| Address | Price | Type | Score | Distance |
|---|---|---|---|---|
| Red Hill, ME18 | £ 875,000 | BUY | 6 / 10 | 0.00 KM |
| Red Hill, Wateringbury, Maidstone, Kent, ME18 | £ 750,000 | BUY | 6 / 10 | 0.00 KM |
| Maidstone Road, Wateringbury, Maidstone | £ 450,000 | BUY | Unknown | 0.01 KM |
| Red Hill, Wateringbury, Maidstone, Kent | £ 1,250,000 | BUY | 7 / 10 | 0.01 KM |
| Tonbridge Road, Wateringbury, Maidstone | £ 200,000 | BUY | 6 / 10 | 0.09 KM |
Nearby Properties
| Address | Price | Distance |
|---|---|---|
| 7 Red Hill | £ 650,000 | 0.00 KM |
| 5 Red Hill | £ 450,000 | 0.00 KM |
| 15 Red Hill | £ 750,000 | 0.00 KM |
| 178 Tonbridge Road | £ 250,000 | 0.13 KM |
| 180 Tonbridge Road | £ 290,000 | 0.13 KM |