Chetwynd Court, Stafford
By Tinsley-Garner Independent Estate Agents
£ 275,000
Reviews
3 out of 5 stars
Tinsley-Garner Independent Estate Agents says ..
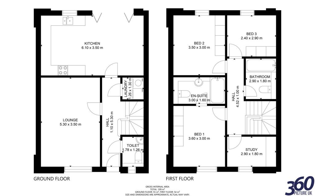
Our last remaining 4 bed contemporary style semi-detached house in a courtyard setting on the edge of Stafford town centre, 2 minutes walk to the railway station and a little over 1 mile from Stafford County Hospital. Spacious accommodation featuring: entrance hall, lounge, open plan dining kitch...
Property Oracle says ..
This is a modern terraced property located in Forebridge, Stafford. It features four bedrooms and two bathrooms, with a square footage of 1,173.27. The property appears to be in excellent condition, with a modern kitchen and bathrooms. It also benefits from a garden. The location offers good access to local schools and transportation links, including the Stafford train station. The asking price of £275,000 seems reasonable given the property’s size, condition, and location. The property also includes a study which could be beneficial for people working from home.
Therefore, we give this property 7 / 10. *Disclaimer: This is our option and does constitute a recommendation or financial advice. Do your own research. *
- Price
- 7
- Condition
- 9
- Location
- 7
- Land
- 6
- Bedrooms
- 4
- Bathrooms
- 2
- Sqft (est)
- 1,173.27
The heatmap indicates the level of crime in the area. The color of the heatmap indicates the crime severity and recency.
Metrics Year-on-Year
- Average area value
- 346,658.00 £Increased by 37.09 %
- Est sale value
- 943,309.08 £Increased by 192.36 %
- Average area rental value
- 860.00 £/moIncreased by 11.11 %
- Est letting value
- 1,173.27 £/mo
- Est rental Yield
- 2.98 %Decreased by 18.80 %
- Crime Rate
- 11.00 %Unchanged by 0.00 %
Agent Activity
Tinsley-Garner Independent Estate Agents created the listing.
Nearby Schools
| Name | Type | Ofsted | Distance |
|---|---|---|---|
| Bailey Street Alternative Provision Academy | Academy Alternative Provision Sponsor Led | 0.09 KM | |
| St Paul'S Cofe (C) Primary School | Voluntary Controlled School | Outstanding | 0.58 KM |
| St Austin'S Catholic Primary School | Academy Converter | Good | 0.62 KM |
| Blessed William Howard Catholic School | Academy Converter | Good | 0.74 KM |
| John Wheeldon Primary Academy | Academy Sponsor Led | Good | 1.39 KM |
Images
Nearby Streets
| Name | Average Price | Average Sqft | Distance |
|---|---|---|---|
| St Marys Passage | £ 0 | 0 | 0.00 KM |
| Market Square | £ 0 | 0 | 0.00 KM |
| Station Road | £ 0 | 0 | 0.00 KM |
| Earl Street | £ 285,000 | 0 | 0.00 KM |
| Newport Road | £ 0 | 0 | 0.00 KM |
Nearby Transport
| Name | NLC | TLC | Distance |
|---|---|---|---|
| Stafford | 1268 | STA | 0.64 KM |
| Penkridge | 1195 | PKG | 8.77 KM |
Nearby Listings
| Address | Price | Type | Score | Distance |
|---|---|---|---|---|
| Chetwynd Court, Stafford | £ 275,000 | BUY | 7 / 10 | 0.00 KM |
| Chetwynd Court, Stafford | £ 270,000 | BUY | 6 / 10 | 0.02 KM |
| Chetwynd Court Stafford | £ 227,500 | BUY | 6 / 10 | 0.02 KM |
| Chetwynd Court, Stafford | £ 275,000 | BUY | 6 / 10 | 0.02 KM |
| Chetwynd Court Stafford | £ 227,500 | BUY | Unknown | 0.02 KM |
Nearby Properties
| Address | Price | Distance |
|---|---|---|
| 21 Friars Road | £ 157,000 | 0.04 KM |
| 15 Friars Road | £ 59,950 | 0.04 KM |
| 28 Friars Road | £ 130,000 | 0.04 KM |
| 17 Friars Road | £ 118,500 | 0.07 KM |
| 27 Friars Road | £ 85,000 | 0.07 KM |