AS
Newborough Street, York
By Ashtons Estate Agents
£ 280,000
Ashtons Estate Agents says ..
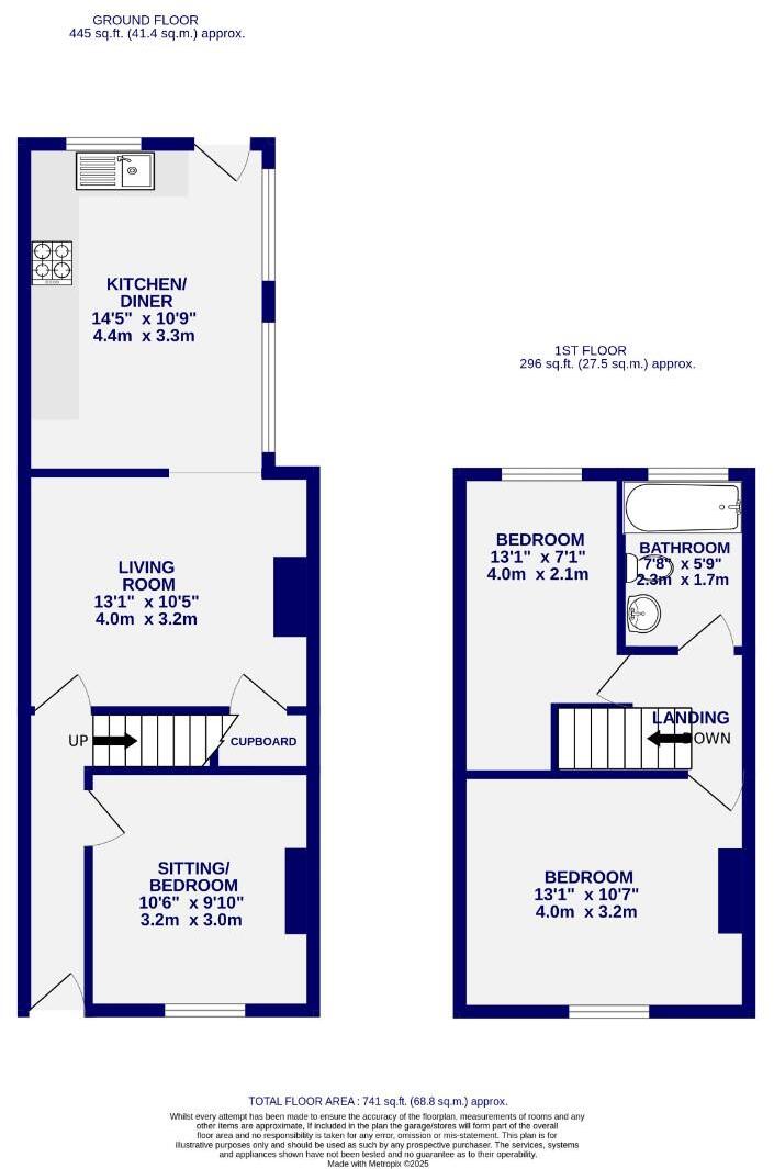
Situated just off Bootham, in one of York’s most desirable residential areas, is this well presented two bedroom mid terrace home. Perfectly positioned within walking distance of the city centre, York train station, and the scenic Clifton Ings, the property also benefits from easy access to a var...
- Bedrooms
- 2
- Bathrooms
- 1
- Sqft (est)
- 674.58
The heatmap indicates the level of crime in the area. The color of the heatmap indicates the crime severity and recency.
Metrics Year-on-Year
- Average area value
- 368,758.00 £Decreased by 22.24 %
- Est sale value
- 348,757.86 £Increased by 27.34 %
- Average area rental value
- 1,595.00 £/moDecreased by 3.10 %
- Est letting value
- 1,349.16 £/moIncreased by 100.00 %
- Est rental Yield
- 5.19 %Increased by 24.46 %
- Crime Rate
- 3.00 %Unchanged by 0.00 %
from 474,223.00 £
from 273,879.48 £
from 1,646.00 £/mo
from 674.58 £/mo
from 4.17 %
from 3.00 %
Agent Activity
Ashtons Estate Agents created the listing.
Nearby Schools
| Name | Type | Ofsted | Distance |
|---|---|---|---|
| Bootham School | Other Independent School | 0.49 KM | |
| St Peter'S School 2-18 | Other Independent School | 0.70 KM | |
| Clifton Green Primary School | Community School | Requires improvement | 0.71 KM |
| Clifton Children'S Centre | Children's Centre | 0.83 KM | |
| York St John University | Higher Education Institutions | 0.93 KM |
Images
Nearby Streets
| Name | Average Price | Average Sqft | Distance |
|---|---|---|---|
| David Longhurst Way | £ 0 | 0 | 0.00 KM |
| Alf Patrick Court | £ 0 | 0 | 0.00 KM |
| Duncombe Square | £ 0 | 0 | 0.00 KM |
| Burton Court | £ 225,000 | 0 | 0.00 KM |
| Bootham Square | £ 0 | 0 | 0.00 KM |
Nearby Transport
| Name | NLC | TLC | Distance |
|---|---|---|---|
| York | 8263 | YRK | 1.41 KM |
| Poppleton | 8254 | POP | 6.87 KM |
Nearby Listings
| Address | Price | Type | Score | Distance |
|---|---|---|---|---|
| Newborough Street, York | £ 280,000 | BUY | Unknown | 0.00 KM |
| Scarborough Terrace, York | £ 240,000 | BUY | Unknown | 0.03 KM |
| Newborough Street, York, YO30 | £ 275,000 | BUY | 5 / 10 | 0.04 KM |
| Scarborough Terrace, York | £ 250,000 | BUY | 5 / 10 | 0.04 KM |
| Grosvenor Terrace, York | £ 600,000 | BUY | 6 / 10 | 0.05 KM |
Nearby Properties
| Address | Price | Distance |
|---|---|---|
| 91 Newborough Street | £ 187,500 | 0.06 KM |
| 59 Newborough Street | £ 230,000 | 0.06 KM |
| 11 Newborough Street | £ 170,000 | 0.06 KM |
| 31 Newborough Street | £ 252,000 | 0.06 KM |
| 33 Newborough Street | £ 214,000 | 0.06 KM |