Dickson Road, Eltham SE9
By Alex Neil Estate Agents
£ 375,000
Reviews
3 out of 5 stars
Alex Neil Estate Agents says ..
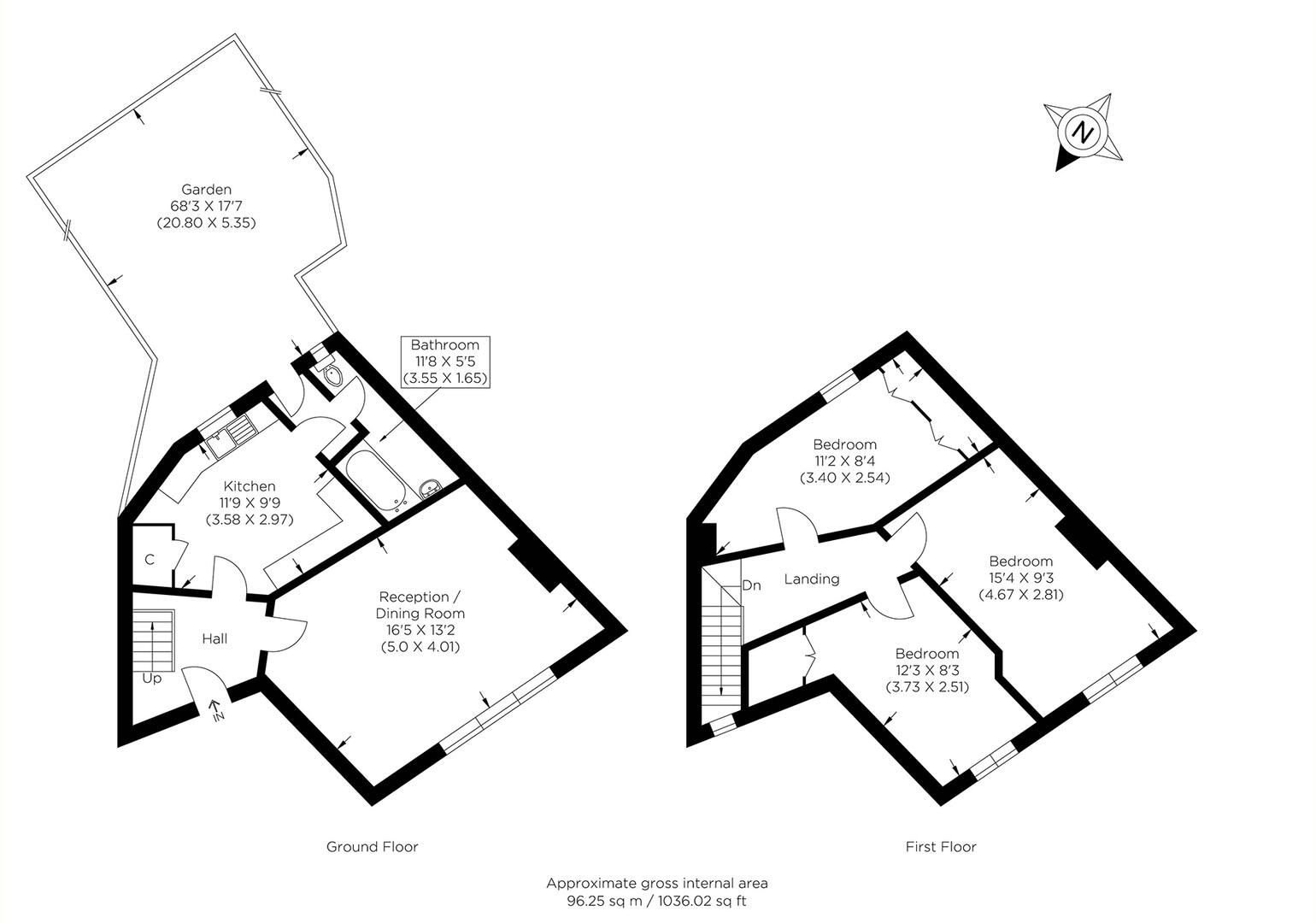
This charming three-bedroom property on Dickson Road in the Progress Estate, Eltham SE9, is the perfect canvas for anyone looking to put their stamp on their new home. Offering spacious living across two floors, this home includes a large reception and dining area, a separate kitchen, and three w...
Property Oracle says ..
This three-bedroom property in Eltham, SE9, presents a mixed bag. Its location is a definite strength, being relatively close to Eltham station and several good schools, making it attractive to families. The presence of a garden is also a plus point in a densely populated area. However, the property is in considerable need of modernisation. The interior looks dated and requires extensive refurbishment in the kitchen, bathroom and throughout. The exterior also requires attention. While the list price of £375,000 might appear reasonable considering the location and size, the substantial renovation costs need to be factored in. A prospective buyer should budget for significant expenditure to bring the property up to a modern standard. The lack of plot size data is also a drawback. Overall, the property presents an opportunity for someone who is prepared to undertake a renovation project, but a full cost-benefit analysis needs to be performed considering the time, effort and financial resources necessary.
Therefore, we give this property 6 / 10. *Disclaimer: This is our option and does constitute a recommendation or financial advice. Do your own research. *
- Price
- 7
- Condition
- 4
- Location
- 7
- Land
- 6
- Bedrooms
- 3
- Bathrooms
- 1
- Sqft (est)
- 1,036.02
The heatmap indicates the level of crime in the area. The color of the heatmap indicates the crime severity and recency.
Metrics Year-on-Year
- Average area value
- 596,706.00 £Increased by 41.85 %
- Est sale value
- 681,701.16 £Increased by 23.45 %
- Average area rental value
- 2,446.00 £/moIncreased by 8.47 %
- Est letting value
- 2,072.04 £/moUnchanged by 0.00 %
- Est rental Yield
- 4.92 %Decreased by 23.48 %
- Crime Rate
- 4.00 %Unchanged by 0.00 %
Agent Activity
Alex Neil Estate Agents created the listing.
Nearby Schools
| Name | Type | Ofsted | Distance |
|---|---|---|---|
| St Thomas More Catholic Primary School | Voluntary Aided School | Good | 0.19 KM |
| Henwick Primary School | Community School | Good | 0.42 KM |
| Newhaven Pupil Referral Unit | Pupil Referral Unit | Good | 0.89 KM |
| Haimo Primary School | Community School | Good | 0.91 KM |
| Gordon Primary School | Community School | Good | 0.94 KM |
Images
Nearby Streets
| Name | Average Price | Average Sqft | Distance |
|---|---|---|---|
| Cobbett Road | £ 0 | 0 | 0.00 KM |
| Well Hall Roundabout | £ 0 | 0 | 0.00 KM |
| Well Hall Roundabout | £ 0 | 0 | 0.00 KM |
| Rydons Close | £ 0 | 0 | 0.00 KM |
| Kelbrook Road | £ 0 | 0 | 0.00 KM |
Nearby Transport
| Name | NLC | TLC | Distance |
|---|---|---|---|
| Eltham | 5103 | ELW | 0.95 KM |
| Kidbrooke | 5108 | KDB | 2.12 KM |
| Mottingham | 5118 | MTG | 2.44 KM |
| Charlton | 5144 | CTN | 3.25 KM |
| Woolwich Dockyard | 5153 | WWD | 3.37 KM |
Nearby Listings
| Address | Price | Type | Score | Distance |
|---|---|---|---|---|
| Dickson Road, Eltham SE9 | £ 375,000 | BUY | 6 / 10 | 0.00 KM |
| Dickson Road, London | £ 525,000 | BUY | 7 / 10 | 0.04 KM |
| 23 Dickson Road, Eltham, SE9 | £ 500,000 | BUY | 6 / 10 | 0.10 KM |
| Sandby Green, London, SE9 | £ 625,000 | BUY | 5 / 10 | 0.13 KM |
| Phineas Pett Road, Eltham, London, SE9 | £ 550,000 | BUY | 6 / 10 | 0.14 KM |
Nearby Properties
| Address | Price | Distance |
|---|---|---|
| 59 Dickson Road | £ 495,000 | 0.01 KM |
| 21 Dickson Road | £ 460,000 | 0.01 KM |
| 19 Dickson Road | £ 512,500 | 0.01 KM |
| 33 Dickson Road | £ 236,000 | 0.01 KM |
| 40 Dickson Road | £ 225,000 | 0.05 KM |