Bruce Close, Nottingham, NG2
By David James Estate Agents
£ 110,000
Reviews
3 out of 5 stars
David James Estate Agents says ..
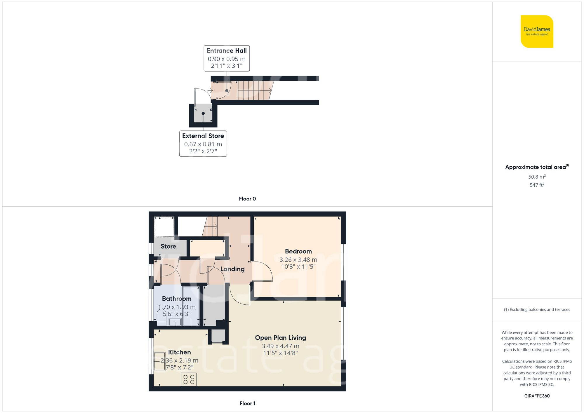
First floor maisonette ideally positioned for convenient access to Nottingham City Centre! Just a short walk from trams and buses, you'll find an open plan living area, 1 double bedroom and bathroom.
Property Oracle says ..
This maisonette is located in the Meadows area of Nottingham, close to several schools and transport links. The property itself is a one-bedroom, one-bathroom maisonette with a small garden. Based on the images provided, the property appears to be in reasonable condition, although some modernisation may be desirable. The list price of £110,000 is significantly lower than the average property price in the area (£250,891), and also lower than many nearby properties. However, this is likely due to the smaller size and the fact that it is a maisonette rather than a house. The average price per sqft in the area is £276, while this property is listed at a much lower price per sqft. Therefore, while it may need some updating, the price seems relatively reasonable considering the location and the current market conditions.
Therefore, we give this property 6 / 10. *Disclaimer: This is our option and does constitute a recommendation or financial advice. Do your own research. *
- Price
- 8
- Condition
- 6
- Location
- 7
- Land
- 3
- Bedrooms
- 1
- Bathrooms
- 1
- Sqft (est)
- 546.81
The heatmap indicates the level of crime in the area. The color of the heatmap indicates the crime severity and recency.
Metrics Year-on-Year
- Average area value
- 185,000.00 £Decreased by 7.65 %
- Est sale value
- 171,151.53 £Increased by 26.72 %
- Average area rental value
- 1,073.00 £/moDecreased by 6.12 %
- Est letting value
- 546.81 £/moUnchanged by 0.00 %
- Est rental Yield
- 6.96 %Increased by 1.61 %
- Crime Rate
- 5.00 %Unchanged by 0.00 %
Agent Activity
David James Estate Agents created the listing.
Nearby Schools
| Name | Type | Ofsted | Distance |
|---|---|---|---|
| Meadows Sure Start Children'S Centre | Children's Centre | 0.10 KM | |
| Greenfields Community School | Community School | Good | 0.26 KM |
| Welbeck Primary School | Community School | Outstanding | 0.65 KM |
| Stone Soup Academy | Free Schools Alternative Provision | Outstanding | 0.95 KM |
| Nottingham College | Further Education | Requires improvement | 1.18 KM |
Images
Nearby Streets
| Name | Average Price | Average Sqft | Distance |
|---|---|---|---|
| Brookfield Court | £ 180,000 | 0 | 0.00 KM |
| Arkwright Street North | £ 0 | 0 | 0.00 KM |
| Radcliffe Street Court 2 | £ 0 | 0 | 0.00 KM |
| Carrington Street | £ 0 | 0 | 0.00 KM |
| Measham Close | £ 0 | 0 | 0.00 KM |
Nearby Transport
| Name | NLC | TLC | Distance |
|---|---|---|---|
| Nottingham | 1826 | NOT | 0.55 KM |
| Beeston | 1625 | BEE | 7.32 KM |
| Netherfield | 6241 | NET | 7.53 KM |
| Carlton | 6201 | CTO | 7.78 KM |
| Bulwell | 1865 | BLW | 8.53 KM |
Nearby Listings
| Address | Price | Type | Score | Distance |
|---|---|---|---|---|
| Bruce Close, Nottingham, NG2 | £ 110,000 | BUY | 6 / 10 | 0.00 KM |
| Arkwright Walk, Meadows, Nottingham | £ 255,000 | BUY | 6 / 10 | 0.09 KM |
| Flitterman Mews, Wilford Crescent East | £ 225,000 | BUY | 7 / 10 | 0.16 KM |
| Coach House, Flitterman Mews, Wilford Crescent East | £ 240,000 | BUY | Unknown | 0.16 KM |
| Lammas Gardens, The Meadows | £ 140,000 | BUY | 6 / 10 | 0.19 KM |
Nearby Properties
| Address | Price | Distance |
|---|---|---|
| 12 Bruce Close | £ 41,000 | 0.02 KM |
| 21 Bruce Close | £ 120,000 | 0.02 KM |
| 30 Bruce Close | £ 65,000 | 0.02 KM |
| 16 Bruce Close | £ 50,000 | 0.02 KM |
| 7 Bruce Close | £ 106,000 | 0.02 KM |