KA
The Marram, Westinghouse Close, Formby, Liverpool
By Karen Parks Sales and Lettings
£ 649,950
Reviews
3 out of 5 stars
Karen Parks Sales and Lettings says ..
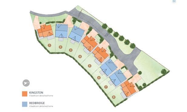
ONLY THREE PLOTS NOW REMAINING - The Marram is a luxurious development of 4-bedroom executive detached family homes by Liverpool based developer, Tower Grange homes. Located just two miles from the iconic National Trust Reserve at Formby Beach, and close to local shops, bars, restaurants, and rai...
Property Oracle says ..
Therefore, we give this property 7 / 10. *Disclaimer: This is our option and does constitute a recommendation or financial advice. Do your own research. *
- Price
- 5
- Condition
- 9
- Location
- 7
- Land
- 7
- Bedrooms
- 4
- Bathrooms
- 3
The heatmap indicates the level of crime in the area. The color of the heatmap indicates the crime severity and recency.
Metrics Year-on-Year
- Average area value
- 191,154.00 £Decreased by 45.17 %
- Average area rental value
- 1,267.00 £/moIncreased by 0.48 %
- Est rental Yield
- 7.95 %Increased by 83.18 %
- Crime Rate
- 9.00 %Unchanged by 0.00 %
from 348,637.00 £
from 1,261.00 £/mo
from 4.34 %
from 9.00 %
Agent Activity
Karen Parks Sales and Lettings created the listing.
Nearby Schools
| Name | Type | Ofsted | Distance |
|---|---|---|---|
| St Luke'S Church Of England Primary School | Voluntary Controlled School | Good | 1.39 KM |
| Range High School | Academy Converter | Requires improvement | 1.65 KM |
| Redgate Community Primary School | Community School | Good | 1.73 KM |
| Woodlands Primary School | Community School | Good | 1.80 KM |
| Formby High School | Academy Converter | 1.83 KM |
Images
Nearby Streets
| Name | Average Price | Average Sqft | Distance |
|---|---|---|---|
| Wheatstone Road | £ 564,338 | 0 | 0.00 KM |
| Osborne Road | £ 275,000 | 0 | 0.00 KM |
| Hampton Road | £ 0 | 0 | 0.00 KM |
| Kensington Road | £ 0 | 0 | 0.00 KM |
| Rostron Crescent | £ 0 | 0 | 0.00 KM |
Nearby Transport
| Name | NLC | TLC | Distance |
|---|---|---|---|
| Formby | 2354 | FBY | 1.13 KM |
| Hightown | 2356 | HTO | 2.38 KM |
| Freshfield | 2355 | FRE | 2.48 KM |
| Hall Road | 2229 | HLR | 5.54 KM |
| Ainsdale | 2350 | ANS | 6.90 KM |
Nearby Listings
| Address | Price | Type | Score | Distance |
|---|---|---|---|---|
| The Marram, Westinghouse Close, Formby, Liverpool | £ 649,950 | BUY | 7 / 10 | 0.00 KM |
| The Marram, Westinghouse Close, Formby, Liverpool | £ 649,950 | BUY | 7 / 10 | 0.00 KM |
| The Marram, Westinghouse Close, Formby, Liverpool | £ 649,950 | BUY | 7 / 10 | 0.00 KM |
| Wheatstone Road, Formby, Liverpool, L37 | £ 325,000 | BUY | 7 / 10 | 0.05 KM |
| Edison Close, Formby, Liverpool, L37 | £ 350,000 | BUY | Unknown | 0.05 KM |
Nearby Properties
| Address | Price | Distance |
|---|---|---|
| 15 Tesla Way | £ 6,623 | 0.08 KM |
| 5 Park Close | £ 207,500 | 0.14 KM |
| 2 Park Close | £ 178,000 | 0.14 KM |
| 4 Park Close | £ 195,000 | 0.14 KM |
| 4 Gilbert Close | £ 202,995 | 0.15 KM |