Moat Lane, Barton On Sea, Hampshire, BH25
By Pettengells Estate Agents
£ 650,000
Reviews
3 out of 5 stars
Pettengells Estate Agents says ..
This superb one-off brand new detached bungalow is currently under construction and will be ready for Winter 2024/25. Please note the computer generated visual is for representational purposes and does not show correct surroundings.
Property Oracle says ..
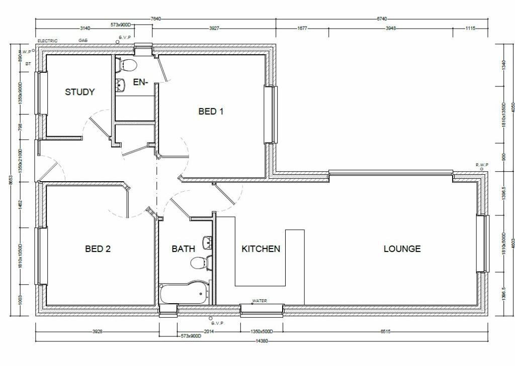
This new build detached bungalow in Barton on Sea, Hampshire, is marketed at £650,000. The property boasts two bedrooms and two bathrooms, and is described as a ‘superb one-off’ property. The location offers proximity to the coast, and the town of New Milton, which has various amenities including schools, transport links and shops. The artist’s impression shows the property having a modern, attractive design, with a garden which, though not extensive, is adequate. The price, while seemingly high, appears to be in line with other properties in the area, as far as can be gathered from the limited comparable property data provided. The lack of confirmed square footage for both the subject property and several nearby listings complicates an exact price per sqft analysis and a definitive pricing assessment. Overall, the property presents as a modern, well-located home, though potential buyers should carefully consider the price point and carry out independent research to confirm value for money. Due to the absence of concrete information and the fact that the image provided is a rendering of a property still under construction an accurate assessment is hampered.
Therefore, we give this property 7 / 10. *Disclaimer: This is our option and does constitute a recommendation or financial advice. Do your own research. *
- Price
- 7
- Condition
- 8
- Location
- 7
- Land
- 6
- Bedrooms
- 2
- Bathrooms
- 2
- Sqft (est)
- 780.00
The heatmap indicates the level of crime in the area. The color of the heatmap indicates the crime severity and recency.
Metrics Year-on-Year
- Average area value
- 402,678.00 £Increased by 11.07 %
- Est sale value
- 292,500.00 £Increased by 19.05 %
- Average area rental value
- 1,017.00 £/moDecreased by 9.28 %
- Est letting value
- 0.00 £/mo
- Est rental Yield
- 3.03 %Decreased by 18.33 %
- Crime Rate
- 1.00 %Unchanged by 0.00 %
Agent Activity
Pettengells Estate Agents marked this listing as sold.
Pettengells Estate Agents created the listing.
Nearby Schools
| Name | Type | Ofsted | Distance |
|---|---|---|---|
| New Milton Infant School | Community School | Outstanding | 0.35 KM |
| New Milton Junior School | Community School | Good | 0.39 KM |
| The Arnewood School | Academy Converter | Good | 0.63 KM |
| The Phoenix Children And Young People'S Centre | Children's Centre | 0.77 KM | |
| Durlston Court School | Other Independent School | 0.87 KM |
Images
Nearby Streets
| Name | Average Price | Average Sqft | Distance |
|---|---|---|---|
| Moat Lane | £ 650,000 | 0 | 0.00 KM |
| The Meadows | £ 0 | 0 | 0.00 KM |
| Lymington Road | £ 0 | 0 | 0.00 KM |
| Friars Walk | £ 649,950 | 0 | 0.00 KM |
| Christchurch Road | £ 313,300 | 0 | 0.00 KM |
Nearby Transport
| Name | NLC | TLC | Distance |
|---|---|---|---|
| New Milton | 5881 | NWM | 1.28 KM |
| Hinton Admiral | 5880 | HNA | 5.79 KM |
| Sway | 5884 | SWY | 7.27 KM |
Nearby Listings
| Address | Price | Type | Score | Distance |
|---|---|---|---|---|
| Moat Lane, Barton On Sea, Hampshire, BH25 | £ 650,000 | BUY | 7 / 10 | 0.00 KM |
| Moat Lane, Barton on Sea, New Milton, Hampshire, BH25 | £ 635,000 | BUY | Unknown | 0.00 KM |
| Albany Close, Barton on Sea, New Milton, Hampshire, BH25 | £ 1,000,000 | BUY | 7 / 10 | 0.06 KM |
| Moat Lane, Barton on Sea, New Milton, Hampshire, BH25 | £ 575,000 | BUY | 7 / 10 | 0.08 KM |
| Edmunds Close, Barton on Sea, New Milton, Hampshire, BH25 | £ 650,000 | BUY | 7 / 10 | 0.12 KM |
Nearby Properties
| Address | Price | Distance |
|---|---|---|
| 8 Albany Close | £ 755,000 | 0.03 KM |
| 17 Albany Close | £ 365,000 | 0.03 KM |
| 15 Albany Close | £ 645,000 | 0.03 KM |
| 6 Albany Close | £ 415,000 | 0.03 KM |
| 9 Albany Close | £ 441,500 | 0.03 KM |