Sandsend Road, Sandsend, YO21
By Henderson Property Services
£ 799,950
Reviews
3 out of 5 stars
Henderson Property Services says ..
Location, location, location is what all the tv experts say and Chine Cottage has this box well and truly ticked, with its uninterrupted sea views on offer and outstanding quality this property won’t be on the market for long
Property Oracle says ..
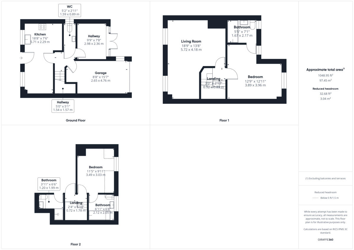
This property is a 4 bedroom, 3 bathroom semi-detached house located in Sandsend, North Yorkshire. The property is modern and well-maintained, boasting a contemporary design and finishes. It benefits from a small rear garden and is situated on Sandsend Road, offering a desirable coastal location. The average house price in the area is £321,811, with an average price per sqft of £280. This property is listed at £799,950, which is significantly higher than the average. However, given its prime beachfront location and modern condition, the price may be justified for buyers seeking a luxury coastal property. The proximity to local amenities, transportation links, and schools adds to its appeal. The lack of plot size data limits a full assessment of land value.
Therefore, we give this property 7 / 10. *Disclaimer: This is our option and does constitute a recommendation or financial advice. Do your own research. *
- Price
- 7
- Condition
- 9
- Location
- 10
- Land
- 3
- Bedrooms
- 4
- Bathrooms
- 3
- Sqft (est)
- 1,048.95
The heatmap indicates the level of crime in the area. The color of the heatmap indicates the crime severity and recency.
Metrics Year-on-Year
- Average area value
- 49,500.00 £Decreased by 76.92 %
- Est sale value
- 52,447.50 £Decreased by 76.85 %
- Average area rental value
- 1,006.00 £/moIncreased by 19.34 %
- Est letting value
- 1,048.95 £/mo
- Est rental Yield
- 24.39 %Increased by 416.74 %
- Crime Rate
- 417.00 %Unchanged by 0.00 %
Agent Activity
Henderson Property Services created the listing.
Nearby Schools
| Name | Type | Ofsted | Distance |
|---|---|---|---|
| Lythe Church Of England Voluntary Controlled Primary School | Voluntary Controlled School | Good | 3.37 KM |
| Stakesby Primary Academy | Academy Converter | 4.49 KM | |
| Whitby & The Moors Children'S Centre | Children's Centre | 4.49 KM | |
| International Christian Language School For Functional English | Miscellaneous | 5.16 KM | |
| Caedmon College Whitby | Community School | Good | 5.18 KM |
Images
Nearby Streets
| Name | Average Price | Average Sqft | Distance |
|---|---|---|---|
| The Parade | £ 431,332 | 0 | 0.00 KM |
| Teapot Hill | £ 1,100,000 | 0 | 0.00 KM |
| The Croft | £ 0 | 0 | 0.00 KM |
Nearby Transport
| Name | NLC | TLC | Distance |
|---|---|---|---|
| Sleights | 8179 | SLH | 4.42 KM |
| Ruswarp | 8174 | RUS | 5.52 KM |
| Whitby | 8184 | WTB | 6.01 KM |
| Grosmont | 8155 | GMT | 9.59 KM |
Nearby Listings
| Address | Price | Type | Score | Distance |
|---|---|---|---|---|
| Sandsend Road, Sandsend, YO21 | £ 799,950 | BUY | 7 / 10 | 0.00 KM |
| Ness View, East Row, Sandsend, Whitby, North Yorkshire, YO21 3SU | £ 550,000 | BUY | 7 / 10 | 0.06 KM |
| Ness View, East Row, Sandsend, Whitby, North Yorkshire, YO21 3SU | £ 600,000 | BUY | 7 / 10 | 0.06 KM |
| Sandsend, Whitby, YO21 | £ 450,000 | BUY | 6 / 10 | 0.21 KM |
| Sandsend, Whitby, YO21 | £ 725,000 | BUY | 6 / 10 | 0.21 KM |
Nearby Properties
| Address | Price | Distance |
|---|---|---|
| Langholm | £ 340,000 | 0.21 KM |
| Norwood | £ 425,000 | 0.21 KM |
| Haywood | £ 440,000 | 0.21 KM |
| Daleside | £ 350,000 | 0.21 KM |
| 24 Meadowfields | £ 566,000 | 0.21 KM |