Juniper, Bracknell, Berkshire, RG12
By Prospect Estate Agency
£ 235,000
Reviews
3 out of 5 stars
Prospect Estate Agency says ..
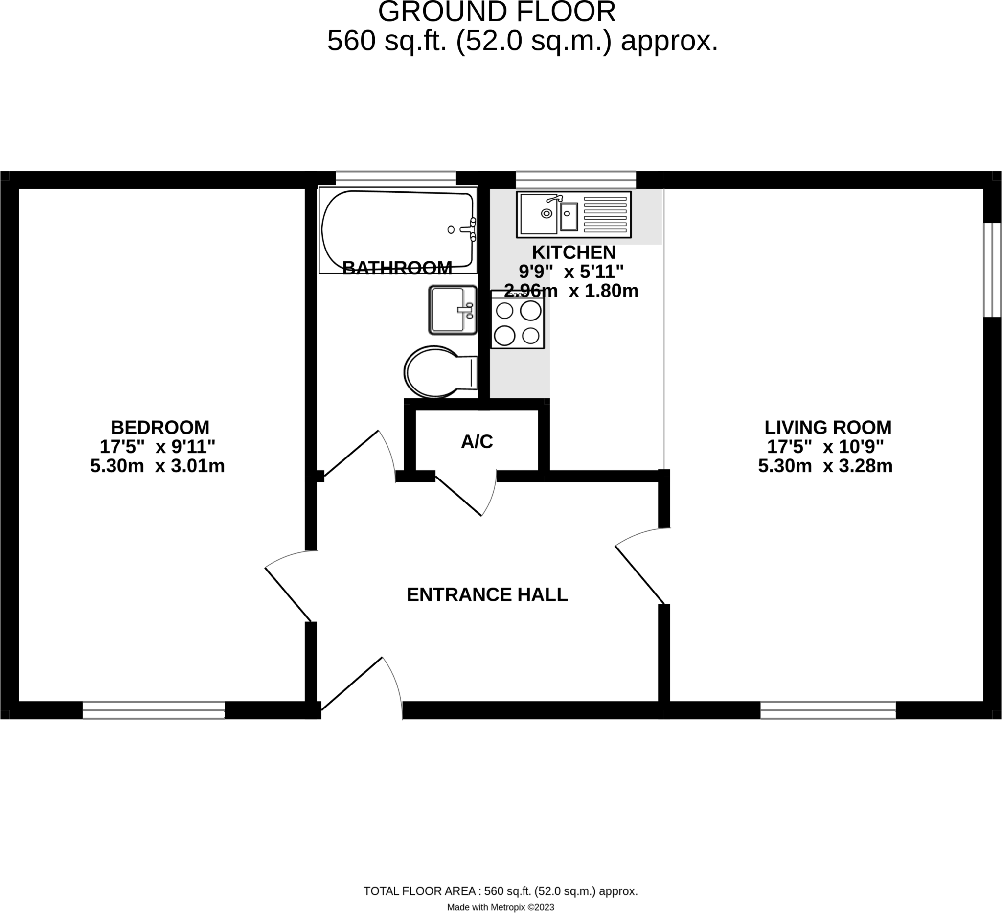
This spacious one-bedroom maisonette is situated in the sought after area of birch hill and offers parking and a garage. The property comprises double bedroom, three-piece family bathroom, triple aspect living/dining room, modern kitchen. Externally, is a private, low maint...
Property Oracle says ..
This maisonette is located in Bracknell, Berkshire, and is listed at £235,000. The property has one bedroom and one bathroom, and is 460 sqft with a 560 sqft plot. The average price for properties in the area is £370,760, with an average price per sqft of £428. This property is significantly below average in price per sqft, suggesting it may be undervalued. However, this could be due to its size or condition. The property benefits from being close to several primary schools with good Ofsted ratings, and several train stations are within a reasonable distance. The property appears to be in good condition based on the images provided, with a modern kitchen and bathroom. There is also a garden, though its size is not specified. The property appears to be a good value for money, but more information on the condition of the property and the local market would be needed to make a definitive statement.
Therefore, we give this property 7 / 10. *Disclaimer: This is our option and does constitute a recommendation or financial advice. Do your own research. *
- Price
- 9
- Condition
- 8
- Location
- 7
- Land
- 6
- Bedrooms
- 1
- Bathrooms
- 1
- Sqft (est)
- 460.00
- Lot (est)
- 560.00
The heatmap indicates the level of crime in the area. The color of the heatmap indicates the crime severity and recency.
Metrics Year-on-Year
- Average area value
- 496,490.00 £Increased by 20.13 %
- Est sale value
- 78,200.00 £Decreased by 55.15 %
- Average area rental value
- 2,027.00 £/moIncreased by 19.94 %
- Est letting value
- 0.00 £/moDecreased by 100.00 %
- Est rental Yield
- 4.90 %Decreased by 0.20 %
- Crime Rate
- 4.00 %Unchanged by 0.00 %
Agent Activity
Prospect Estate Agency marked this listing as sold.
Prospect Estate Agency created the listing.
Nearby Schools
| Name | Type | Ofsted | Distance |
|---|---|---|---|
| Birch Hill Primary School | Community School | Good | 0.39 KM |
| Fox Hill Primary School | Community School | Good | 1.72 KM |
| The Pines School | Community School | Requires improvement | 1.74 KM |
| Crown Wood Primary School | Academy Converter | 1.76 KM | |
| Rowans And Sycamores Children'S Centre | Children's Centre | 1.79 KM |
Images
Nearby Streets
| Name | Average Price | Average Sqft | Distance |
|---|---|---|---|
| Leppington | £ 180,000 | 0 | 0.00 KM |
| Frobisher cycle path | £ 0 | 0 | 0.00 KM |
| A322 | £ 0 | 0 | 0.00 KM |
| Milton Close | £ 0 | 0 | 0.00 KM |
| Hanworth Road | £ 0 | 0 | 0.00 KM |
Nearby Transport
| Name | NLC | TLC | Distance |
|---|---|---|---|
| Bracknell | 5693 | BCE | 2.82 KM |
| Martins Heron | 5692 | MAO | 3.50 KM |
| Camberley | 5682 | CAM | 5.76 KM |
| Blackwater | 5625 | BAW | 6.96 KM |
| Bagshot | 5681 | BAG | 7.19 KM |
Nearby Listings
| Address | Price | Type | Score | Distance |
|---|---|---|---|---|
| Juniper, Bracknell, Berkshire, RG12 | £ 235,000 | BUY | 7 / 10 | 0.00 KM |
| Juniper, Bracknell, Berkshire, RG12 | £ 425,000 | BUY | 7 / 10 | 0.00 KM |
| Juniper, Bracknell, Berkshire, RG12 | £ 460,000 | BUY | 7 / 10 | 0.00 KM |
| Juniper, Bracknell, Berkshire, RG12 | £ 415,000 | BUY | 7 / 10 | 0.10 KM |
| Juniper, Birch Hill, Bracknell | £ 270,000 | BUY | 6 / 10 | 0.12 KM |
Nearby Properties
| Address | Price | Distance |
|---|---|---|
| 94 Juniper | £ 110,000 | 0.02 KM |
| 101 Juniper | £ 285,000 | 0.02 KM |
| 95 Juniper | £ 285,000 | 0.02 KM |
| 86 Juniper | £ 288,000 | 0.02 KM |
| 104 Juniper | £ 322,500 | 0.02 KM |