Hames Estates says ..
This bright semi detached villa has been extended by the current owners and offers spacious and flexible living accommodation. Station Avenue is a popular spot in the village of Howwood which has local amenities and a regular rail service.
Property Oracle says ..
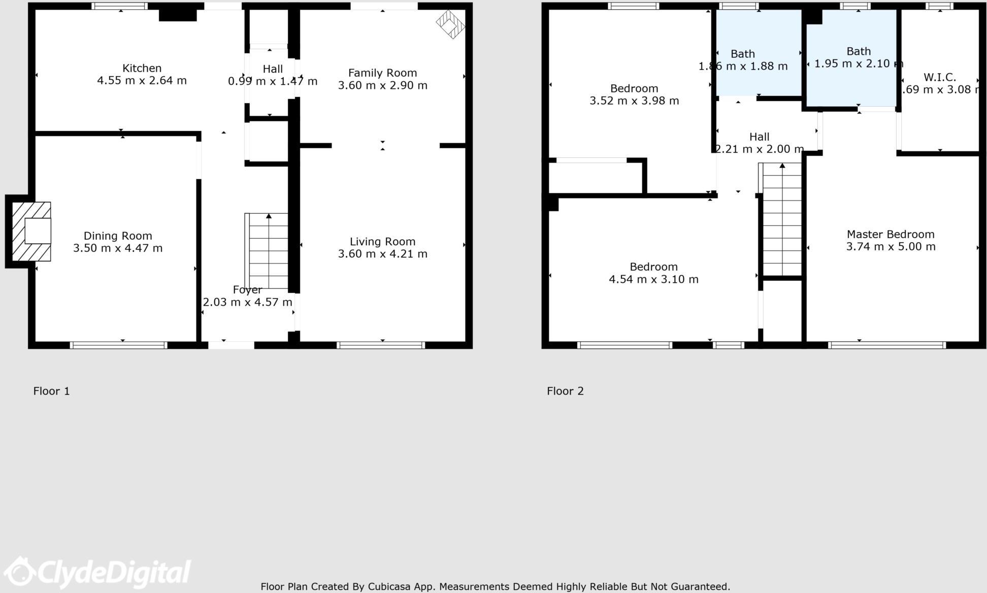
This four-bedroom, two-bathroom semi-detached house in Howwood, Renfrewshire offers a blend of convenience and modern comfort. Its key advantage is its location on Station Avenue, providing easy access to Howwood Train Station which is within walking distance. The interior showcases recent renovations or updates to the kitchen and bathroom. These modern features greatly enhance the overall appeal of the property. The photos reveal a well-maintained property with a contemporary feel. The living areas are spacious and feature modern flooring. A feature fireplace also adds to the aesthetic appeal. The kitchen is bright, well-equipped, and benefits from an updated design. While the bathrooms are clean, they appear to be slightly dated compared to the rest of the house. A modest-sized garden, also seen in the photographs, is a welcome addition but does not offer extensive outdoor space. The price of £190,000 appears generally reasonable for a property of this type in the area. While the average price for Station Avenue is lower, the proximity to the train station and recent renovations may justify the slightly higher listing price when compared to other properties nearby. More detailed data on local comparable properties is required to perform a more comprehensive valuation analysis. The lack of information on schools in the immediate vicinity presents a slight drawback, although access to the train station partially compensates for this.
Therefore, we give this property 6 / 10. *Disclaimer: This is our option and does constitute a recommendation or financial advice. Do your own research. *
- Price
- 7
- Condition
- 8
- Location
- 7
- Land
- 3
- Bedrooms
- 4
- Bathrooms
- 2
- Sqft (est)
- 957.67
The heatmap indicates the level of crime in the area. The color of the heatmap indicates the crime severity and recency.
Metrics Year-on-Year
- Average area value
- 250,000.00 £Decreased by 10.99 %
- Est sale value
- 296,877.70 £Decreased by 0.96 %
- Average area rental value
- 900.00 £/moDecreased by 18.03 %
- Est letting value
- 957.67 £/moUnchanged by 0.00 %
- Est rental Yield
- 4.32 %Decreased by 7.89 %
- Crime Rate
- 0.00 %
Agent Activity
Hames Estates created the listing.
Images
Nearby Streets
| Name | Average Price | Average Sqft | Distance |
|---|---|---|---|
| Station Avenue | £ 115,000 | 0 | 0.00 KM |
| New Avenue | £ 0 | 0 | 0.00 KM |
| Carsewood Avenue | £ 0 | 0 | 0.00 KM |
| Semple View | £ 0 | 0 | 0.00 KM |
Nearby Transport
| Name | NLC | TLC | Distance |
|---|---|---|---|
| Howwood (Renfrewshire) | 1734 | HOZ | 0.15 KM |
| Milliken Park | 9658 | MIN | 3.53 KM |
| Lochwinnoch | 9655 | LHW | 6.54 KM |
| Johnstone (Renfrewshire) | 9648 | JHN | 6.96 KM |
Nearby Listings
| Address | Price | Type | Score | Distance |
|---|---|---|---|---|
| 9 Station Avenue, Howwood, PA9 1AZ | £ 125,000 | BUY | 7 / 10 | 0.01 KM |
| 15 New Avenue, Howwood, PA9 1BD | £ 165,000 | BUY | 7 / 10 | 0.25 KM |
| Beith Road, Howwood, PA9 | £ 425,000 | BUY | 7 / 10 | 0.26 KM |
| 39 Earlshill Drive, Howwood | £ 279,995 | BUY | 7 / 10 | 0.28 KM |
| Thornbrae, 5 George Street, Howwood, PA9 1AR | £ 335,000 | BUY | 7 / 10 | 0.33 KM |