Carlton Street, Otley, LS21
HU

Carlton Street, Otley, LS21

By Hunters

£ 200,000

Reviews

3 out of 5 stars

Hunters says ..

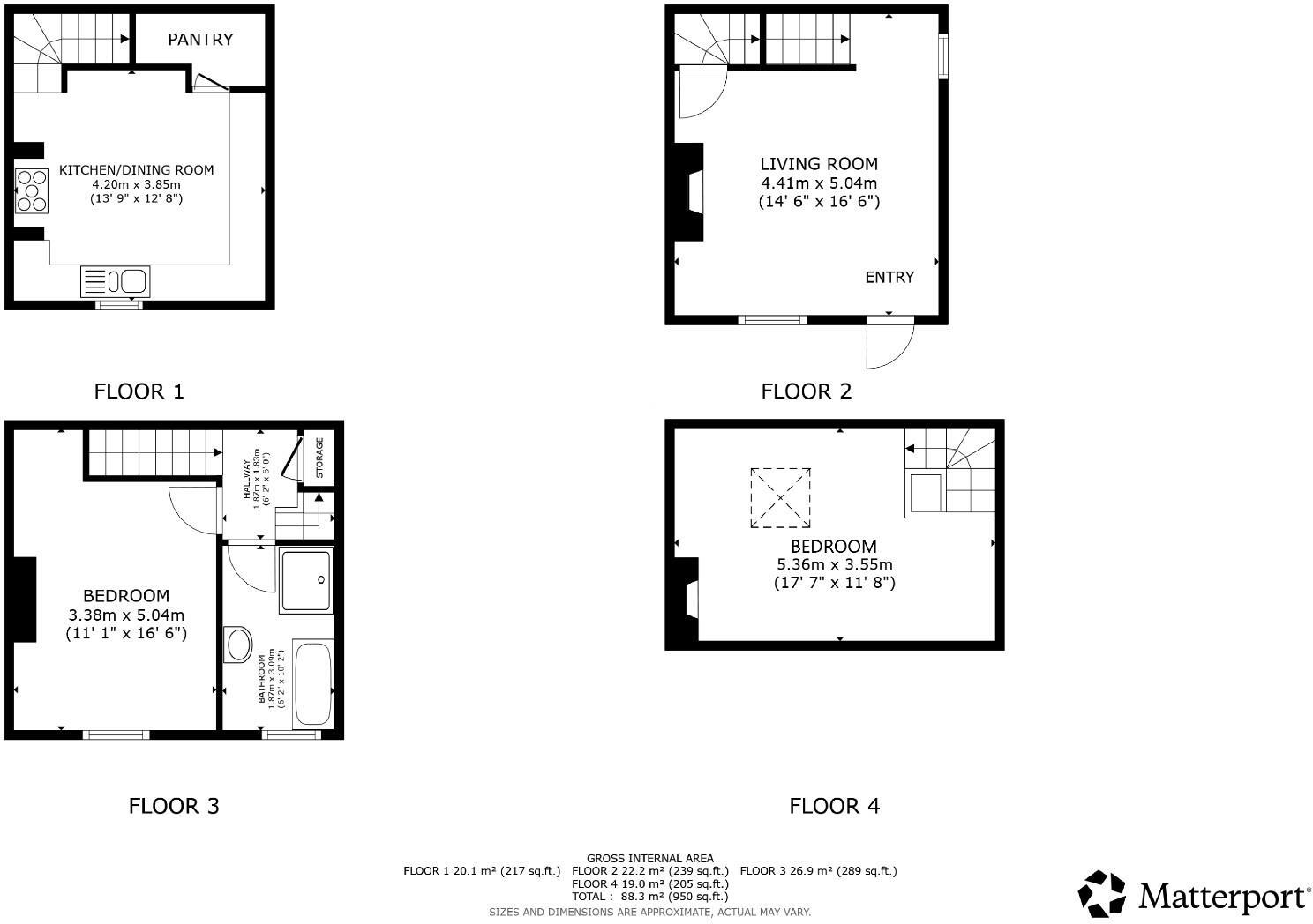
A charming two bedroom character stone terrace in the centre of Otley town . Set over four floors, the property is well proportioned throughout. The living room on the ground floor has a beautiful feature fireplace, the kitchen is located on the lower ground floor, the style is simple ...

Property Oracle says ..

This terraced property on Carlton Street in Otley presents a good opportunity for buyers seeking a well-located home with character. The property boasts a spacious layout, a modern kitchen and bathroom, and a garden. While some areas may benefit from cosmetic improvements, the overall condition is good. The location is ideal, with easy access to local amenities, schools, and transportation links. The price appears competitive compared to other properties in the area, making it an attractive option for first-time buyers, families, or investors.

Therefore, we give this property 7 / 10. *Disclaimer: This is our option and does constitute a recommendation or financial advice. Do your own research. *

Price
8
Condition
7
Location
7
Land
6
Bedrooms
2
Bathrooms
1
Sqft (est)
1,455.28

The heatmap indicates the level of crime in the area. The color of the heatmap indicates the crime severity and recency.

Metrics Year-on-Year

Average area value
353,462.00 £
Increased by 18.49 %
from 298,303.00 £
Est sale value
443,860.40 £
Decreased by 8.41 %
from 484,608.24 £
Average area rental value
1,110.00 £/mo
Decreased by 0.09 %
from 1,111.00 £/mo
Est letting value
0.00 £/mo
Decreased by 100.00 %
from 1,455.28 £/mo
Est rental Yield
3.77 %
Decreased by 15.66 %
from 4.47 %
Crime Rate
31.00 %
Unchanged by 0.00 %
from 31.00 %

Agent Activity

  • Hunters created the listing.

Nearby Schools

NameTypeOfstedDistance
Otley Children'S CentreChildren's Centre0.31 KM
St Joseph'S Catholic Primary School, OtleyAcademy ConverterGood0.74 KM
Otley All Saints Cofe Primary SchoolVoluntary Controlled SchoolGood0.75 KM
Otley Prince Henry'S Grammar School Specialist Language CollegeAcademy ConverterGood1.23 KM
Otley The Whartons Primary SchoolCommunity SchoolGood1.65 KM

Images

pbox-IMG.jpg 58-Carlton-Street-11142025_085931.jpg 58-Carlton-Street-11142025_090029.jpg 58-Carlton-Street-11142025_090202.jpg 58-Carlton-Street-11142025_090310.jpg 58-Carlton-Street-11142025_090440.jpg pbox-IMG.jpg 58-Carlton-Street-11142025_090349.jpg 58-Carlton-Street-11142025_085957.jpg 58-Carlton-Street-11142025_090102.jpg 58-Carlton-Street-Bathroom.jpg

Nearby Streets

NameAverage PriceAverage SqftDistance
Carlton Street £ 221,50000.00 KM
Fairfax Street £ 239,95000.00 KM
South Parade £ 256,65000.00 KM
Craven Street £ 170,00000.00 KM
Croft Street £ 225,00000.00 KM

Nearby Transport

NameNLCTLCDistance
Guiseley8567GSY4.22 KM
Menston8574MNN5.35 KM
Apperley Bridge8562APY7.09 KM
Burley-In-Wharfedale8565BUW7.21 KM
Horsforth8499HRS8.90 KM

Nearby Listings

AddressPriceTypeScoreDistance
Carlton Street, Otley, LS21 £ 200,000BUY7 / 100.00 KM
Carlton Street, Otley, West Yorkshire, LS21 £ 250,000BUY6 / 100.02 KM
Carlton Street, Otley, West Yorkshire, LS21 £ 240,000BUY6 / 100.02 KM
Carlton Street, Otley, LS21 £ 249,500BUY7 / 100.03 KM
Carlton Street, Otley £ 250,000BUY7 / 100.04 KM

Nearby Properties

AddressPriceDistance
2 Almscliffe Terrace £ 235,0000.04 KM
1 Almscliffe Terrace £ 225,0000.04 KM
18 Carlton Street £ 228,0000.04 KM
24 Carlton Street £ 165,0000.04 KM
52 Carlton Street £ 133,5000.04 KM