Oscar James says ..
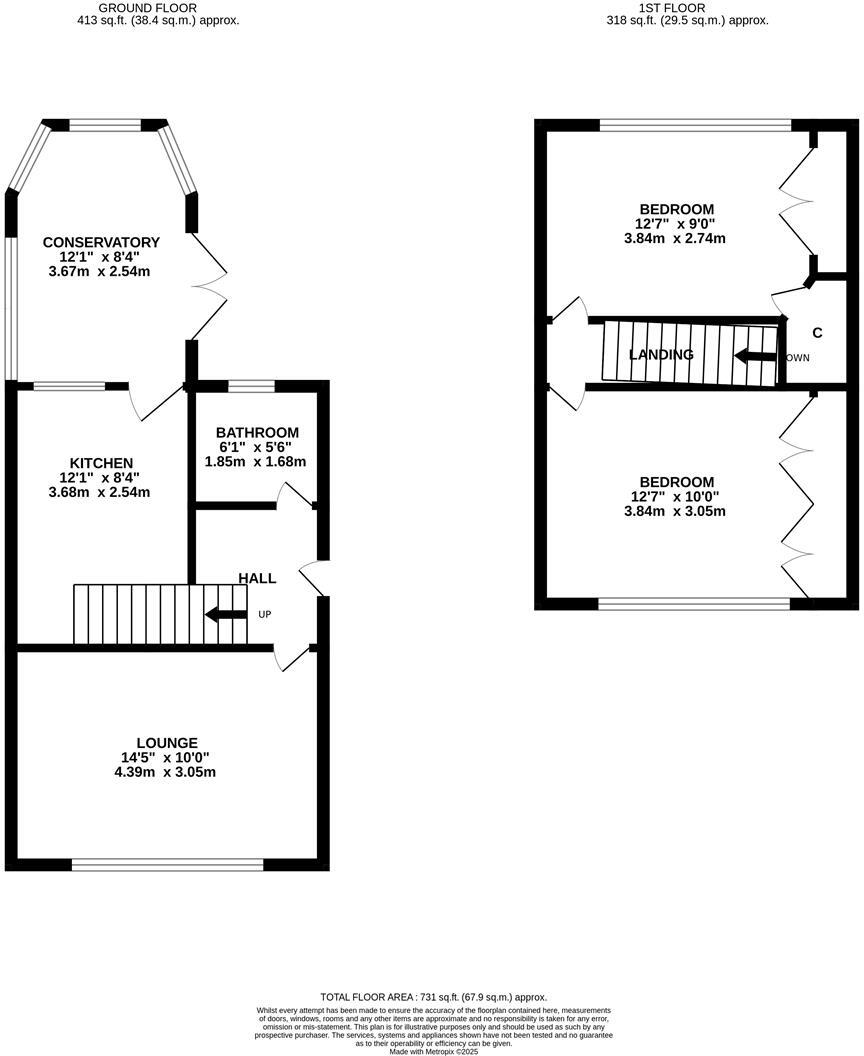
** SOLD PRIOR TO MARKETING ** Nestled in the popular town of Burton Latimer, this beautifully renovated two-bedroom semi-detached property offers stylish and comfortable living, complete with off-road parking and a stunning landscaped garden. Step inside and you're welcomed by a...
Property Oracle says ..
Therefore, we give this property 7 / 10. *Disclaimer: This is our option and does constitute a recommendation or financial advice. Do your own research. *
- Price
- 6
- Condition
- 8
- Location
- 7
- Land
- 7
- Bedrooms
- 2
- Bathrooms
- 2
- Sqft (est)
- 618.06
The heatmap indicates the level of crime in the area. The color of the heatmap indicates the crime severity and recency.
Metrics Year-on-Year
- Average area value
- 258,393.00 £Decreased by 17.79 %
- Est sale value
- 186,654.12 £Increased by 26.36 %
- Average area rental value
- 1,025.00 £/moDecreased by 30.37 %
- Est letting value
- 618.06 £/moUnchanged by 0.00 %
- Est rental Yield
- 4.76 %Decreased by 15.30 %
- Crime Rate
- 6.00 %Unchanged by 0.00 %
from 314,301.00 £
from 147,716.34 £
from 1,472.00 £/mo
from 618.06 £/mo
from 5.62 %
from 6.00 %
Agent Activity
Oscar James marked this listing as sold.
Oscar James created the listing.
Nearby Schools
| Name | Type | Ofsted | Distance |
|---|---|---|---|
| Meadowside Primary School | Community School | Requires improvement | 0.18 KM |
| Burton Latimer Library And Children'S Centre | Children's Centre | 0.85 KM | |
| St. Marys Cofe Primary School | Academy Converter | 0.95 KM | |
| Isham Church Of England Primary School | Academy Converter | 1.54 KM | |
| Barton Seagrave Primary School | Community School | Good | 2.18 KM |
Images
Nearby Streets
| Name | Average Price | Average Sqft | Distance |
|---|---|---|---|
| Glebe Road | £ 0 | 0 | 0.00 KM |
| Gardner Road | £ 0 | 0 | 0.00 KM |
| South Avenue | £ 0 | 0 | 0.00 KM |
| Hawthorn Road | £ 0 | 0 | 0.00 KM |
| Pigott's Lane | £ 0 | 0 | 0.00 KM |
Nearby Transport
| Name | NLC | TLC | Distance |
|---|---|---|---|
| Kettering | 1857 | KET | 6.04 KM |
| Wellingborough | 1940 | WEL | 6.59 KM |
Nearby Listings
| Address | Price | Type | Score | Distance |
|---|---|---|---|---|
| Conway Drive, Burton Latimer | £ 210,000 | BUY | 7 / 10 | 0.00 KM |
| Conway Drive, Burton Latimer | £ 210,000 | BUY | 7 / 10 | 0.04 KM |
| Shannon Way, Burton Latimer | £ 260,000 | BUY | 7 / 10 | 0.07 KM |
| Isebrook Court, Burton Latimer, Kettering | £ 290,000 | BUY | 6 / 10 | 0.08 KM |
| Isebrook Court, Burton Latimer | £ 240,000 | BUY | 7 / 10 | 0.08 KM |
Nearby Properties
| Address | Price | Distance |
|---|---|---|
| 16 Conway Drive | £ 101,950 | 0.01 KM |
| 1 Conway Drive | £ 192,500 | 0.01 KM |
| 15 Conway Drive | £ 125,000 | 0.01 KM |
| 5 Conway Drive | £ 205,000 | 0.01 KM |
| 8 Conway Drive | £ 139,950 | 0.01 KM |