CENTRAL DORKING, RH4
PA

CENTRAL DORKING, RH4

By Patrick Gardner

£ 365,000

Reviews

3 out of 5 stars

Patrick Gardner says ..

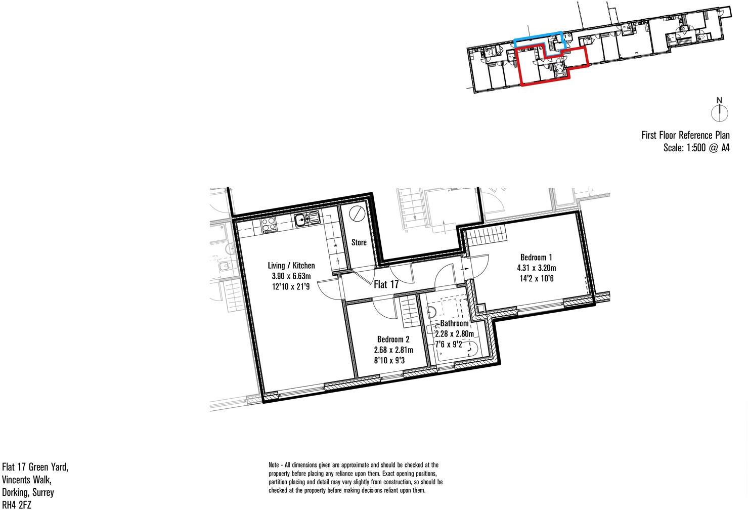
*SPACIOUS TWO BEDROOM FIRST FLOOR APARTMENT* Plot 17 is a generously sized two-bedroom apartment located on the first floor of the highly regarded Green Yard development in Dorking. The apartment features a large open-plan kitchen/living area, a spacious principal bedroom, a comfortable ...

Property Oracle says ..

This is a modern two-bedroom apartment located in Dorking South. The property appears to be in excellent condition, with a recently renovated interior. While it has a small outdoor area, it lacks a substantial garden. The location is convenient, with nearby schools and transportation links. However, the price per square foot is slightly above the local average, suggesting it may be a bit overpriced.

Therefore, we give this property 6 / 10. *Disclaimer: This is our option and does constitute a recommendation or financial advice. Do your own research. *

Price
7
Condition
9
Location
7
Land
3
Bedrooms
2
Bathrooms
1
Sqft (est)
576.56

The heatmap indicates the level of crime in the area. The color of the heatmap indicates the crime severity and recency.

Metrics Year-on-Year

Average area value
304,767.00 £
Decreased by 41.06 %
from 517,113.00 £
Est sale value
269,830.08 £
Increased by 2.18 %
from 264,064.48 £
Average area rental value
1,483.00 £/mo
Increased by 8.33 %
from 1,369.00 £/mo
Est letting value
1,153.12 £/mo
Increased by 100.00 %
from 576.56 £/mo
Est rental Yield
5.84 %
Increased by 83.65 %
from 3.18 %
Crime Rate
13.00 %
Unchanged by 0.00 %
from 13.00 %

Agent Activity

  • Patrick Gardner created the listing.

Nearby Schools

NameTypeOfstedDistance
St Joseph'S Catholic Primary SchoolVoluntary Aided SchoolGood0.06 KM
Dorking Nursery SchoolLocal Authority Nursery SchoolOutstanding0.33 KM
Dorking Nursery School Sure Start Children'S CentreChildren's Centre0.36 KM
The Priory Cofe Voluntary Aided SchoolVoluntary Aided SchoolGood0.57 KM
Powell Corderoy Primary SchoolVoluntary Controlled SchoolGood0.91 KM

Images

19-Green-Yard-4.jpg 19-Green-Yard-18.jpg 19-Green-Yard-19.jpg 19-Green-Yard-16.jpg 19-Green-Yard-17.jpg 19-Green-Yard-11.jpg 19-Green-Yard-12.jpg 19-Green-Yard-13.jpg 19-Green-Yard-14.jpg 19-Green-Yard-10.jpg 19-Green-Yard-6.jpg 19-Green-Yard-8.jpg No.17-GreenYard-Jan25-9807.jpg No.17-GreenYard-Jan25-9798.jpg No.17-GreenYard-Jan25-9802.jpg No.17-GreenYard-Jan25-9804.jpg

Nearby Streets

NameAverage PriceAverage SqftDistance
Sun Row £ 199,95000.00 KM
FP103 £ 000.00 KM
FP102 £ 000.00 KM
Queen's Crescent £ 000.00 KM
Dyson Court £ 000.00 KM

Nearby Transport

NameNLCTLCDistance
Dorking West5297DKT0.96 KM
Dorking (Deepdene)5412DPD1.77 KM
Dorking5357DKG1.97 KM
Box Hill And Westhumble5403BXW3.00 KM
Holmwood5308HLM5.53 KM

Nearby Listings

AddressPriceTypeScoreDistance
CENTRAL DORKING, RH4 £ 365,000BUY6 / 100.00 KM
Vincent Lane, Dorking, Surrey, RH4 £ 395,000BUY6 / 100.00 KM
VINCENT LANE, DORKING, RH4 £ 450,000BUY8 / 100.01 KM
Vincent Lane, Dorking, Surrey £ 281,000BUY6 / 100.04 KM
Vincent Lane, Dorking £ 450,000BUY5 / 100.04 KM

Nearby Properties

AddressPriceDistance
4 Vincent Lane £ 221,5000.04 KM
16 Vincent Lane £ 56,0000.04 KM
1 Vincent Lane £ 480,0000.04 KM
14 Vincent Lane £ 432,5000.04 KM
15 Vincent Lane £ 438,0000.04 KM