BA
Hurricane Road, WEST MALLING
By Barnard Marcus
£ 235,000
Reviews
2 out of 5 stars
Barnard Marcus says ..
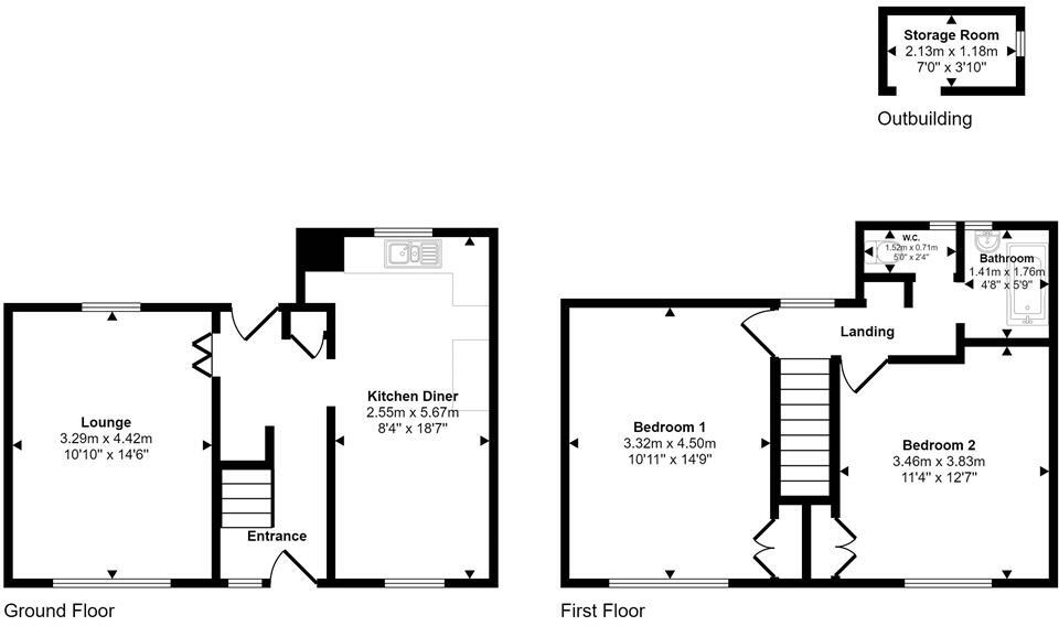
AUCTION SALE 29 July 2025 - Freehold two floor semi-detached terrace house requiring modernisationFull vacant possession
Property Oracle says ..
Therefore, we give this property 4 / 10. *Disclaimer: This is our option and does constitute a recommendation or financial advice. Do your own research. *
- Price
- 7
- Condition
- 2
- Location
- 7
- Land
- 3
- Bedrooms
- 2
- Bathrooms
- 1
- Sqft (est)
- 680.82
The heatmap indicates the level of crime in the area. The color of the heatmap indicates the crime severity and recency.
Metrics Year-on-Year
- Average area value
- 562,188.00 £Increased by 0.28 %
- Est sale value
- 421,427.58 £Increased by 40.68 %
- Average area rental value
- 2,283.00 £/moIncreased by 15.48 %
- Est letting value
- 1,361.64 £/moIncreased by 100.00 %
- Est rental Yield
- 4.87 %Increased by 15.13 %
- Crime Rate
- 19.00 %Unchanged by 0.00 %
from 560,625.00 £
from 299,560.80 £
from 1,977.00 £/mo
from 680.82 £/mo
from 4.23 %
from 19.00 %
Agent Activity
Barnard Marcus created the listing.
Nearby Schools
| Name | Type | Ofsted | Distance |
|---|---|---|---|
| Valley Invicta Primary School At Kings Hill | Academy Sponsor Led | Good | 1.23 KM |
| Kings Hill School Primary And Nursery | Community School | Good | 1.29 KM |
| Offham Primary School | Community School | Outstanding | 2.53 KM |
| Mereworth Community Primary School | Community School | Good | 2.56 KM |
| West Malling Church Of England Primary School And Mcginty Speech And Language Centre | Academy Converter | Good | 3.29 KM |
Images
Nearby Streets
| Name | Average Price | Average Sqft | Distance |
|---|---|---|---|
| Malling Road | £ 0 | 0 | 0.00 KM |
| Malling Road | £ 0 | 0 | 0.00 KM |
| Churchill Square | £ 0 | 0 | 0.00 KM |
| Abbey Wood Road | £ 0 | 0 | 0.00 KM |
| Ashton Way | £ 1,065,000 | 0 | 0.00 KM |
Nearby Transport
| Name | NLC | TLC | Distance |
|---|---|---|---|
| West Malling | 5129 | WMA | 4.06 KM |
| Wateringbury | 5241 | WTR | 4.73 KM |
| Yalding | 5232 | YAL | 5.92 KM |
| East Malling | 5134 | EML | 5.94 KM |
| Beltring | 5227 | BEG | 7.87 KM |
Nearby Listings
| Address | Price | Type | Score | Distance |
|---|---|---|---|---|
| Hurricane Road, WEST MALLING | £ 235,000 | BUY | 4 / 10 | 0.00 KM |
| Hurricane Road, WEST MALLING | £ 235,000 | BUY | 5 / 10 | 0.00 KM |
| Javelin Road, West Malling, Kent | £ 350,000 | BUY | Unknown | 0.16 KM |
| Land at Malling Road, West Malling, Kent, ME19 | £ 10,000 | BUY | 6 / 10 | 0.20 KM |
| Mosquito Road, West Malling, ME19 | £ 325,000 | BUY | 7 / 10 | 0.23 KM |
Nearby Properties
| Address | Price | Distance |
|---|---|---|
| 10 Hurricane Road | £ 46,000 | 0.00 KM |
| 2 Hurricane Road | £ 177,000 | 0.00 KM |
| 4 Hurricane Road | £ 183,500 | 0.00 KM |
| 9 Spitfire Road | £ 315,000 | 0.04 KM |
| 10 Spitfire Road | £ 160,000 | 0.04 KM |