North End Road, Wembley, Middlesex, HA9
By LANSHA LTD
£ 570,000
Reviews
4 out of 5 stars
LANSHA LTD says ..
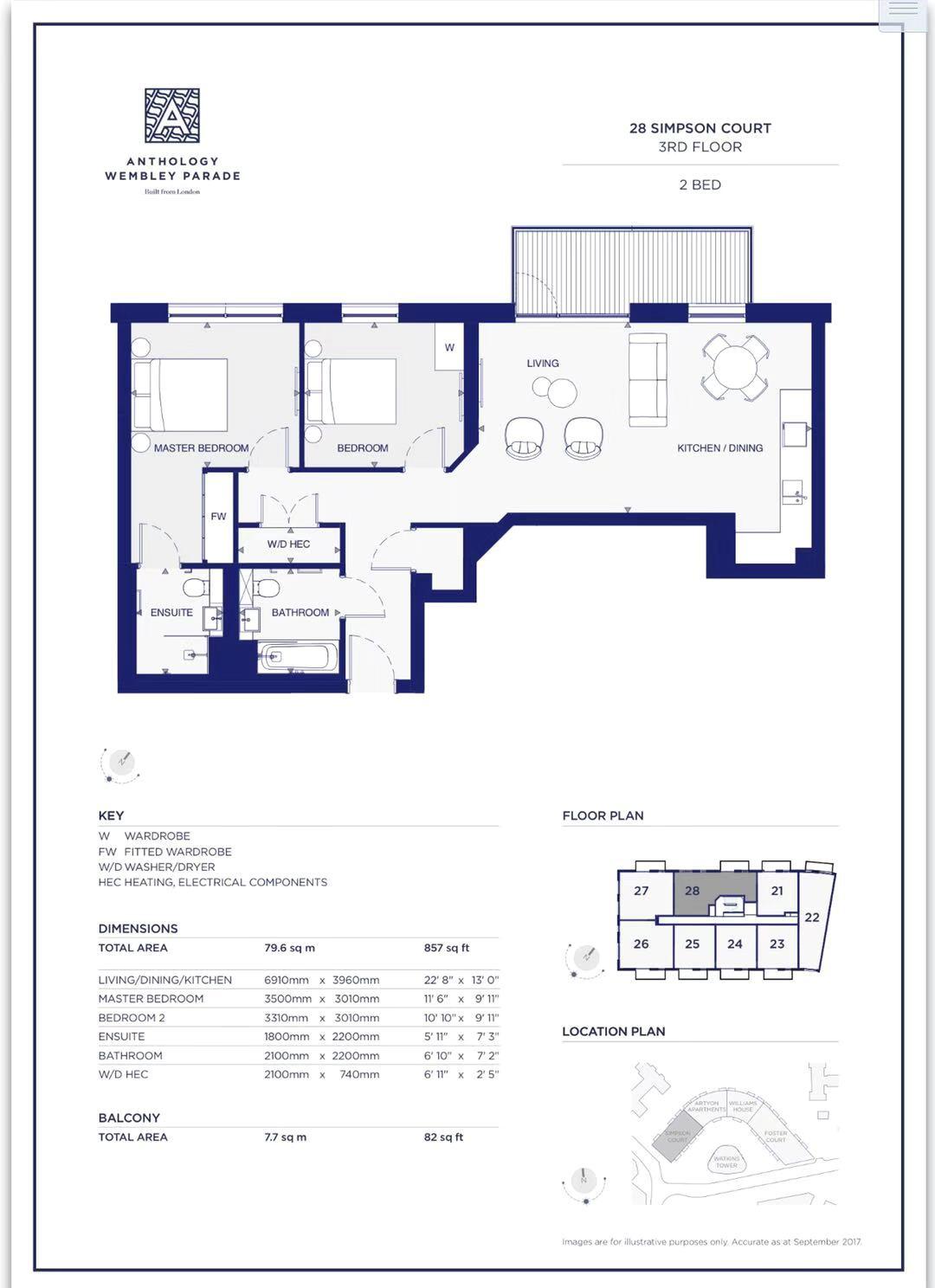
Urgent Sale Price: £ 570,000Property Type: apartmentTotal Area: 80 sq metresBedrooms: 2Bathrooms: 2
Property Oracle says ..
The property is a two-bedroom, two-bathroom apartment situated in Wembley, Brent, Greater London. The listing price is £570,000. The location is advantageous due to proximity to Wembley Stadium and multiple London Underground stations. Several highly-rated schools are nearby. Based on images, the apartment is in excellent condition with a modern and well-maintained interior. The lack of apartment square footage makes precise price-per-square-foot comparison difficult; however, considering comparable properties and average price per sqft, the asking price seems reasonable. More information on the apartment size would help with a more precise evaluation.
Therefore, we give this property 9 / 10. *Disclaimer: This is our option and does constitute a recommendation or financial advice. Do your own research. *
- Price
- 8
- Condition
- 10
- Location
- 9
- Land
- 10
- Bedrooms
- 2
- Bathrooms
- 2
- Lot (est)
- 857.00
The heatmap indicates the level of crime in the area. The color of the heatmap indicates the crime severity and recency.
Metrics Year-on-Year
- Average area value
- 567,500.00 £Increased by 23.85 %
- Average area rental value
- 2,508.00 £/moIncreased by 2.66 %
- Est rental Yield
- 5.30 %Decreased by 17.19 %
- Crime Rate
- 18.00 %Unchanged by 0.00 %
Agent Activity
LANSHA LTD created the listing.
Nearby Schools
| Name | Type | Ofsted | Distance |
|---|---|---|---|
| Michaela Community School | Free Schools | Outstanding | 0.22 KM |
| Ark Academy | Academy Sponsor Led | Outstanding | 0.54 KM |
| Lycee International De Londres | Other Independent School | 0.63 KM | |
| Willows Children'S Centre | Children's Centre | 0.74 KM | |
| Chalkhill Primary School | Community School | Good | 0.74 KM |
Images
Nearby Streets
| Name | Average Price | Average Sqft | Distance |
|---|---|---|---|
| Albion Way | £ 530,000 | 0 | 0.00 KM |
| Marshalls Walk | £ 0 | 0 | 0.00 KM |
| Marley Street | £ 0 | 0 | 0.00 KM |
| Bridge Road | £ 0 | 0 | 0.00 KM |
| Hudson Walk | £ 0 | 0 | 0.00 KM |
Nearby Transport
| Name | NLC | TLC | Distance |
|---|---|---|---|
| Wembley Stadium | 1509 | WCX | 1.21 KM |
| Stonebridge Park | 1454 | SBP | 1.95 KM |
| Wembley Central | 1423 | WMB | 2.35 KM |
| North Wembley | 1422 | NWB | 2.95 KM |
| Harlesden | 1521 | HDN | 3.56 KM |
Nearby Listings
| Address | Price | Type | Score | Distance |
|---|---|---|---|---|
| Maclaren Court, North End Road, London, HA9 | £ 450,000 | BUY | 7 / 10 | 0.00 KM |
| North End Road, Wembley, Middlesex, HA9 | £ 535,000 | BUY | 5 / 10 | 0.00 KM |
| North End Road, Wembley, Middlesex, HA9 | £ 570,000 | BUY | 9 / 10 | 0.00 KM |
| Maclaren Court, North End Road, HA9 | £ 575,000 | BUY | Unknown | 0.01 KM |
| Maclaren Court, North End Road, Wembley, HA9 | £ 575,000 | BUY | 6 / 10 | 0.01 KM |
Nearby Properties
| Address | Price | Distance |
|---|---|---|
| 20 Windsor Crescent | £ 242,000 | 0.19 KM |
| 26 Windsor Crescent | £ 330,000 | 0.19 KM |
| 32 Windsor Crescent | £ 250,000 | 0.19 KM |
| 16 Windsor Crescent | £ 250,000 | 0.19 KM |
| 46 Windsor Crescent | £ 187,500 | 0.19 KM |