Jack Charles says ..
GUIDE PRICE £1,000,000 - £1,100,000 Jack Charles have the pleasure of offering for sale this superbly appointed detached Victorian family home situated in a sought after location with in easy walking distance to Tonbridge town centre, mainline station. The property is also perfectly situ...
Property Oracle says ..
The property is located on Hadlow Road, Tonbridge, in the Kent region of South East England. The area benefits from being within reasonable distance of Tonbridge train station, providing convenient access to London and other major towns. Several primary and secondary schools are also located nearby, adding to the family-friendly appeal of the location. The presence of a garden is confirmed in the provided images.
Based on the images, the property appears to be in good condition. The kitchen and bathrooms show modern fixtures and finishes, suggesting recent renovations or upgrades. The property’s interior is presented in a clean and well-maintained state.
The list price of £1,000,000 for a 2,441.58 sqft detached property with a 2,371.29 sqft plot is significantly higher than the average price of £408,739 in the area. However, the average sqft in the area is 907 sqft, which is considerably smaller than this property. While the average price per sqft in the area is £450.00, the lack of sqft data for comparable properties makes a precise price comparison challenging. The property’s size, modern updates, and location in a desirable area likely contribute to the higher asking price. Further analysis of comparable properties with similar sqft and features would be needed to definitively assess the value for money.
Therefore, we give this property 7 / 10. *Disclaimer: This is our option and does constitute a recommendation or financial advice. Do your own research. *
- Price
- 6
- Condition
- 9
- Location
- 8
- Land
- 7
- Bedrooms
- 4
- Bathrooms
- 3
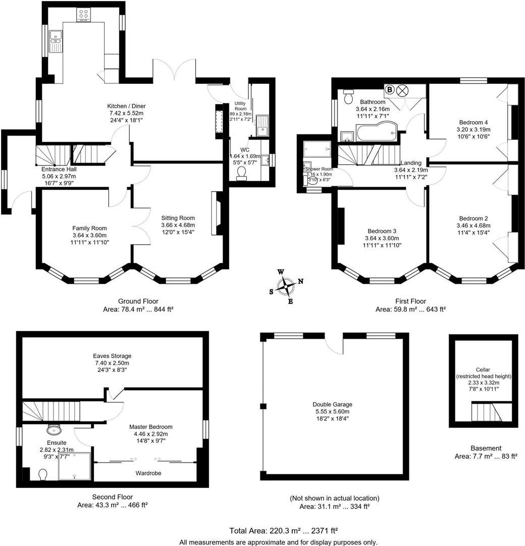
- Sqft (est)
- 2,441.58
- Lot (est)
- 2,371.29
The heatmap indicates the level of crime in the area. The color of the heatmap indicates the crime severity and recency.
Metrics Year-on-Year
- Average area value
- 456,000.00 £Increased by 25.16 %
- Est sale value
- 1,753,054.44 £Increased by 65.44 %
- Average area rental value
- 1,667.00 £/moIncreased by 20.45 %
- Est letting value
- 4,883.16 £/moIncreased by 100.00 %
- Est rental Yield
- 4.39 %Decreased by 3.73 %
- Crime Rate
- 3.00 %Unchanged by 0.00 %
Agent Activity
Jack Charles created the listing.
Nearby Schools
| Name | Type | Ofsted | Distance |
|---|---|---|---|
| Tonbridge School | Other Independent School | 0.57 KM | |
| Slade Primary School And Attached Unit For Children With Hearing Impairment | Community School | Outstanding | 0.89 KM |
| Hilden Oaks Preparatory School And Nursery | Other Independent School | 0.96 KM | |
| Hilden Grange School | Other Independent School | 0.96 KM | |
| Ymca West Kent | Special Post 16 Institution | 1.04 KM |
Images
Nearby Streets
| Name | Average Price | Average Sqft | Distance |
|---|---|---|---|
| Lyons Crescent | £ 330,357 | 0 | 0.00 KM |
| Tannery Road | £ 0 | 0 | 0.00 KM |
| Morley Road | £ 300,000 | 0 | 0.00 KM |
| Castle Street | £ 290,000 | 0 | 0.00 KM |
| High Street | £ 260,500 | 0 | 0.00 KM |
Nearby Transport
| Name | NLC | TLC | Distance |
|---|---|---|---|
| Tonbridge | 5229 | TON | 1.28 KM |
| High Brooms | 5235 | HIB | 5.46 KM |
| Hildenborough | 5236 | HLB | 6.08 KM |
| Leigh (Kent) | 5294 | LIH | 7.72 KM |
| Tunbridge Wells | 5230 | TBW | 7.82 KM |
Nearby Listings
| Address | Price | Type | Score | Distance |
|---|---|---|---|---|
| Hadlow Road, Tonbridge | £ 1,000,000 | BUY | 7 / 10 | 0.00 KM |
| Charlton Terrace, Tonbridge, Kent, TN9 | £ 800,000 | BUY | 7 / 10 | 0.05 KM |
| Hadlow Road, Tonbridge | £ 295,000 | BUY | 6 / 10 | 0.06 KM |
| Lime Tree Close, Tonbridge, Kent, TN9 | £ 500,000 | BUY | 8 / 10 | 0.06 KM |
| Hadlow Road, Tonbridge, Kent, TN9 | £ 250,000 | BUY | 6 / 10 | 0.07 KM |
Nearby Properties
| Address | Price | Distance |
|---|---|---|
| 1 Hadlow Road | £ 725,000 | 0.05 KM |
| 7 Hadlow Road | £ 495,000 | 0.05 KM |
| 23a Hadlow Road | £ 740,000 | 0.05 KM |
| 19 Hadlow Road | £ 700,000 | 0.05 KM |
| 9 Hadlow Road | £ 680,000 | 0.05 KM |