High Street South, Dunstable, Bedfordshire
By Alexander & Co
£ 255,000
Reviews
3 out of 5 stars
Alexander & Co says ..
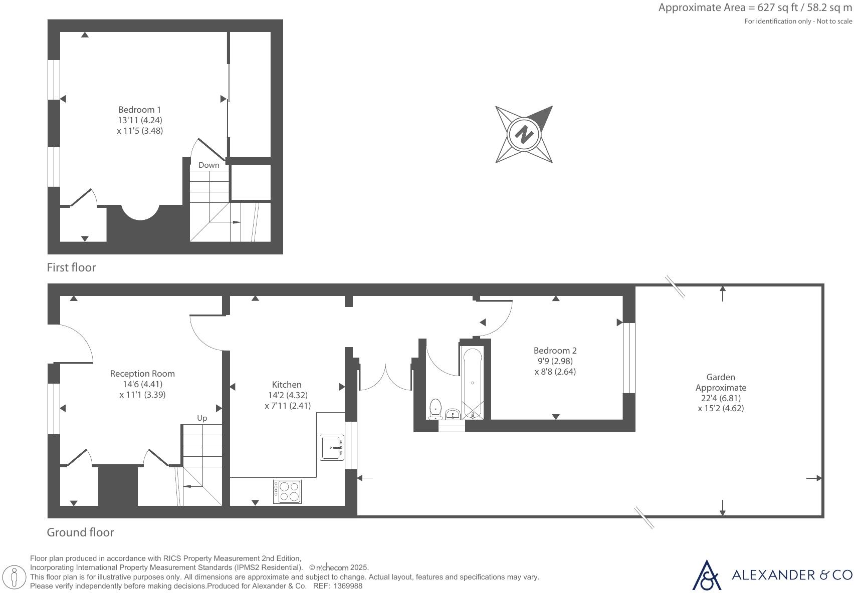
Full of charm and history, this delightful two-bedroom terraced alms house offers a rare opportunity to enjoy period character in a peaceful, convenient setting. Stepping inside, you're welcomed by a cosy lounge brimming with original features, centred around a charming feature firepla...
Property Oracle says ..
This two-bedroom terraced house on High Street South in Dunstable presents a blend of period charm and convenient location. While the property benefits from its central position and access to local amenities and schools, it also shows signs of needing some updating. The small garden may be a limiting factor for some buyers. Overall, it offers a solid opportunity for those seeking a well-located property with potential for improvement.
Therefore, we give this property 6 / 10. *Disclaimer: This is our option and does constitute a recommendation or financial advice. Do your own research. *
- Price
- 7
- Condition
- 6
- Location
- 7
- Land
- 4
- Bedrooms
- 2
- Bathrooms
- 1
The heatmap indicates the level of crime in the area. The color of the heatmap indicates the crime severity and recency.
Metrics Year-on-Year
- Average area value
- 295,233.00 £Decreased by 10.67 %
- Average area rental value
- 1,175.00 £/moIncreased by 7.60 %
- Est rental Yield
- 4.78 %Increased by 20.40 %
- Crime Rate
- 17.00 %Unchanged by 0.00 %
Agent Activity
Alexander & Co created the listing.
Nearby Schools
| Name | Type | Ofsted | Distance |
|---|---|---|---|
| Priory Academy | Academy Converter | Good | 0.28 KM |
| St George'S School | Other Independent School | Good | 0.36 KM |
| Watling Lower School | Community School | Good | 0.48 KM |
| Central Bedfordshire College | Further Education | Requires improvement | 0.74 KM |
| Dunstable Icknield Lower School | Community School | Outstanding | 0.86 KM |
Images
Nearby Streets
| Name | Average Price | Average Sqft | Distance |
|---|---|---|---|
| Friars Walk | £ 0 | 0 | 0.00 KM |
| The Paddocks | £ 0 | 0 | 0.00 KM |
| Ashton Sqaure | £ 0 | 0 | 0.00 KM |
| Hawthorn Close | £ 415,000 | 0 | 0.00 KM |
| Britain Street | £ 377,500 | 0 | 0.00 KM |
Nearby Transport
| Name | NLC | TLC | Distance |
|---|---|---|---|
| Leagrave | 1534 | LEA | 6.96 KM |
| Harlington (Bedfordshire) | 1533 | HLN | 9.01 KM |
Nearby Listings
| Address | Price | Type | Score | Distance |
|---|---|---|---|---|
| High Street South, Dunstable, Bedfordshire | £ 255,000 | BUY | 6 / 10 | 0.00 KM |
| High Street South, Dunstable | £ 275,000 | BUY | 6 / 10 | 0.00 KM |
| High Street South, Dunstable | £ 115,000 | BUY | Unknown | 0.02 KM |
| Viceroy Court, High Street South, Dunstable | £ 120,000 | BUY | 5 / 10 | 0.03 KM |
| Montpelier Mews, High Street South, Dunstable | £ 725,000 | BUY | 7 / 10 | 0.04 KM |
Nearby Properties
| Address | Price | Distance |
|---|---|---|
| 67 High Street South | £ 175,000 | 0.01 KM |
| 65 High Street South | £ 237,500 | 0.01 KM |
| 51a High Street South | £ 114,950 | 0.01 KM |
| 75 High Street South | £ 180,000 | 0.01 KM |
| 73 High Street South | £ 210,000 | 0.01 KM |