Merivale Road, West Harrow
WI

Merivale Road, West Harrow

By Wilson Hawkins

£ 309,950

Reviews

3 out of 5 stars

Wilson Hawkins says ..

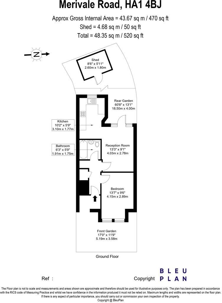
Well situated on the sought after Merivale Road in West Harrow, this charming one-bedroom extended ground floor maisonette offers a perfect blend of comfort and convenience. The property is part of a period conversion, showcasing character and elegance, making it an appealing choice for those see...

Property Oracle says ..

This one bedroom flat is located on Merivale Road in West Harrow, a residential area in Greater London. The property benefits from being close to several highly-rated schools, including Whitmore High School and Vaughan Primary School, both rated as Outstanding by Ofsted. Transportation links are also convenient, with Harrow-on-the-Hill underground station approximately 1.42km away. The flat itself appears to be well-maintained and in good condition, with a modern bathroom and kitchen. There is a small, but well-maintained garden, adding to the property’s appeal. The list price of £309,950 seems reasonable considering the average price of similar properties in the area and the overall condition and location of the flat. However, the limited plot size and smaller square footage compared to the area average might slightly affect its value.

Therefore, we give this property 7 / 10. *Disclaimer: This is our option and does constitute a recommendation or financial advice. Do your own research. *

Price
7
Condition
8
Location
9
Land
4
Bedrooms
1
Bathrooms
1
Sqft (est)
520.44

The heatmap indicates the level of crime in the area. The color of the heatmap indicates the crime severity and recency.

Metrics Year-on-Year

Average area value
341,429.00 £
Increased by 9.95 %
from 310,533.00 £
Est sale value
162,897.72 £
Decreased by 25.65 %
from 219,105.24 £
Average area rental value
875.00 £/mo
Decreased by 18.53 %
from 1,074.00 £/mo
Est letting value
0.00 £/mo
Decreased by 100.00 %
from 520.44 £/mo
Est rental Yield
3.08 %
Decreased by 25.78 %
from 4.15 %
Crime Rate
4.00 %
Unchanged by 0.00 %
from 4.00 %

Agent Activity

  • Wilson Hawkins created the listing.

Nearby Schools

NameTypeOfstedDistance
Whitmore High SchoolCommunity SchoolOutstanding0.53 KM
Vaughan Primary SchoolCommunity SchoolOutstanding0.68 KM
Roxeth Mead SchoolOther Independent SchoolGood0.88 KM
The John Lyon SchoolOther Independent School0.91 KM
GrangeChildren's Centre Linked Site0.94 KM

Images

25 Merivale Road - hQBfypFi2QbCeGSly2hc.jpg 25 Merivale Road - MvMleQdFzpbFWIB3WWXA.jpg 25 Merivale Road - ElY2jZdgsDfoiyORizTx.jpg 25 Merivale Road - izUMMaHYEw8U9WR8Zv8L.jpg 25 Merivale Road - 6KJLdUCVs2Jv20qjvqOa.jpg 25 Merivale Road - NNBGB7TkhT1bHyzrYsAm.jpg 25 Merivale Road - u3Gu8L2YdZFAbn90HyIb.jpg 25 Merivale Road - YKtShvVTOoqrxjlt5E8p.jpg 25 Merivale Road - qyt9XRHw7d0vpH36LTkx.jpg 25 Merivale Road - BHEqjmkZsNOhOZJZYv2C.jpg 25 Merivale Road - 2lpbi4lCdDqotoJjFkG2.jpg 25 Merivale Road - OH7D0ib4gPVMWy1D8biy.jpg 25 Merivale Road - tC19d1CzJigtYWNWoGjC.jpg 25 Merivale Road - 9iLy575a7AxHuBsX3U9O.jpg

Nearby Streets

NameAverage PriceAverage SqftDistance
Marshall Close £ 495,00000.00 KM
Pool Road £ 320,00000.00 KM
Bessborough Road £ 000.00 KM
Grange Farm Close £ 82,50000.00 KM
Wesley Close £ 000.00 KM

Nearby Transport

NameNLCTLCDistance
Harrow-On-The-Hill598HOH1.42 KM
Northolt Park1478NLT2.37 KM
Harrow And Wealdstone1397HRW2.42 KM
Sudbury Hill Harrow1484SDH2.54 KM
Headstone Lane1434HDL3.02 KM

Nearby Listings

AddressPriceTypeScoreDistance
Merivale Road, West Harrow £ 309,950BUY7 / 100.00 KM
Merivale Road, West Harrow £ 565,000BUY6 / 100.01 KM
Merivale Road, Harrow, HA1 £ 525,000BUY6 / 100.04 KM
Merivale Road, Harrow £ 535,000BUY6 / 100.05 KM
Merivale Road, Harrow £ 495,000BUY5 / 100.05 KM

Nearby Properties

AddressPriceDistance
17 Merivale Road £ 558,0000.01 KM
35 Merivale Road £ 249,0000.01 KM
37 Merivale Road £ 536,0000.01 KM
25a Merivale Road £ 292,5000.01 KM
7 Merivale Road £ 410,0000.01 KM