Stanhope Road, Wigston, LE18
By Spencers Estate Agency
£ 280,000
Reviews
3 out of 5 stars
Spencers Estate Agency says ..
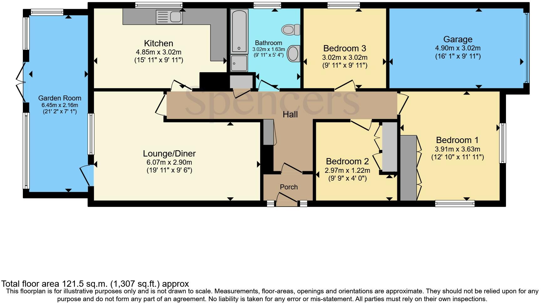
This three bedroom detached bungalow is offered with no upward chain and occupies a generous corner plot within a sought after residential area. The property does require modernisation and refurbishment throughout but does offer huge potential to any buyer to add significant value post purchase.<...
Property Oracle says ..
This three-bedroom detached bungalow in Wigston, Leicestershire, presents a mixed opportunity. Located on Stanhope Road within the Wigston Meadowcourt area, the property benefits from a relatively convenient location near several well-regarded primary schools (The Meadow Community Primary School and Thythorn Field Community Primary School, both rated ‘Good’ by Ofsted) making it attractive for families. The nearby South Wigston and Leicester train stations offer good transport links. The property itself, however, requires substantial modernisation. The photos reveal dated décor and fittings in the kitchen, bathroom, and bedrooms that are in need of a complete refurbishment. While the structure appears sound, the considerable renovation needed should be factored into any purchase decision. A significant positive is the presence of a sizable garden, providing outdoor space and potential for enhancement. The listing price of £280,000 appears reasonable in relation to other similar properties in the area which are also listed in need of modernisation, but buyers should budget for extensive renovations. Potential buyers should be prepared for significant expenditure to upgrade the property to modern standards, taking this into consideration when assessing its overall value.
Therefore, we give this property 6 / 10. *Disclaimer: This is our option and does constitute a recommendation or financial advice. Do your own research. *
- Price
- 7
- Condition
- 4
- Location
- 7
- Land
- 6
- Bedrooms
- 3
- Bathrooms
- 1
- Sqft (est)
- 1,307.00
The heatmap indicates the level of crime in the area. The color of the heatmap indicates the crime severity and recency.
Metrics Year-on-Year
- Average area value
- 355,872.00 £Increased by 11.25 %
- Est sale value
- 623,439.00 £Increased by 35.13 %
- Average area rental value
- 983.00 £/moDecreased by 14.52 %
- Est letting value
- 1,307.00 £/moUnchanged by 0.00 %
- Est rental Yield
- 3.31 %Decreased by 23.20 %
- Crime Rate
- 5.00 %Unchanged by 0.00 %
Agent Activity
Spencers Estate Agency created the listing.
Nearby Schools
| Name | Type | Ofsted | Distance |
|---|---|---|---|
| The Meadow Community Primary School | Academy Converter | Good | 0.87 KM |
| Thythorn Field Community Primary School | Community School | Good | 1.04 KM |
| Wigston Magna Sure Start Children'S Centre | Children's Centre | 1.11 KM | |
| All Saints Church Of England Primary School | Academy Converter | 1.24 KM | |
| Wigston Menphys Nursery School | Local Authority Nursery School | Good | 1.36 KM |
Images
Nearby Streets
| Name | Average Price | Average Sqft | Distance |
|---|---|---|---|
| Welford Road | £ 342,500 | 0 | 0.00 KM |
| Grassington Drive | £ 0 | 0 | 0.00 KM |
| Naseby Close | £ 0 | 0 | 0.00 KM |
| Hillside Avenue | £ 315,000 | 0 | 0.00 KM |
| Preston Close | £ 0 | 0 | 0.00 KM |
Nearby Transport
| Name | NLC | TLC | Distance |
|---|---|---|---|
| South Wigston | 1949 | SWS | 3.88 KM |
| Leicester | 1947 | LEI | 6.55 KM |
Nearby Listings
| Address | Price | Type | Score | Distance |
|---|---|---|---|---|
| Stanhope Road, Wigston, LE18 | £ 280,000 | BUY | 6 / 10 | 0.00 KM |
| Stanhope Road, Wigston | £ 280,000 | BUY | Unknown | 0.00 KM |
| Stanhope Road, Wigston | £ 425,000 | BUY | 6 / 10 | 0.04 KM |
| Stanhope Road, Wigston, Leicester | £ 440,000 | BUY | Unknown | 0.05 KM |
| Harcourt Road, Wigston | £ 169,995 | BUY | 6 / 10 | 0.16 KM |
Nearby Properties
| Address | Price | Distance |
|---|---|---|
| 14 Stanhope Road | £ 175,000 | 0.00 KM |
| 26 Stanhope Road | £ 165,000 | 0.00 KM |
| 17 Stanhope Road | £ 375,000 | 0.00 KM |
| 2 Stanhope Road | £ 335,000 | 0.00 KM |
| 52 Stanhope Road | £ 545,000 | 0.00 KM |