Chapelfields Road, Acomb, York
By Ashtons Estate Agents
£ 210,000
Reviews
3 out of 5 stars
Ashtons Estate Agents says ..
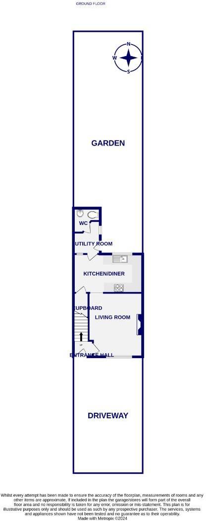
Located in the popular residential area of Acomb, which is positioned to the west of York, is this two bedroom townhouse. Offered with no onward chain, this property could be a wonderful first home or investment property as it has been a successful rental property for many years. Chapelfields Ro...
Property Oracle says ..
This is a two-bedroom terraced house located on Chapelfields Road in Acomb, York. The property is in a popular residential area with convenient access to local amenities, schools, and transport links. The house includes a rear garden with a shed. While the property is in reasonable condition, some modernisation, particularly in the kitchen and bathroom, could enhance its appeal. The asking price of £210,000 is below the average for the area, making it an attractive opportunity for first-time buyers or investors.
Therefore, we give this property 7 / 10. *Disclaimer: This is our option and does constitute a recommendation or financial advice. Do your own research. *
- Price
- 8
- Condition
- 6
- Location
- 7
- Land
- 7
- Bedrooms
- 2
- Bathrooms
- 1
- Sqft (est)
- 710.00
The heatmap indicates the level of crime in the area. The color of the heatmap indicates the crime severity and recency.
Metrics Year-on-Year
- Average area value
- 282,914.00 £Increased by 0.69 %
- Est sale value
- 244,950.00 £Increased by 15.77 %
- Average area rental value
- 1,047.00 £/moDecreased by 2.70 %
- Est letting value
- 710.00 £/moUnchanged by 0.00 %
- Est rental Yield
- 4.44 %Decreased by 3.48 %
- Crime Rate
- 5.00 %Unchanged by 0.00 %
Agent Activity
Ashtons Estate Agents created the listing.
Nearby Schools
| Name | Type | Ofsted | Distance |
|---|---|---|---|
| Westfield Primary Community School | Community School | Good | 0.63 KM |
| Westfield Children'S Centre | Children's Centre | 0.64 KM | |
| York High School | Academy Sponsor Led | 1.28 KM | |
| Carr Infant School | Community School | Good | 1.41 KM |
| Carr Junior School | Academy Converter | 1.52 KM |
Images
Nearby Streets
| Name | Average Price | Average Sqft | Distance |
|---|---|---|---|
| Croft Way | £ 0 | 0 | 0.00 KM |
| Carnoustie Close | £ 0 | 0 | 0.00 KM |
| Meeting House Lane | £ 0 | 0 | 0.00 KM |
| Vyner House | £ 0 | 0 | 0.00 KM |
| St Anthony Court | £ 0 | 0 | 0.00 KM |
Nearby Transport
| Name | NLC | TLC | Distance |
|---|---|---|---|
| Poppleton | 8254 | POP | 2.50 KM |
| York | 8263 | YRK | 5.07 KM |
Nearby Listings
| Address | Price | Type | Score | Distance |
|---|---|---|---|---|
| Chapelfields Road, Acomb, York | £ 210,000 | BUY | 7 / 10 | 0.00 KM |
| Bramham Road, York, YO26 | £ 240,000 | BUY | 7 / 10 | 0.05 KM |
| Bramham Road, Acomb, YO26 | £ 237,000 | BUY | 7 / 10 | 0.10 KM |
| Bramham Road, York | £ 240,000 | BUY | 6 / 10 | 0.11 KM |
| Wetherby Road, York | £ 425,000 | BUY | 6 / 10 | 0.12 KM |
Nearby Properties
| Address | Price | Distance |
|---|---|---|
| 261 Chapelfields Road | £ 128,000 | 0.03 KM |
| 287 Chapelfields Road | £ 195,000 | 0.03 KM |
| 273 Chapelfields Road | £ 151,500 | 0.03 KM |
| 223 Chapelfields Road | £ 95,500 | 0.03 KM |
| 237 Chapelfields Road | £ 160,000 | 0.03 KM |